---
title: "Bakkevej, Stoholm"
description: "1-17"
date: "2025-07-18"
created: "2025-07-07"
---

-
-
-
-

https://maps.google.dk/?q=56.4810441,9.143534

# Bakkevej, Stoholm

Afdeling 17

## Velkommen til afdeling 17 Bakkevej, Stoholm

Bakkevej er beliggende i den sydlige del af byen, tæt på Stoholm centrum og indkøb. Der er fine grønne friarealer og legeplads. Bebyggelsen, der er opført i 1984, består af 20 rækkehuse med egen have og terrasse. Boligerne har i 2012 fået nye vinduer og døre.
Enkelte boliger har fået nyt køkken og/eller badeværelse. Hvor dette endnu ikke er foretaget kan dette ske mod en huslejeforhøjelse såfremt dette ønskes.

Hver lejlighed er tilsluttet fiberbredbånd, hvorfor der kan indgås aftale om tv, internet m.v. direkte med forskellige udbydere.

Boligforeningen råder over 3 gæsteværelser samt en gildesal i Skive by, som kan lejes af alle beboere.

## Faciliteter

Husdyr

Ja

Det er tilladt at holde 1 hund eller 1 kat.

Vaskemaskine

Ja

Installation af vaskemaskine og tørretumbler er muligt. Kontakt AAB for mere information.

Carport/garage

Ja

Der er 10 carporte som kan lejes via venteliste.

TV

Ja

Er tilsluttet fibernet

## Boliger i afdelingen

Familiebolig

2 værelses

Familiebolig

Familiebolig

3 værelses

Familiebolig

Familiebolig

4 værelses

Familiebolig

Boligtype

Værelser

Størrelse

Husleje

Indskud/dp

Plantegning

Familiebolig

2

61 m²

4487 kr.

13461 kr.

![](https://www.aabskive.dk/i/MOLIRIMEDIA/ee9976c7-e96d-4021-b7b7-08dd5bf69135?width=800)






![](https://www.aabskive.dk/i/MOLIRIMEDIA/ee9976c7-e96d-4021-b7b7-08dd5bf69135?width=800)

![](https://www.aabskive.dk/i/MOLIRIMEDIA/00cd906f-6bf0-43d9-bd2c-08dd5bf69135?width=800)

![](https://www.aabskive.dk/i/MOLIRIMEDIA/c5fb6119-dec8-4c64-bd1d-08dd5bf69135?width=800)

![](https://www.aabskive.dk/i/MOLIRIMEDIA/ee9976c7-e96d-4021-b7b7-08dd5bf69135?width=800)

![](https://www.aabskive.dk/i/MOLIRIMEDIA/00cd906f-6bf0-43d9-bd2c-08dd5bf69135?width=800)

![](https://www.aabskive.dk/i/MOLIRIMEDIA/c5fb6119-dec8-4c64-bd1d-08dd5bf69135?width=800)

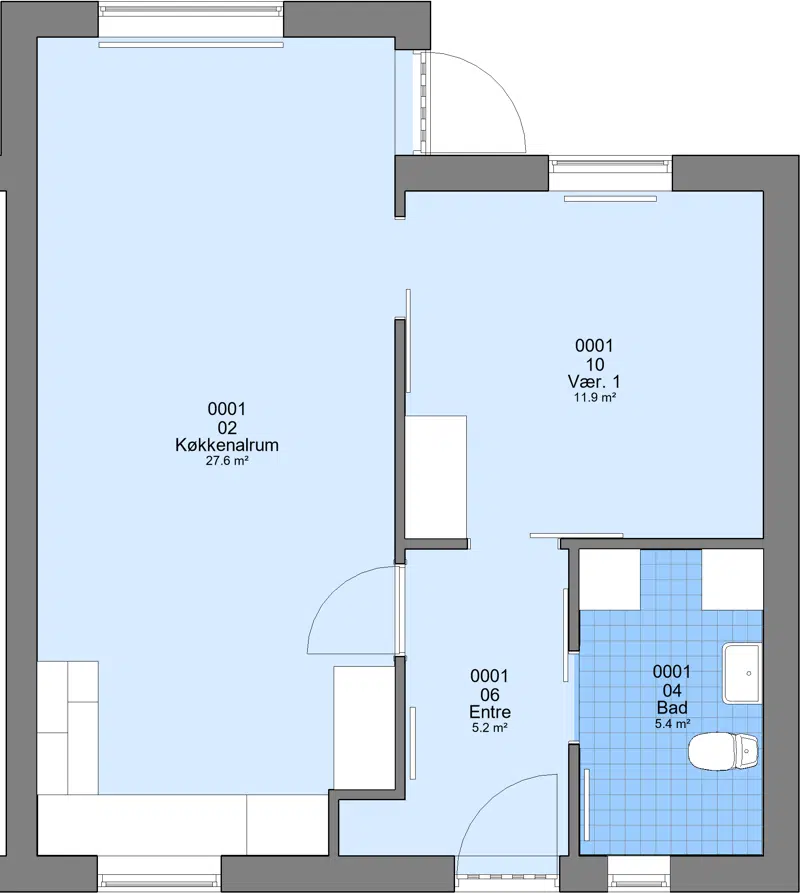
Familiebolig

3

82 m²

6077 kr.

18231 kr.

![](https://www.aabskive.dk/i/MOLIRIMEDIA/875a351f-a174-4578-ba22-08dd5bf69135?width=800)






![](https://www.aabskive.dk/i/MOLIRIMEDIA/875a351f-a174-4578-ba22-08dd5bf69135?width=800)

![](https://www.aabskive.dk/i/MOLIRIMEDIA/72d1903a-8421-4b0a-bc8c-08dd5bf69135?width=800)

![](https://www.aabskive.dk/i/MOLIRIMEDIA/57926fa5-f702-452a-bd1b-08dd5bf69135?width=800)

![](https://www.aabskive.dk/i/MOLIRIMEDIA/875a351f-a174-4578-ba22-08dd5bf69135?width=800)

![](https://www.aabskive.dk/i/MOLIRIMEDIA/72d1903a-8421-4b0a-bc8c-08dd5bf69135?width=800)

![](https://www.aabskive.dk/i/MOLIRIMEDIA/57926fa5-f702-452a-bd1b-08dd5bf69135?width=800)

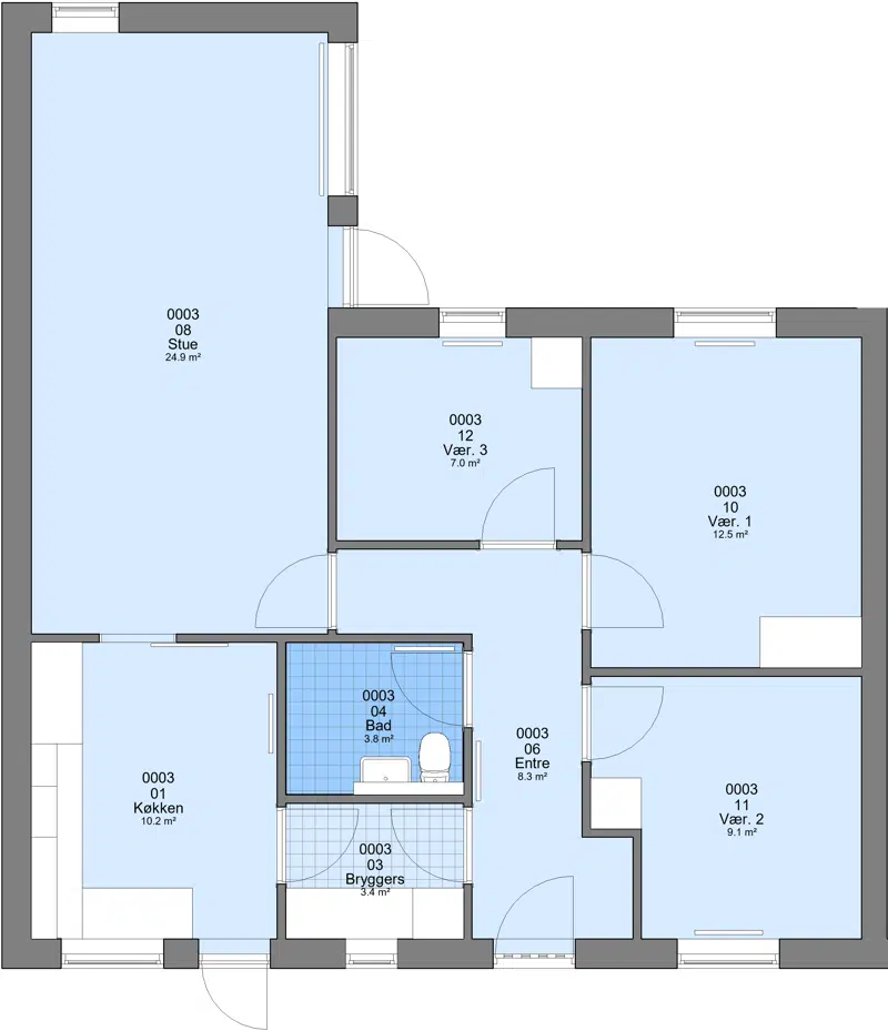
Familiebolig

4

95 m²

6267 kr.

18801 kr.

![](https://www.aabskive.dk/i/MOLIRIMEDIA/df289029-4ce3-41b0-baf0-08dd5bf69135?width=800)






![](https://www.aabskive.dk/i/MOLIRIMEDIA/df289029-4ce3-41b0-baf0-08dd5bf69135?width=800)

![](https://www.aabskive.dk/i/MOLIRIMEDIA/5abb7d2d-8d5c-498d-bcc2-08dd5bf69135?width=800)

![](https://www.aabskive.dk/i/MOLIRIMEDIA/42e810db-77d7-44cd-bc7e-08dd5bf69135?width=800)

![](https://www.aabskive.dk/i/MOLIRIMEDIA/df289029-4ce3-41b0-baf0-08dd5bf69135?width=800)

![](https://www.aabskive.dk/i/MOLIRIMEDIA/5abb7d2d-8d5c-498d-bcc2-08dd5bf69135?width=800)

![](https://www.aabskive.dk/i/MOLIRIMEDIA/42e810db-77d7-44cd-bc7e-08dd5bf69135?width=800)

## Afdelingsdokumenter

Her finder du nyttig information om din afdeling, såsom husorden, vedligeholdelse af dit lejemål, referater m.m.

###

                                                Regnskaber

[Regnskab 2024 og budget 2026 afdeling 17.pdf](https://www.aabskive.dk/p/Files/Boligdata/Dokumenter/Afdelingsregnskaber/Regnskab-2024-og-budget-2026-afdeling-17.pdf)

###

                                                Vedligeholdelse

[Vedligeholdelsesreglement afd 17.pdf](https://www.aabskive.dk/p/Files/Boligdata/Dokumenter/Vedligeholdelse/Vedligeholdelsesreglement-afd-17.pdf)

###

                                                Husorden

[Ordensreglement afdeling 17.pdf](https://www.aabskive.dk/p/Files/Boligdata/Dokumenter/Husordener/Ordensreglement-afdeling-17.pdf)

## Selskabsdokumenter

Her finder du nyttig information om din selskab.

###

                                                Referater hovedbestyrelsen

[Referat hovedbestyrelsesmøde 2024 04 03.pdf](https://www.aabskive.dk/p/Files/Boligdata/Dokumenter/Sel.%201%20Arbejdernes%20AndelsBoligforening/Referater%20hovedbestyrelsen/Referat-hovedbestyrelsesm&#xF8;de-2024-04-03.pdf)
                                            [Referat hovedbestyrelsesmøde 2024 05 13.pdf](https://www.aabskive.dk/p/Files/Boligdata/Dokumenter/Sel.%201%20Arbejdernes%20AndelsBoligforening/Referater%20hovedbestyrelsen/Referat-hovedbestyrelsesm&#xF8;de-2024-05-13.pdf)
                                            [Referat hovedbestyrelsesmøde 2024 06 03.pdf](https://www.aabskive.dk/p/Files/Boligdata/Dokumenter/Sel.%201%20Arbejdernes%20AndelsBoligforening/Referater%20hovedbestyrelsen/Referat-hovedbestyrelsesm&#xF8;de-2024-06-03.pdf)
                                            [Referat hovedbestyrelsesmøde 2024 09 02.pdf](https://www.aabskive.dk/p/Files/Boligdata/Dokumenter/Sel.%201%20Arbejdernes%20AndelsBoligforening/Referater%20hovedbestyrelsen/Referat-hovedbestyrelsesm&#xF8;de-2024-09-02.pdf)
                                            [Referat hovedbestyrelsesmøde 2024 10 07.pdf](https://www.aabskive.dk/p/Files/Boligdata/Dokumenter/Sel.%201%20Arbejdernes%20AndelsBoligforening/Referater%20hovedbestyrelsen/Referat-hovedbestyrelsesm&#xF8;de-2024-10-07.pdf)
                                            [Referat hovedbestyrelsesmøde 2024 11 04.pdf](https://www.aabskive.dk/p/Files/Boligdata/Dokumenter/Sel.%201%20Arbejdernes%20AndelsBoligforening/Referater%20hovedbestyrelsen/Referat-hovedbestyrelsesm&#xF8;de-2024-11-04.pdf)
                                            [Referat hovedbestyrelsesmøde 2024 12 02.pdf](https://www.aabskive.dk/p/Files/Boligdata/Dokumenter/Sel.%201%20Arbejdernes%20AndelsBoligforening/Referater%20hovedbestyrelsen/Referat-hovedbestyrelsesm&#xF8;de-2024-12-02.pdf)
                                            [Referat hovedbestyrelsesmøde 2025 02 03.pdf](https://www.aabskive.dk/p/Files/Boligdata/Dokumenter/Sel.%201%20Arbejdernes%20AndelsBoligforening/Referater%20hovedbestyrelsen/Referat-hovedbestyrelsesm&#xF8;de-2025-02-03.pdf)
                                            [Referat hovedbestyrelsesmøde 2025 03 03.pdf](https://www.aabskive.dk/p/Files/Boligdata/Dokumenter/Sel.%201%20Arbejdernes%20AndelsBoligforening/Referater%20hovedbestyrelsen/Referat-hovedbestyrelsesm&#xF8;de-2025-03-03.pdf)
                                            [Referat hovedbestyrelsesmøde 2025 04 07.pdf](https://www.aabskive.dk/p/Files/Boligdata/Dokumenter/Sel.%201%20Arbejdernes%20AndelsBoligforening/Referater%20hovedbestyrelsen/Referat-hovedbestyrelsesm&#xF8;de-2025-04-07.pdf)
                                            [Referat hovedbestyrelsesmøde 2025 05 15.pdf](https://www.aabskive.dk/p/Files/Boligdata/Dokumenter/Sel.%201%20Arbejdernes%20AndelsBoligforening/Referater%20hovedbestyrelsen/Referat-hovedbestyrelsesm&#xF8;de-2025-05-15.pdf)
                                            [Referat hovedbestyrelsesmøde 2025 06 04.pdf](https://www.aabskive.dk/p/Files/Boligdata/Dokumenter/Sel.%201%20Arbejdernes%20AndelsBoligforening/Referater%20hovedbestyrelsen/Referat-hovedbestyrelsesm&#xF8;de-2025-06-04.pdf)
                                            [Referat hovedbestyrelsesmøde 2025 09 01.pdf](https://www.aabskive.dk/p/Files/Boligdata/Dokumenter/Sel.%201%20Arbejdernes%20AndelsBoligforening/Referater%20hovedbestyrelsen/Referat-hovedbestyrelsesm&#xF8;de-2025-09-01.pdf)
                                            [Referat hovedbestyrelsesmøde 2025 10 06.pdf](https://www.aabskive.dk/p/Files/Boligdata/Dokumenter/Sel.%201%20Arbejdernes%20AndelsBoligforening/Referater%20hovedbestyrelsen/Referat-hovedbestyrelsesm&#xF8;de-2025-10-06.pdf)
                                            [Referat hovedbestyrelsesmøde 2025 11 03.pdf](https://www.aabskive.dk/p/Files/Boligdata/Dokumenter/Sel.%201%20Arbejdernes%20AndelsBoligforening/Referater%20hovedbestyrelsen/Referat-hovedbestyrelsesm&#xF8;de-2025-11-03.pdf)
                                            [Referat hovedbestyrelsesmøde 2025 12 01.pdf](https://www.aabskive.dk/p/Files/Boligdata/Dokumenter/Sel.%201%20Arbejdernes%20AndelsBoligforening/Referater%20hovedbestyrelsen/Referat-hovedbestyrelsesm&#xF8;de-2025-12-01.pdf)
                                            [Referat hovedbestyrelsesmøde 2026 02 02.pdf](https://www.aabskive.dk/p/Files/Boligdata/Dokumenter/Sel.%201%20Arbejdernes%20AndelsBoligforening/Referater%20hovedbestyrelsen/Referat-hovedbestyrelsesm&#xF8;de-2026-02-02.pdf)
                                            [Referat hovedbestyrelsesmøde 2026 03 02.pdf](https://www.aabskive.dk/p/Files/Boligdata/Dokumenter/Sel.%201%20Arbejdernes%20AndelsBoligforening/Referater%20hovedbestyrelsen/Referat-hovedbestyrelsesm&#xF8;de-2026-03-02.pdf)
                                            [Referat hovedbestyrelsesmøde 2026 04 13.pdf](https://www.aabskive.dk/p/Files/Boligdata/Dokumenter/Sel.%201%20Arbejdernes%20AndelsBoligforening/Referater%20hovedbestyrelsen/Referat-hovedbestyrelsesm&#xF8;de-2026-04-13.pdf)
                                            [Referat hovedbestyrelsesmøde 2026 05 11.pdf](https://www.aabskive.dk/p/Files/Boligdata/Dokumenter/Sel.%201%20Arbejdernes%20AndelsBoligforening/Referater%20hovedbestyrelsen/Referat-hovedbestyrelsesm&#xF8;de-2026-05-11.pdf)

###

                                                Vedtægter

[Vedtægter for Arbejdernes Andelsboligforening.pdf](https://www.aabskive.dk/p/Files/Boligdata/Dokumenter/Sel.%201%20Arbejdernes%20AndelsBoligforening/Vedt&#xE6;gter/Vedt&#xE6;gter-for-Arbejdernes-Andelsboligforening.pdf)

###

                                                Regnskaber

[Hovedforening 2023.pdf](https://www.aabskive.dk/p/Files/Boligdata/Dokumenter/Sel.%201%20Arbejdernes%20AndelsBoligforening/Regnskaber/Hovedforening-2023.pdf)
                                            [Hovedforeningen 2024.pdf](https://www.aabskive.dk/p/Files/Boligdata/Dokumenter/Sel.%201%20Arbejdernes%20AndelsBoligforening/Regnskaber/Hovedforeningen-2024.pdf)

###

                                                Beretninger generalforsamling

[Beretning 2023.pdf](https://www.aabskive.dk/p/Files/Boligdata/Dokumenter/Sel.%201%20Arbejdernes%20AndelsBoligforening/Beretninger%20generalforsamling/Beretning-2023.pdf)
                                            [Beretning 2024 05 29.pdf](https://www.aabskive.dk/p/Files/Boligdata/Dokumenter/Sel.%201%20Arbejdernes%20AndelsBoligforening/Beretninger%20generalforsamling/Beretning-2024-05-29.pdf)
                                            [Beretning 2024.pdf](https://www.aabskive.dk/p/Files/Boligdata/Dokumenter/Sel.%201%20Arbejdernes%20AndelsBoligforening/Beretninger%20generalforsamling/Beretning-2024.pdf)
                                            [Beretning 2025 05 26.pdf](https://www.aabskive.dk/p/Files/Boligdata/Dokumenter/Sel.%201%20Arbejdernes%20AndelsBoligforening/Beretninger%20generalforsamling/Beretning-2025-05-26.pdf)

###

                                                Referater generalforsamling

[Referat generalforsamling 2023 05 31 underskrevet.pdf](https://www.aabskive.dk/p/Files/Boligdata/Dokumenter/Sel.%201%20Arbejdernes%20AndelsBoligforening/Referater%20generalforsamling/Referat-generalforsamling-2023-05-31-underskrevet.pdf)
                                            [Referat generalforsamling 2024 05 29 underskrevet.pdf](https://www.aabskive.dk/p/Files/Boligdata/Dokumenter/Sel.%201%20Arbejdernes%20AndelsBoligforening/Referater%20generalforsamling/Referat-generalforsamling-2024-05-29-underskrevet.pdf)
                                            [Referat generalforsamling 2025 05 26 underskrevet.pdf](https://www.aabskive.dk/p/Files/Boligdata/Dokumenter/Sel.%201%20Arbejdernes%20AndelsBoligforening/Referater%20generalforsamling/Referat-generalforsamling-2025-05-26-underskrevet.pdf)
