---
title: "Bjarkesvej"
description: "1-15"
date: "2026-05-05"
created: "2025-07-07"
---

-
-
-
-
-
-
-

https://maps.google.dk/?q=56.5488136,9.0453534

# Bjarkesvej

Afdeling 15

## Velkommen til afdeling 15 Bjarkesvej

Bjarkesvej er beliggende i den sydøstlige del af byen med gode forbindelser til byens ringveje, Skive centrum samt indkøb.

Bebyggelsen er opført i 1984 og består af 63 rækkehuse. Der er store grønne friarealer, legeplads, fællesvaskeri og fælleshus. Der er have og terrasse til alle boligerne.
Enkelte boliger har fået nyt køkken og/eller badeværelse, ligesom hovedparten har fået ovenlysvindue i badeværelse. Hvor dette endnu ikke er foretaget kan dette ske mod en huslejeforhøjelse såfremt dette ønskes.

Hver bolig er tilsluttet fiberbredbånd, hvor der kan indgås aftale om tv, internet m.v. direkte med forskellige udbydere. Som en anden valgmulighed er boligerne tilsluttet Antenneforeningen Glattrup, hvor YouSee tilbyder deres tv-pakker og internet.

Boligforeningen råder over 3 gæsteværelser andre steder i Skive by som kan lejes af alle beboere.

## Faciliteter

Husdyr

Ja

Det er tilladt at holde 1 hund eller 1 kat.

Vaskemaskine

Ja

Installation af vaskemaskine og tørretumbler er muligt. Kontakt AAB for mere information.

Carport/garage

Ja

Der er 14 carporte som kan lejes via venteliste.

TV

Ja

Er tilsluttet YouSee - via Antenneforeningen Glattrup

Vaskeri

Ja

Der er fællesvaskeri.

Fælleshus

Ja

Der er fælleshus

## Boliger i afdelingen

Familiebolig

2 værelses

Familiebolig

Familiebolig

3 værelses

Familiebolig

Familiebolig

4 værelses

Familiebolig

Boligtype

Værelser

Størrelse

Husleje

Indskud/dp

Plantegning

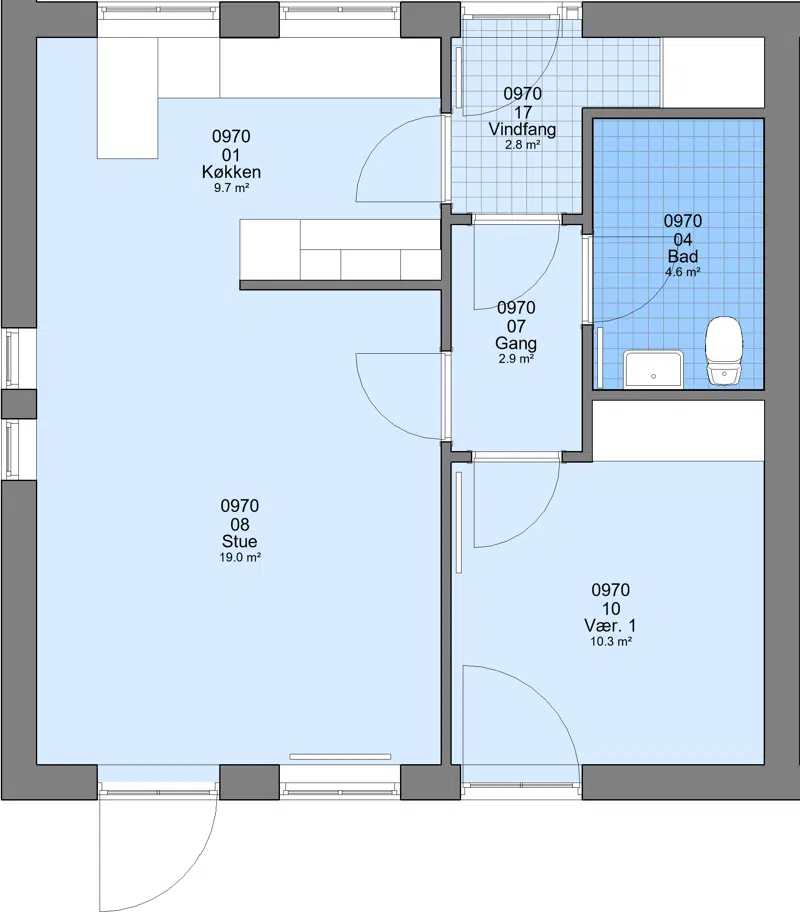
Familiebolig

2

60 m²

4317 kr.

13203 kr.

![](https://www.aabskive.dk/i/MOLIRIMEDIA/97367894-273d-49bf-b9ec-08dd5bf69135?width=800)






![](https://www.aabskive.dk/i/MOLIRIMEDIA/97367894-273d-49bf-b9ec-08dd5bf69135?width=800)

![](https://www.aabskive.dk/i/MOLIRIMEDIA/217092eb-87ef-4278-bc44-08dd5bf69135?width=800)

![](https://www.aabskive.dk/i/MOLIRIMEDIA/97367894-273d-49bf-b9ec-08dd5bf69135?width=800)

![](https://www.aabskive.dk/i/MOLIRIMEDIA/217092eb-87ef-4278-bc44-08dd5bf69135?width=800)

Familiebolig

2

70 m²

4871 kr.

14613 kr.

![](https://www.aabskive.dk/i/MOLIRIMEDIA/e8ca1ea6-526c-448d-b8b2-08dd5bf69135?width=800)






![](https://www.aabskive.dk/i/MOLIRIMEDIA/e8ca1ea6-526c-448d-b8b2-08dd5bf69135?width=800)

![](https://www.aabskive.dk/i/MOLIRIMEDIA/71191b73-77d9-427d-bc4d-08dd5bf69135?width=800)

![](https://www.aabskive.dk/i/MOLIRIMEDIA/e8ca1ea6-526c-448d-b8b2-08dd5bf69135?width=800)

![](https://www.aabskive.dk/i/MOLIRIMEDIA/71191b73-77d9-427d-bc4d-08dd5bf69135?width=800)

Familiebolig

3

84 m²

6370 kr.

19110 kr.

![](https://www.aabskive.dk/i/MOLIRIMEDIA/532bf028-d9f4-4d97-b8bc-08dd5bf69135?width=800)






![](https://www.aabskive.dk/i/MOLIRIMEDIA/532bf028-d9f4-4d97-b8bc-08dd5bf69135?width=800)

![](https://www.aabskive.dk/i/MOLIRIMEDIA/13f2c7b9-1b51-4c77-bcc9-08dd5bf69135?width=800)

![](https://www.aabskive.dk/i/MOLIRIMEDIA/532bf028-d9f4-4d97-b8bc-08dd5bf69135?width=800)

![](https://www.aabskive.dk/i/MOLIRIMEDIA/13f2c7b9-1b51-4c77-bcc9-08dd5bf69135?width=800)

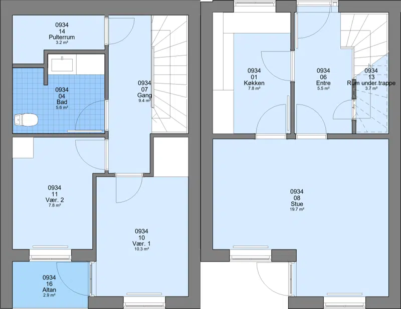
Familiebolig

3

80 m²

6018 kr.

18054 kr.

![](https://www.aabskive.dk/i/MOLIRIMEDIA/3452cc41-3f0a-4b79-b7e9-08dd5bf69135?width=800)






![](https://www.aabskive.dk/i/MOLIRIMEDIA/3452cc41-3f0a-4b79-b7e9-08dd5bf69135?width=800)

![](https://www.aabskive.dk/i/MOLIRIMEDIA/61f7e3a3-48a4-4091-bd16-08dd5bf69135?width=800)

![](https://www.aabskive.dk/i/MOLIRIMEDIA/3452cc41-3f0a-4b79-b7e9-08dd5bf69135?width=800)

![](https://www.aabskive.dk/i/MOLIRIMEDIA/61f7e3a3-48a4-4091-bd16-08dd5bf69135?width=800)

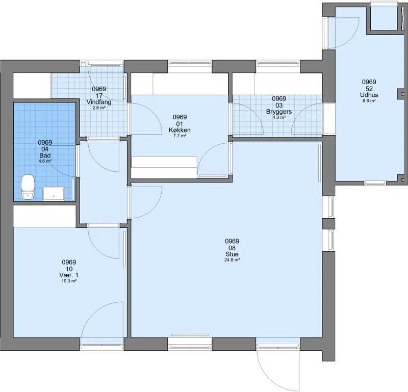
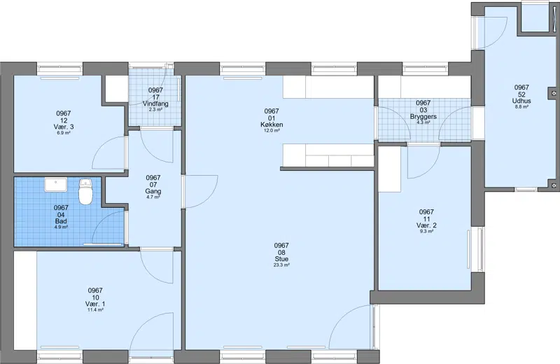
Familiebolig

3

85 m²

6830 kr.

20490 kr.

![](https://www.aabskive.dk/i/MOLIRIMEDIA/09caafc7-e75a-43d3-bc13-08dd5bf69135?width=800)






![](https://www.aabskive.dk/i/MOLIRIMEDIA/09caafc7-e75a-43d3-bc13-08dd5bf69135?width=800)

![](https://www.aabskive.dk/i/MOLIRIMEDIA/b4ff7659-0c8e-4521-bc73-08dd5bf69135?width=800)

![](https://www.aabskive.dk/i/MOLIRIMEDIA/6d488775-ff96-48cc-bc67-08dd5bf69135?width=800)

![](https://www.aabskive.dk/i/MOLIRIMEDIA/09caafc7-e75a-43d3-bc13-08dd5bf69135?width=800)

![](https://www.aabskive.dk/i/MOLIRIMEDIA/b4ff7659-0c8e-4521-bc73-08dd5bf69135?width=800)

![](https://www.aabskive.dk/i/MOLIRIMEDIA/6d488775-ff96-48cc-bc67-08dd5bf69135?width=800)

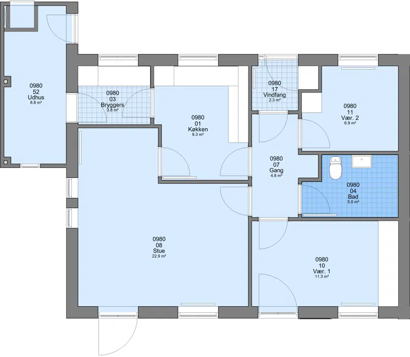
Familiebolig

4

97 m²

6388 kr.

19164 kr.

![](https://www.aabskive.dk/i/MOLIRIMEDIA/8dd0d79a-2b5e-45e2-bb57-08dd5bf69135?width=800)






![](https://www.aabskive.dk/i/MOLIRIMEDIA/8dd0d79a-2b5e-45e2-bb57-08dd5bf69135?width=800)

![](https://www.aabskive.dk/i/MOLIRIMEDIA/3b739b47-3886-4ab9-bcb7-08dd5bf69135?width=800)

![](https://www.aabskive.dk/i/MOLIRIMEDIA/8dd0d79a-2b5e-45e2-bb57-08dd5bf69135?width=800)

![](https://www.aabskive.dk/i/MOLIRIMEDIA/3b739b47-3886-4ab9-bcb7-08dd5bf69135?width=800)

## Afdelingsdokumenter

Her finder du nyttig information om din afdeling, såsom husorden, vedligeholdelse af dit lejemål, referater m.m.

###

                                                Regnskaber

[Regnskab 2024 og budget 2026 afdeling 15.pdf](https://www.aabskive.dk/p/Files/Boligdata/Dokumenter/Afdelingsregnskaber/Regnskab-2024-og-budget-2026-afdeling-15.pdf)

###

                                                Vedligeholdelse

[Vedligeholdelsesreglement afd 15.pdf](https://www.aabskive.dk/p/Files/Boligdata/Dokumenter/Vedligeholdelse/Vedligeholdelsesreglement-afd-15.pdf)

###

                                                Husorden

[Ordensreglement afdeling 15.pdf](https://www.aabskive.dk/p/Files/Boligdata/Dokumenter/Husordener/Ordensreglement-afdeling-15.pdf)

## Selskabsdokumenter

Her finder du nyttig information om din selskab.

###

                                                Referater hovedbestyrelsen

[Referat hovedbestyrelsesmøde 2024 04 03.pdf](https://www.aabskive.dk/p/Files/Boligdata/Dokumenter/Sel.%201%20Arbejdernes%20AndelsBoligforening/Referater%20hovedbestyrelsen/Referat-hovedbestyrelsesm&#xF8;de-2024-04-03.pdf)
                                            [Referat hovedbestyrelsesmøde 2024 05 13.pdf](https://www.aabskive.dk/p/Files/Boligdata/Dokumenter/Sel.%201%20Arbejdernes%20AndelsBoligforening/Referater%20hovedbestyrelsen/Referat-hovedbestyrelsesm&#xF8;de-2024-05-13.pdf)
                                            [Referat hovedbestyrelsesmøde 2024 06 03.pdf](https://www.aabskive.dk/p/Files/Boligdata/Dokumenter/Sel.%201%20Arbejdernes%20AndelsBoligforening/Referater%20hovedbestyrelsen/Referat-hovedbestyrelsesm&#xF8;de-2024-06-03.pdf)
                                            [Referat hovedbestyrelsesmøde 2024 09 02.pdf](https://www.aabskive.dk/p/Files/Boligdata/Dokumenter/Sel.%201%20Arbejdernes%20AndelsBoligforening/Referater%20hovedbestyrelsen/Referat-hovedbestyrelsesm&#xF8;de-2024-09-02.pdf)
                                            [Referat hovedbestyrelsesmøde 2024 10 07.pdf](https://www.aabskive.dk/p/Files/Boligdata/Dokumenter/Sel.%201%20Arbejdernes%20AndelsBoligforening/Referater%20hovedbestyrelsen/Referat-hovedbestyrelsesm&#xF8;de-2024-10-07.pdf)
                                            [Referat hovedbestyrelsesmøde 2024 11 04.pdf](https://www.aabskive.dk/p/Files/Boligdata/Dokumenter/Sel.%201%20Arbejdernes%20AndelsBoligforening/Referater%20hovedbestyrelsen/Referat-hovedbestyrelsesm&#xF8;de-2024-11-04.pdf)
                                            [Referat hovedbestyrelsesmøde 2024 12 02.pdf](https://www.aabskive.dk/p/Files/Boligdata/Dokumenter/Sel.%201%20Arbejdernes%20AndelsBoligforening/Referater%20hovedbestyrelsen/Referat-hovedbestyrelsesm&#xF8;de-2024-12-02.pdf)
                                            [Referat hovedbestyrelsesmøde 2025 02 03.pdf](https://www.aabskive.dk/p/Files/Boligdata/Dokumenter/Sel.%201%20Arbejdernes%20AndelsBoligforening/Referater%20hovedbestyrelsen/Referat-hovedbestyrelsesm&#xF8;de-2025-02-03.pdf)
                                            [Referat hovedbestyrelsesmøde 2025 03 03.pdf](https://www.aabskive.dk/p/Files/Boligdata/Dokumenter/Sel.%201%20Arbejdernes%20AndelsBoligforening/Referater%20hovedbestyrelsen/Referat-hovedbestyrelsesm&#xF8;de-2025-03-03.pdf)
                                            [Referat hovedbestyrelsesmøde 2025 04 07.pdf](https://www.aabskive.dk/p/Files/Boligdata/Dokumenter/Sel.%201%20Arbejdernes%20AndelsBoligforening/Referater%20hovedbestyrelsen/Referat-hovedbestyrelsesm&#xF8;de-2025-04-07.pdf)
                                            [Referat hovedbestyrelsesmøde 2025 05 15.pdf](https://www.aabskive.dk/p/Files/Boligdata/Dokumenter/Sel.%201%20Arbejdernes%20AndelsBoligforening/Referater%20hovedbestyrelsen/Referat-hovedbestyrelsesm&#xF8;de-2025-05-15.pdf)
                                            [Referat hovedbestyrelsesmøde 2025 06 04.pdf](https://www.aabskive.dk/p/Files/Boligdata/Dokumenter/Sel.%201%20Arbejdernes%20AndelsBoligforening/Referater%20hovedbestyrelsen/Referat-hovedbestyrelsesm&#xF8;de-2025-06-04.pdf)
                                            [Referat hovedbestyrelsesmøde 2025 09 01.pdf](https://www.aabskive.dk/p/Files/Boligdata/Dokumenter/Sel.%201%20Arbejdernes%20AndelsBoligforening/Referater%20hovedbestyrelsen/Referat-hovedbestyrelsesm&#xF8;de-2025-09-01.pdf)
                                            [Referat hovedbestyrelsesmøde 2025 10 06.pdf](https://www.aabskive.dk/p/Files/Boligdata/Dokumenter/Sel.%201%20Arbejdernes%20AndelsBoligforening/Referater%20hovedbestyrelsen/Referat-hovedbestyrelsesm&#xF8;de-2025-10-06.pdf)
                                            [Referat hovedbestyrelsesmøde 2025 11 03.pdf](https://www.aabskive.dk/p/Files/Boligdata/Dokumenter/Sel.%201%20Arbejdernes%20AndelsBoligforening/Referater%20hovedbestyrelsen/Referat-hovedbestyrelsesm&#xF8;de-2025-11-03.pdf)
                                            [Referat hovedbestyrelsesmøde 2025 12 01.pdf](https://www.aabskive.dk/p/Files/Boligdata/Dokumenter/Sel.%201%20Arbejdernes%20AndelsBoligforening/Referater%20hovedbestyrelsen/Referat-hovedbestyrelsesm&#xF8;de-2025-12-01.pdf)
                                            [Referat hovedbestyrelsesmøde 2026 02 02.pdf](https://www.aabskive.dk/p/Files/Boligdata/Dokumenter/Sel.%201%20Arbejdernes%20AndelsBoligforening/Referater%20hovedbestyrelsen/Referat-hovedbestyrelsesm&#xF8;de-2026-02-02.pdf)
                                            [Referat hovedbestyrelsesmøde 2026 03 02.pdf](https://www.aabskive.dk/p/Files/Boligdata/Dokumenter/Sel.%201%20Arbejdernes%20AndelsBoligforening/Referater%20hovedbestyrelsen/Referat-hovedbestyrelsesm&#xF8;de-2026-03-02.pdf)
                                            [Referat hovedbestyrelsesmøde 2026 04 13.pdf](https://www.aabskive.dk/p/Files/Boligdata/Dokumenter/Sel.%201%20Arbejdernes%20AndelsBoligforening/Referater%20hovedbestyrelsen/Referat-hovedbestyrelsesm&#xF8;de-2026-04-13.pdf)
                                            [Referat hovedbestyrelsesmøde 2026 05 11.pdf](https://www.aabskive.dk/p/Files/Boligdata/Dokumenter/Sel.%201%20Arbejdernes%20AndelsBoligforening/Referater%20hovedbestyrelsen/Referat-hovedbestyrelsesm&#xF8;de-2026-05-11.pdf)

###

                                                Vedtægter

[Vedtægter for Arbejdernes Andelsboligforening.pdf](https://www.aabskive.dk/p/Files/Boligdata/Dokumenter/Sel.%201%20Arbejdernes%20AndelsBoligforening/Vedt&#xE6;gter/Vedt&#xE6;gter-for-Arbejdernes-Andelsboligforening.pdf)

###

                                                Regnskaber

[Hovedforening 2023.pdf](https://www.aabskive.dk/p/Files/Boligdata/Dokumenter/Sel.%201%20Arbejdernes%20AndelsBoligforening/Regnskaber/Hovedforening-2023.pdf)
                                            [Hovedforeningen 2024.pdf](https://www.aabskive.dk/p/Files/Boligdata/Dokumenter/Sel.%201%20Arbejdernes%20AndelsBoligforening/Regnskaber/Hovedforeningen-2024.pdf)

###

                                                Beretninger generalforsamling

[Beretning 2023.pdf](https://www.aabskive.dk/p/Files/Boligdata/Dokumenter/Sel.%201%20Arbejdernes%20AndelsBoligforening/Beretninger%20generalforsamling/Beretning-2023.pdf)
                                            [Beretning 2024 05 29.pdf](https://www.aabskive.dk/p/Files/Boligdata/Dokumenter/Sel.%201%20Arbejdernes%20AndelsBoligforening/Beretninger%20generalforsamling/Beretning-2024-05-29.pdf)
                                            [Beretning 2024.pdf](https://www.aabskive.dk/p/Files/Boligdata/Dokumenter/Sel.%201%20Arbejdernes%20AndelsBoligforening/Beretninger%20generalforsamling/Beretning-2024.pdf)
                                            [Beretning 2025 05 26.pdf](https://www.aabskive.dk/p/Files/Boligdata/Dokumenter/Sel.%201%20Arbejdernes%20AndelsBoligforening/Beretninger%20generalforsamling/Beretning-2025-05-26.pdf)

###

                                                Referater generalforsamling

[Referat generalforsamling 2023 05 31 underskrevet.pdf](https://www.aabskive.dk/p/Files/Boligdata/Dokumenter/Sel.%201%20Arbejdernes%20AndelsBoligforening/Referater%20generalforsamling/Referat-generalforsamling-2023-05-31-underskrevet.pdf)
                                            [Referat generalforsamling 2024 05 29 underskrevet.pdf](https://www.aabskive.dk/p/Files/Boligdata/Dokumenter/Sel.%201%20Arbejdernes%20AndelsBoligforening/Referater%20generalforsamling/Referat-generalforsamling-2024-05-29-underskrevet.pdf)
                                            [Referat generalforsamling 2025 05 26 underskrevet.pdf](https://www.aabskive.dk/p/Files/Boligdata/Dokumenter/Sel.%201%20Arbejdernes%20AndelsBoligforening/Referater%20generalforsamling/Referat-generalforsamling-2025-05-26-underskrevet.pdf)
