---
title: "Dalgas Allé 1 - 47"
description: "1-11"
date: "2026-02-19"
created: "2025-07-07"
---

-
-
-
-
-
-

https://maps.google.dk/?q=56.5574192,9.0162791

# Dalgas Allé 1 - 47

Afdeling 11

## Velkommen til afdeling 11 Dalgas Allé 1 - 47

Bebyggelsen er beliggende i den vestlige del af byen, tæt på ringvejen.
Der er multibane og legepladser til børnene, en del garager for beboerne samt et fælleshus. Bebyggelsen, der består af 12 boligblokke på 3 etager, er opført i 1970, og har fået nye køkkener, nyt tag og facader. I 2016/2017 har alle boliger fået nye badeværelser med egen vaskemaskine og tørretumbler. Ligeledes har en del boliger fået nye indvendige døre og nye garderobeskabe. Hvor dette endnu ikke er foretaget kan dette foretages mod en huslejeforhøjelse såfremt dette ønskes.

Der er fælles cykelrum, knallertrum og barnevognsrum. Til hver lejlighed hører eget pulterrum.
Til hovedparten af stuelejligheder er der have - ellers er der mulighed for anlæggelse af dette.

Hver bolig er tilsluttet fiberbredbånd, hvor der kan indgås aftale om tv, internet m.v. direkte med forskellige udbydere. Som en anden valgmulighed har boligerne eget antenneanlæg, hvor YouSee tilbyder deres tv-pakker og internet.

6 gange årligt foretages udvendig vinduesvask af samtlige boliger, ligesom der løbende udføres trappevask.

Der er ladestander til elbiler på P-pladsen ved Dalgas Allé 29-31.

Der er fælleshus samt 2 gæsteværelser som kan lejes af alle beboere.
Boligforeningen råder over yderligere 1 gæsteværelse et andet sted i Skive by som kan lejes af alle beboere.

## Faciliteter

Husdyr

Nej

Det er ikke tilladt at holde husdyr i afdelingen.

Vaskemaskine

Ja

Der er installeret vaskemaskine og tørretumbler i boligen.

Carport/garage

Ja

Der er 30 garager som kan lejes via venteliste.

TV

Ja

Er tilsluttet både YouSee samt fibernet

Fælleshus

Ja

Der er fælleshus og 2 gæsteværelser

## Boliger i afdelingen

Familiebolig

1 værelses

Familiebolig

Familiebolig

3 værelses

Familiebolig

Familiebolig

4 værelses

Familiebolig

Boligtype

Værelser

Størrelse

Husleje

Indskud/dp

Plantegning

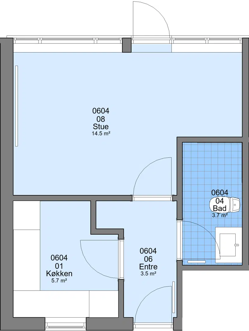
Familiebolig

1

35 m²

3089 kr.

8901 kr.

![](https://www.aabskive.dk/i/MOLIRIMEDIA/1a5a8eb3-c453-45ec-b8e6-08dd5bf69135?width=800)






![](https://www.aabskive.dk/i/MOLIRIMEDIA/1a5a8eb3-c453-45ec-b8e6-08dd5bf69135?width=800)

![](https://www.aabskive.dk/i/MOLIRIMEDIA/130416d6-b41f-49ae-9229-08ddb87da2d4?width=800)

![](https://www.aabskive.dk/i/MOLIRIMEDIA/1a5a8eb3-c453-45ec-b8e6-08dd5bf69135?width=800)

![](https://www.aabskive.dk/i/MOLIRIMEDIA/130416d6-b41f-49ae-9229-08ddb87da2d4?width=800)

Familiebolig

3

79 m²

5045 kr.

15135 kr.

![](https://www.aabskive.dk/i/MOLIRIMEDIA/710c9a66-18e2-44ba-bbb5-08dd5bf69135?width=800)






![](https://www.aabskive.dk/i/MOLIRIMEDIA/710c9a66-18e2-44ba-bbb5-08dd5bf69135?width=800)

![](https://www.aabskive.dk/i/MOLIRIMEDIA/88fc237c-3a6d-4161-bc3a-08dd5bf69135?width=800)

![](https://www.aabskive.dk/i/MOLIRIMEDIA/8e8618e7-2ce7-4072-8fa6-08ddb87da2d4?width=800)

![](https://www.aabskive.dk/i/MOLIRIMEDIA/710c9a66-18e2-44ba-bbb5-08dd5bf69135?width=800)

![](https://www.aabskive.dk/i/MOLIRIMEDIA/88fc237c-3a6d-4161-bc3a-08dd5bf69135?width=800)

![](https://www.aabskive.dk/i/MOLIRIMEDIA/8e8618e7-2ce7-4072-8fa6-08ddb87da2d4?width=800)

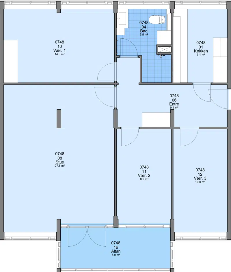
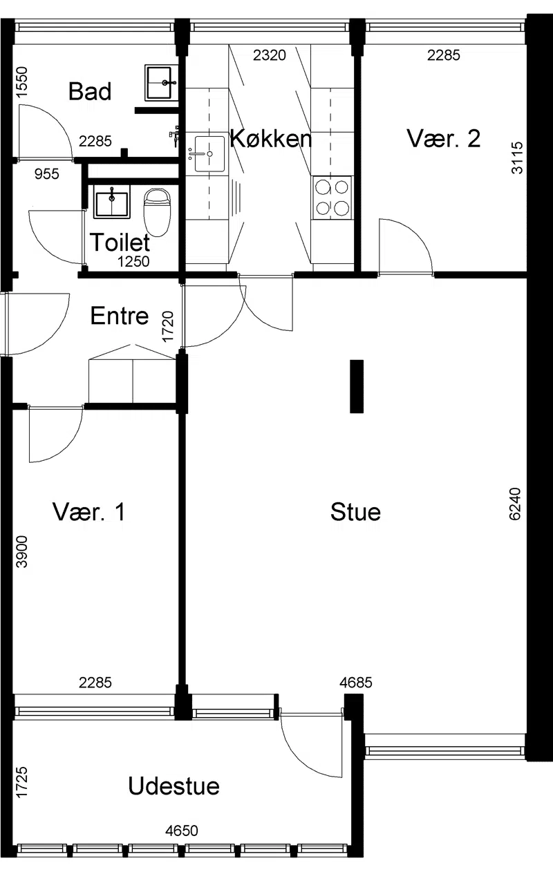
Familiebolig

4

102 m²

5917 kr.

17751 kr.

![](https://www.aabskive.dk/i/MOLIRIMEDIA/7c3dfbb4-6fb1-42ef-bbfa-08dd5bf69135?width=800)






![](https://www.aabskive.dk/i/MOLIRIMEDIA/7c3dfbb4-6fb1-42ef-bbfa-08dd5bf69135?width=800)

![](https://www.aabskive.dk/i/MOLIRIMEDIA/7e95f37b-43a2-41d2-bd3f-08dd5bf69135?width=800)

![](https://www.aabskive.dk/i/MOLIRIMEDIA/a114eb11-47bb-4916-bc9a-08dd5bf69135?width=800)

![](https://www.aabskive.dk/i/MOLIRIMEDIA/7c3dfbb4-6fb1-42ef-bbfa-08dd5bf69135?width=800)

![](https://www.aabskive.dk/i/MOLIRIMEDIA/7e95f37b-43a2-41d2-bd3f-08dd5bf69135?width=800)

![](https://www.aabskive.dk/i/MOLIRIMEDIA/a114eb11-47bb-4916-bc9a-08dd5bf69135?width=800)

Familiebolig

4

87 m²

5372 kr.

16116 kr.

![](https://www.aabskive.dk/i/MOLIRIMEDIA/c72c1cdd-bbb8-4c58-babb-08dd5bf69135?width=800)






![](https://www.aabskive.dk/i/MOLIRIMEDIA/c72c1cdd-bbb8-4c58-babb-08dd5bf69135?width=800)

![](https://www.aabskive.dk/i/MOLIRIMEDIA/f05cea06-2a67-4749-bd39-08dd5bf69135?width=800)

![](https://www.aabskive.dk/i/MOLIRIMEDIA/0974c096-ebde-46c5-8fd8-08ddb87da2d4?width=800)

![](https://www.aabskive.dk/i/MOLIRIMEDIA/c72c1cdd-bbb8-4c58-babb-08dd5bf69135?width=800)

![](https://www.aabskive.dk/i/MOLIRIMEDIA/f05cea06-2a67-4749-bd39-08dd5bf69135?width=800)

![](https://www.aabskive.dk/i/MOLIRIMEDIA/0974c096-ebde-46c5-8fd8-08ddb87da2d4?width=800)

## Afdelingsdokumenter

Her finder du nyttig information om din afdeling, såsom husorden, vedligeholdelse af dit lejemål, referater m.m.

###

                                                Regnskaber

[Regnskab 2024 og budget 2026 afdeling 11.pdf](https://www.aabskive.dk/p/Files/Boligdata/Dokumenter/Afdelingsregnskaber/Regnskab-2024-og-budget-2026-afdeling-11.pdf)

###

                                                Vedligeholdelse

[vedligeholdelsesreglement afd 11.pdf](https://www.aabskive.dk/p/Files/Boligdata/Dokumenter/Vedligeholdelse/Vedligeholdelsesreglement-afd-11.pdf)

###

                                                Husorden

[Ordensreglement afdeling 11.1.pdf](https://www.aabskive.dk/p/Files/Boligdata/Dokumenter/Husordener/Ordensreglement-afdeling-11.1.pdf)

## Selskabsdokumenter

Her finder du nyttig information om din selskab.

###

                                                Referater hovedbestyrelsen

[Referat hovedbestyrelsesmøde 2024 04 03.pdf](https://www.aabskive.dk/p/Files/Boligdata/Dokumenter/Sel.%201%20Arbejdernes%20AndelsBoligforening/Referater%20hovedbestyrelsen/Referat-hovedbestyrelsesm&#xF8;de-2024-04-03.pdf)
                                            [Referat hovedbestyrelsesmøde 2024 05 13.pdf](https://www.aabskive.dk/p/Files/Boligdata/Dokumenter/Sel.%201%20Arbejdernes%20AndelsBoligforening/Referater%20hovedbestyrelsen/Referat-hovedbestyrelsesm&#xF8;de-2024-05-13.pdf)
                                            [Referat hovedbestyrelsesmøde 2024 06 03.pdf](https://www.aabskive.dk/p/Files/Boligdata/Dokumenter/Sel.%201%20Arbejdernes%20AndelsBoligforening/Referater%20hovedbestyrelsen/Referat-hovedbestyrelsesm&#xF8;de-2024-06-03.pdf)
                                            [Referat hovedbestyrelsesmøde 2024 09 02.pdf](https://www.aabskive.dk/p/Files/Boligdata/Dokumenter/Sel.%201%20Arbejdernes%20AndelsBoligforening/Referater%20hovedbestyrelsen/Referat-hovedbestyrelsesm&#xF8;de-2024-09-02.pdf)
                                            [Referat hovedbestyrelsesmøde 2024 10 07.pdf](https://www.aabskive.dk/p/Files/Boligdata/Dokumenter/Sel.%201%20Arbejdernes%20AndelsBoligforening/Referater%20hovedbestyrelsen/Referat-hovedbestyrelsesm&#xF8;de-2024-10-07.pdf)
                                            [Referat hovedbestyrelsesmøde 2024 11 04.pdf](https://www.aabskive.dk/p/Files/Boligdata/Dokumenter/Sel.%201%20Arbejdernes%20AndelsBoligforening/Referater%20hovedbestyrelsen/Referat-hovedbestyrelsesm&#xF8;de-2024-11-04.pdf)
                                            [Referat hovedbestyrelsesmøde 2024 12 02.pdf](https://www.aabskive.dk/p/Files/Boligdata/Dokumenter/Sel.%201%20Arbejdernes%20AndelsBoligforening/Referater%20hovedbestyrelsen/Referat-hovedbestyrelsesm&#xF8;de-2024-12-02.pdf)
                                            [Referat hovedbestyrelsesmøde 2025 02 03.pdf](https://www.aabskive.dk/p/Files/Boligdata/Dokumenter/Sel.%201%20Arbejdernes%20AndelsBoligforening/Referater%20hovedbestyrelsen/Referat-hovedbestyrelsesm&#xF8;de-2025-02-03.pdf)
                                            [Referat hovedbestyrelsesmøde 2025 03 03.pdf](https://www.aabskive.dk/p/Files/Boligdata/Dokumenter/Sel.%201%20Arbejdernes%20AndelsBoligforening/Referater%20hovedbestyrelsen/Referat-hovedbestyrelsesm&#xF8;de-2025-03-03.pdf)
                                            [Referat hovedbestyrelsesmøde 2025 04 07.pdf](https://www.aabskive.dk/p/Files/Boligdata/Dokumenter/Sel.%201%20Arbejdernes%20AndelsBoligforening/Referater%20hovedbestyrelsen/Referat-hovedbestyrelsesm&#xF8;de-2025-04-07.pdf)
                                            [Referat hovedbestyrelsesmøde 2025 05 15.pdf](https://www.aabskive.dk/p/Files/Boligdata/Dokumenter/Sel.%201%20Arbejdernes%20AndelsBoligforening/Referater%20hovedbestyrelsen/Referat-hovedbestyrelsesm&#xF8;de-2025-05-15.pdf)
                                            [Referat hovedbestyrelsesmøde 2025 06 04.pdf](https://www.aabskive.dk/p/Files/Boligdata/Dokumenter/Sel.%201%20Arbejdernes%20AndelsBoligforening/Referater%20hovedbestyrelsen/Referat-hovedbestyrelsesm&#xF8;de-2025-06-04.pdf)
                                            [Referat hovedbestyrelsesmøde 2025 09 01.pdf](https://www.aabskive.dk/p/Files/Boligdata/Dokumenter/Sel.%201%20Arbejdernes%20AndelsBoligforening/Referater%20hovedbestyrelsen/Referat-hovedbestyrelsesm&#xF8;de-2025-09-01.pdf)
                                            [Referat hovedbestyrelsesmøde 2025 10 06.pdf](https://www.aabskive.dk/p/Files/Boligdata/Dokumenter/Sel.%201%20Arbejdernes%20AndelsBoligforening/Referater%20hovedbestyrelsen/Referat-hovedbestyrelsesm&#xF8;de-2025-10-06.pdf)
                                            [Referat hovedbestyrelsesmøde 2025 11 03.pdf](https://www.aabskive.dk/p/Files/Boligdata/Dokumenter/Sel.%201%20Arbejdernes%20AndelsBoligforening/Referater%20hovedbestyrelsen/Referat-hovedbestyrelsesm&#xF8;de-2025-11-03.pdf)
                                            [Referat hovedbestyrelsesmøde 2025 12 01.pdf](https://www.aabskive.dk/p/Files/Boligdata/Dokumenter/Sel.%201%20Arbejdernes%20AndelsBoligforening/Referater%20hovedbestyrelsen/Referat-hovedbestyrelsesm&#xF8;de-2025-12-01.pdf)
                                            [Referat hovedbestyrelsesmøde 2026 02 02.pdf](https://www.aabskive.dk/p/Files/Boligdata/Dokumenter/Sel.%201%20Arbejdernes%20AndelsBoligforening/Referater%20hovedbestyrelsen/Referat-hovedbestyrelsesm&#xF8;de-2026-02-02.pdf)
                                            [Referat hovedbestyrelsesmøde 2026 03 02.pdf](https://www.aabskive.dk/p/Files/Boligdata/Dokumenter/Sel.%201%20Arbejdernes%20AndelsBoligforening/Referater%20hovedbestyrelsen/Referat-hovedbestyrelsesm&#xF8;de-2026-03-02.pdf)
                                            [Referat hovedbestyrelsesmøde 2026 04 13.pdf](https://www.aabskive.dk/p/Files/Boligdata/Dokumenter/Sel.%201%20Arbejdernes%20AndelsBoligforening/Referater%20hovedbestyrelsen/Referat-hovedbestyrelsesm&#xF8;de-2026-04-13.pdf)
                                            [Referat hovedbestyrelsesmøde 2026 05 11.pdf](https://www.aabskive.dk/p/Files/Boligdata/Dokumenter/Sel.%201%20Arbejdernes%20AndelsBoligforening/Referater%20hovedbestyrelsen/Referat-hovedbestyrelsesm&#xF8;de-2026-05-11.pdf)

###

                                                Vedtægter

[Vedtægter for Arbejdernes Andelsboligforening.pdf](https://www.aabskive.dk/p/Files/Boligdata/Dokumenter/Sel.%201%20Arbejdernes%20AndelsBoligforening/Vedt&#xE6;gter/Vedt&#xE6;gter-for-Arbejdernes-Andelsboligforening.pdf)

###

                                                Regnskaber

[Hovedforening 2023.pdf](https://www.aabskive.dk/p/Files/Boligdata/Dokumenter/Sel.%201%20Arbejdernes%20AndelsBoligforening/Regnskaber/Hovedforening-2023.pdf)
                                            [Hovedforeningen 2024.pdf](https://www.aabskive.dk/p/Files/Boligdata/Dokumenter/Sel.%201%20Arbejdernes%20AndelsBoligforening/Regnskaber/Hovedforeningen-2024.pdf)

###

                                                Beretninger generalforsamling

[Beretning 2023.pdf](https://www.aabskive.dk/p/Files/Boligdata/Dokumenter/Sel.%201%20Arbejdernes%20AndelsBoligforening/Beretninger%20generalforsamling/Beretning-2023.pdf)
                                            [Beretning 2024 05 29.pdf](https://www.aabskive.dk/p/Files/Boligdata/Dokumenter/Sel.%201%20Arbejdernes%20AndelsBoligforening/Beretninger%20generalforsamling/Beretning-2024-05-29.pdf)
                                            [Beretning 2024.pdf](https://www.aabskive.dk/p/Files/Boligdata/Dokumenter/Sel.%201%20Arbejdernes%20AndelsBoligforening/Beretninger%20generalforsamling/Beretning-2024.pdf)
                                            [Beretning 2025 05 26.pdf](https://www.aabskive.dk/p/Files/Boligdata/Dokumenter/Sel.%201%20Arbejdernes%20AndelsBoligforening/Beretninger%20generalforsamling/Beretning-2025-05-26.pdf)

###

                                                Referater generalforsamling

[Referat generalforsamling 2023 05 31 underskrevet.pdf](https://www.aabskive.dk/p/Files/Boligdata/Dokumenter/Sel.%201%20Arbejdernes%20AndelsBoligforening/Referater%20generalforsamling/Referat-generalforsamling-2023-05-31-underskrevet.pdf)
                                            [Referat generalforsamling 2024 05 29 underskrevet.pdf](https://www.aabskive.dk/p/Files/Boligdata/Dokumenter/Sel.%201%20Arbejdernes%20AndelsBoligforening/Referater%20generalforsamling/Referat-generalforsamling-2024-05-29-underskrevet.pdf)
                                            [Referat generalforsamling 2025 05 26 underskrevet.pdf](https://www.aabskive.dk/p/Files/Boligdata/Dokumenter/Sel.%201%20Arbejdernes%20AndelsBoligforening/Referater%20generalforsamling/Referat-generalforsamling-2025-05-26-underskrevet.pdf)
