---
title: "Fyrrevænget - Granvænget"
description: "1-10"
date: "2025-07-18"
created: "2025-03-12"
---

-
-
-

https://maps.google.dk/?q=56.5554253,9.0138354

# Fyrrevænget - Granvænget

Afdeling 10

## Velkommen til afdeling 10 Fyrrevænget - Granvænget

Granvænget og Fyrrevænget er beliggende i den vestlige del af byen. Boligerne, der er opført i 1968 og består af 90 gårdhuse, er placeret ved et dejligt, stort naturområde, hvor Skive Å slynger sig tæt forbi de anlagte gange og kondistier, der omkranser bebyggelsen.
Boligerne har fået ny tagbelægning, efterisolering af loftet samt udskiftet vinduer og døre, ligesom hovedparten af boligerne har fået nyt køkken. Der er samtidig en del af boligerne der har fået nyt badeværelse og/eller ny skydedørsgarderobe. Hvor dette endnu ikke er foretaget kan dette ske mod en huslejeforhøjelse såfremt dette ønskes.

Hver bolig er tilsluttet fiberbredbånd, hvor der kan indgås aftale om tv, internet m.v. direkte med forskellige udbydere. Som en anden valgmulighed har boligerne eget antenneanlæg, hvor YouSee tilbyder deres tv-pakker og internet.

Der er ladestander til elbiler på P-pladsen ved Dalgas Allé 29-31.

Der er legeplads og multibane for børnene samt skole lige ved døren.

Boligforeningen råder over 3 gæsteværelser samt en gildesal andre steder i Skive by som alle kan lejes af alle beboere.

## Faciliteter

Husdyr

Ja

Det er tilladt at holde 1 hund eller 1 kat.

Vaskemaskine

Ja

Der er installeret vaskemaskine i boligen. Installation af tørretumbler er muligt.

Carport/garage

Ja

Der er 40 carporte som kan lejes via venteliste

TV

Ja

Er tilsluttet både YouSee samt fibernet

## Boliger i afdelingen

Familiebolig

4 værelses

Familiebolig

Familiebolig

5 værelses

Familiebolig

Boligtype

Værelser

Størrelse

Husleje

Indskud/dp

Plantegning

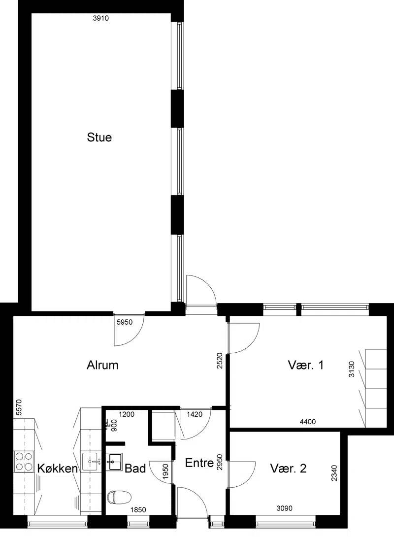
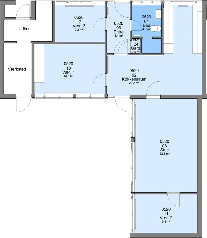
Familiebolig

4

114 m²

6299 kr.

19272 kr.

![](https://www.aabskive.dk/i/MOLIRIMEDIA/d1ade0da-36e5-4f01-b5f3-08dd5bf69135?width=800)






![](https://www.aabskive.dk/i/MOLIRIMEDIA/d1ade0da-36e5-4f01-b5f3-08dd5bf69135?width=800)

![](https://www.aabskive.dk/i/MOLIRIMEDIA/95db5df3-22f4-446f-bcd4-08dd5bf69135?width=800)

![](https://www.aabskive.dk/i/MOLIRIMEDIA/6b1be2ae-5fd7-4c66-bd37-08dd5bf69135?width=800)

![](https://www.aabskive.dk/i/MOLIRIMEDIA/d1ade0da-36e5-4f01-b5f3-08dd5bf69135?width=800)

![](https://www.aabskive.dk/i/MOLIRIMEDIA/95db5df3-22f4-446f-bcd4-08dd5bf69135?width=800)

![](https://www.aabskive.dk/i/MOLIRIMEDIA/6b1be2ae-5fd7-4c66-bd37-08dd5bf69135?width=800)

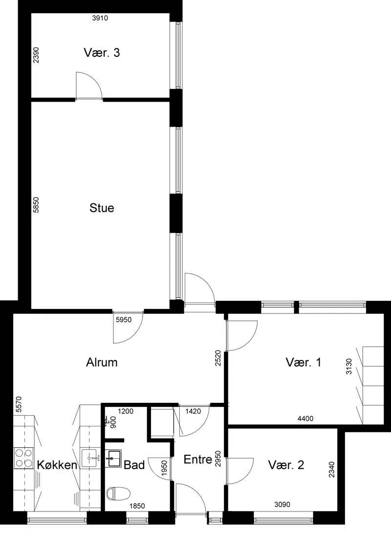
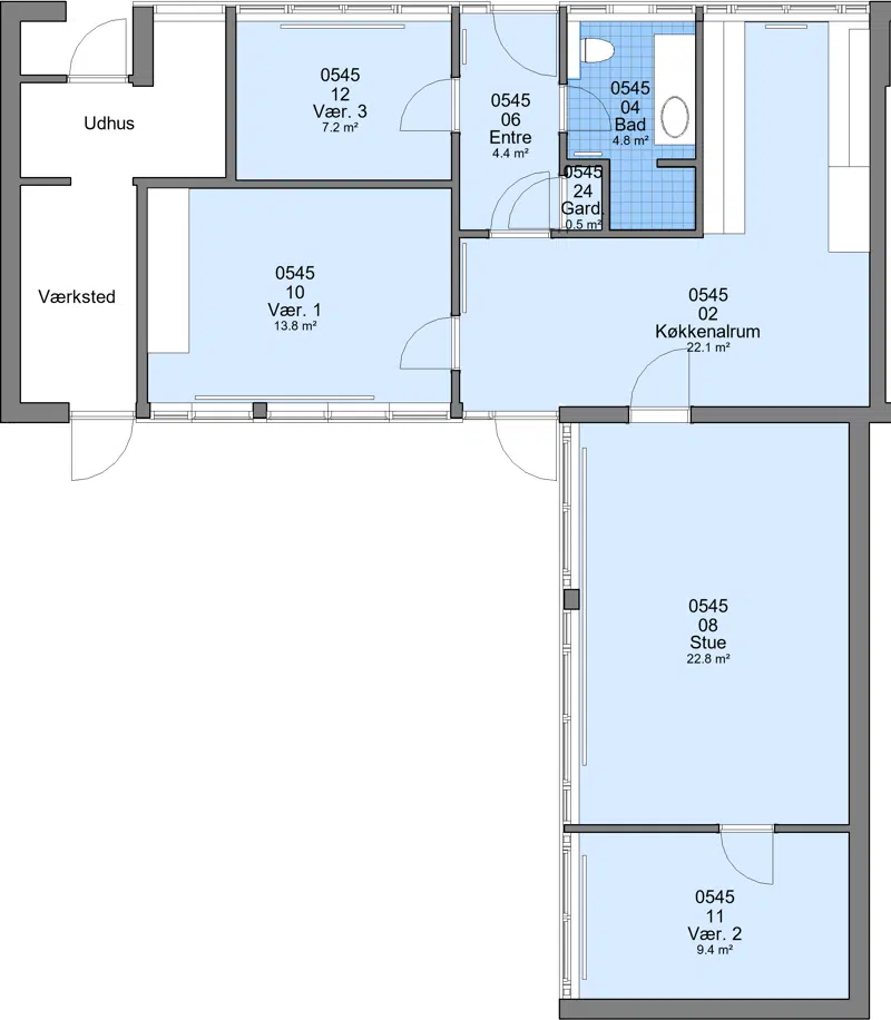
Familiebolig

4

114 m²

7122 kr.

21366 kr.

![](https://www.aabskive.dk/i/MOLIRIMEDIA/e049f84a-2f2d-4c50-b914-08dd5bf69135?width=800)






![](https://www.aabskive.dk/i/MOLIRIMEDIA/e049f84a-2f2d-4c50-b914-08dd5bf69135?width=800)

![](https://www.aabskive.dk/i/MOLIRIMEDIA/73ab68ec-85f4-4ac9-8fef-08ddb87da2d4?width=800)

![](https://www.aabskive.dk/i/MOLIRIMEDIA/06c8d6d1-bcb5-4a40-903b-08ddb87da2d4?width=800)

![](https://www.aabskive.dk/i/MOLIRIMEDIA/e049f84a-2f2d-4c50-b914-08dd5bf69135?width=800)

![](https://www.aabskive.dk/i/MOLIRIMEDIA/73ab68ec-85f4-4ac9-8fef-08ddb87da2d4?width=800)

![](https://www.aabskive.dk/i/MOLIRIMEDIA/06c8d6d1-bcb5-4a40-903b-08ddb87da2d4?width=800)

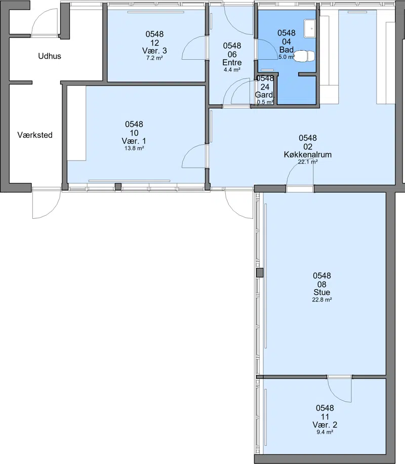
Familiebolig

5

114 m²

5712 kr.

17136 kr.

![](https://www.aabskive.dk/i/MOLIRIMEDIA/01e3fa5c-fd1d-419d-b69e-08dd5bf69135?width=800)






![](https://www.aabskive.dk/i/MOLIRIMEDIA/01e3fa5c-fd1d-419d-b69e-08dd5bf69135?width=800)

![](https://www.aabskive.dk/i/MOLIRIMEDIA/c1c4eab0-c648-472e-bd1f-08dd5bf69135?width=800)

![](https://www.aabskive.dk/i/MOLIRIMEDIA/4a04fa50-769f-4238-bce8-08dd5bf69135?width=800)

![](https://www.aabskive.dk/i/MOLIRIMEDIA/01e3fa5c-fd1d-419d-b69e-08dd5bf69135?width=800)

![](https://www.aabskive.dk/i/MOLIRIMEDIA/c1c4eab0-c648-472e-bd1f-08dd5bf69135?width=800)

![](https://www.aabskive.dk/i/MOLIRIMEDIA/4a04fa50-769f-4238-bce8-08dd5bf69135?width=800)

## Afdelingsdokumenter

Her finder du nyttig information om din afdeling, såsom husorden, vedligeholdelse af dit lejemål, referater m.m.

###

                                                Regnskaber

[Regnskab 2024 og budget 2026 afdeling 10.pdf](https://www.aabskive.dk/p/Files/Boligdata/Dokumenter/Afdelingsregnskaber/Regnskab-2024-og-budget-2026-afdeling-10.pdf)

###

                                                Vedligeholdelse

[Vedligeholdelsesreglement afd 10.pdf](https://www.aabskive.dk/p/Files/Boligdata/Dokumenter/Vedligeholdelse/Vedligeholdelsesreglement-afd-10.pdf)

###

                                                Husorden

[Ordensreglement afdeling 10.pdf](https://www.aabskive.dk/p/Files/Boligdata/Dokumenter/Husordener/Ordensreglement-afdeling-10.pdf)

## Selskabsdokumenter

Her finder du nyttig information om din selskab.

###

                                                Referater hovedbestyrelsen

[Referat hovedbestyrelsesmøde 2024 04 03.pdf](https://www.aabskive.dk/p/Files/Boligdata/Dokumenter/Sel.%201%20Arbejdernes%20AndelsBoligforening/Referater%20hovedbestyrelsen/Referat-hovedbestyrelsesm&#xF8;de-2024-04-03.pdf)
                                            [Referat hovedbestyrelsesmøde 2024 05 13.pdf](https://www.aabskive.dk/p/Files/Boligdata/Dokumenter/Sel.%201%20Arbejdernes%20AndelsBoligforening/Referater%20hovedbestyrelsen/Referat-hovedbestyrelsesm&#xF8;de-2024-05-13.pdf)
                                            [Referat hovedbestyrelsesmøde 2024 06 03.pdf](https://www.aabskive.dk/p/Files/Boligdata/Dokumenter/Sel.%201%20Arbejdernes%20AndelsBoligforening/Referater%20hovedbestyrelsen/Referat-hovedbestyrelsesm&#xF8;de-2024-06-03.pdf)
                                            [Referat hovedbestyrelsesmøde 2024 09 02.pdf](https://www.aabskive.dk/p/Files/Boligdata/Dokumenter/Sel.%201%20Arbejdernes%20AndelsBoligforening/Referater%20hovedbestyrelsen/Referat-hovedbestyrelsesm&#xF8;de-2024-09-02.pdf)
                                            [Referat hovedbestyrelsesmøde 2024 10 07.pdf](https://www.aabskive.dk/p/Files/Boligdata/Dokumenter/Sel.%201%20Arbejdernes%20AndelsBoligforening/Referater%20hovedbestyrelsen/Referat-hovedbestyrelsesm&#xF8;de-2024-10-07.pdf)
                                            [Referat hovedbestyrelsesmøde 2024 11 04.pdf](https://www.aabskive.dk/p/Files/Boligdata/Dokumenter/Sel.%201%20Arbejdernes%20AndelsBoligforening/Referater%20hovedbestyrelsen/Referat-hovedbestyrelsesm&#xF8;de-2024-11-04.pdf)
                                            [Referat hovedbestyrelsesmøde 2024 12 02.pdf](https://www.aabskive.dk/p/Files/Boligdata/Dokumenter/Sel.%201%20Arbejdernes%20AndelsBoligforening/Referater%20hovedbestyrelsen/Referat-hovedbestyrelsesm&#xF8;de-2024-12-02.pdf)
                                            [Referat hovedbestyrelsesmøde 2025 02 03.pdf](https://www.aabskive.dk/p/Files/Boligdata/Dokumenter/Sel.%201%20Arbejdernes%20AndelsBoligforening/Referater%20hovedbestyrelsen/Referat-hovedbestyrelsesm&#xF8;de-2025-02-03.pdf)
                                            [Referat hovedbestyrelsesmøde 2025 03 03.pdf](https://www.aabskive.dk/p/Files/Boligdata/Dokumenter/Sel.%201%20Arbejdernes%20AndelsBoligforening/Referater%20hovedbestyrelsen/Referat-hovedbestyrelsesm&#xF8;de-2025-03-03.pdf)
                                            [Referat hovedbestyrelsesmøde 2025 04 07.pdf](https://www.aabskive.dk/p/Files/Boligdata/Dokumenter/Sel.%201%20Arbejdernes%20AndelsBoligforening/Referater%20hovedbestyrelsen/Referat-hovedbestyrelsesm&#xF8;de-2025-04-07.pdf)
                                            [Referat hovedbestyrelsesmøde 2025 05 15.pdf](https://www.aabskive.dk/p/Files/Boligdata/Dokumenter/Sel.%201%20Arbejdernes%20AndelsBoligforening/Referater%20hovedbestyrelsen/Referat-hovedbestyrelsesm&#xF8;de-2025-05-15.pdf)
                                            [Referat hovedbestyrelsesmøde 2025 06 04.pdf](https://www.aabskive.dk/p/Files/Boligdata/Dokumenter/Sel.%201%20Arbejdernes%20AndelsBoligforening/Referater%20hovedbestyrelsen/Referat-hovedbestyrelsesm&#xF8;de-2025-06-04.pdf)
                                            [Referat hovedbestyrelsesmøde 2025 09 01.pdf](https://www.aabskive.dk/p/Files/Boligdata/Dokumenter/Sel.%201%20Arbejdernes%20AndelsBoligforening/Referater%20hovedbestyrelsen/Referat-hovedbestyrelsesm&#xF8;de-2025-09-01.pdf)
                                            [Referat hovedbestyrelsesmøde 2025 10 06.pdf](https://www.aabskive.dk/p/Files/Boligdata/Dokumenter/Sel.%201%20Arbejdernes%20AndelsBoligforening/Referater%20hovedbestyrelsen/Referat-hovedbestyrelsesm&#xF8;de-2025-10-06.pdf)
                                            [Referat hovedbestyrelsesmøde 2025 11 03.pdf](https://www.aabskive.dk/p/Files/Boligdata/Dokumenter/Sel.%201%20Arbejdernes%20AndelsBoligforening/Referater%20hovedbestyrelsen/Referat-hovedbestyrelsesm&#xF8;de-2025-11-03.pdf)
                                            [Referat hovedbestyrelsesmøde 2025 12 01.pdf](https://www.aabskive.dk/p/Files/Boligdata/Dokumenter/Sel.%201%20Arbejdernes%20AndelsBoligforening/Referater%20hovedbestyrelsen/Referat-hovedbestyrelsesm&#xF8;de-2025-12-01.pdf)
                                            [Referat hovedbestyrelsesmøde 2026 02 02.pdf](https://www.aabskive.dk/p/Files/Boligdata/Dokumenter/Sel.%201%20Arbejdernes%20AndelsBoligforening/Referater%20hovedbestyrelsen/Referat-hovedbestyrelsesm&#xF8;de-2026-02-02.pdf)
                                            [Referat hovedbestyrelsesmøde 2026 03 02.pdf](https://www.aabskive.dk/p/Files/Boligdata/Dokumenter/Sel.%201%20Arbejdernes%20AndelsBoligforening/Referater%20hovedbestyrelsen/Referat-hovedbestyrelsesm&#xF8;de-2026-03-02.pdf)
                                            [Referat hovedbestyrelsesmøde 2026 04 13.pdf](https://www.aabskive.dk/p/Files/Boligdata/Dokumenter/Sel.%201%20Arbejdernes%20AndelsBoligforening/Referater%20hovedbestyrelsen/Referat-hovedbestyrelsesm&#xF8;de-2026-04-13.pdf)
                                            [Referat hovedbestyrelsesmøde 2026 05 11.pdf](https://www.aabskive.dk/p/Files/Boligdata/Dokumenter/Sel.%201%20Arbejdernes%20AndelsBoligforening/Referater%20hovedbestyrelsen/Referat-hovedbestyrelsesm&#xF8;de-2026-05-11.pdf)

###

                                                Vedtægter

[Vedtægter for Arbejdernes Andelsboligforening.pdf](https://www.aabskive.dk/p/Files/Boligdata/Dokumenter/Sel.%201%20Arbejdernes%20AndelsBoligforening/Vedt&#xE6;gter/Vedt&#xE6;gter-for-Arbejdernes-Andelsboligforening.pdf)

###

                                                Regnskaber

[Hovedforening 2023.pdf](https://www.aabskive.dk/p/Files/Boligdata/Dokumenter/Sel.%201%20Arbejdernes%20AndelsBoligforening/Regnskaber/Hovedforening-2023.pdf)
                                            [Hovedforeningen 2024.pdf](https://www.aabskive.dk/p/Files/Boligdata/Dokumenter/Sel.%201%20Arbejdernes%20AndelsBoligforening/Regnskaber/Hovedforeningen-2024.pdf)

###

                                                Beretninger generalforsamling

[Beretning 2023.pdf](https://www.aabskive.dk/p/Files/Boligdata/Dokumenter/Sel.%201%20Arbejdernes%20AndelsBoligforening/Beretninger%20generalforsamling/Beretning-2023.pdf)
                                            [Beretning 2024 05 29.pdf](https://www.aabskive.dk/p/Files/Boligdata/Dokumenter/Sel.%201%20Arbejdernes%20AndelsBoligforening/Beretninger%20generalforsamling/Beretning-2024-05-29.pdf)
                                            [Beretning 2024.pdf](https://www.aabskive.dk/p/Files/Boligdata/Dokumenter/Sel.%201%20Arbejdernes%20AndelsBoligforening/Beretninger%20generalforsamling/Beretning-2024.pdf)
                                            [Beretning 2025 05 26.pdf](https://www.aabskive.dk/p/Files/Boligdata/Dokumenter/Sel.%201%20Arbejdernes%20AndelsBoligforening/Beretninger%20generalforsamling/Beretning-2025-05-26.pdf)

###

                                                Referater generalforsamling

[Referat generalforsamling 2023 05 31 underskrevet.pdf](https://www.aabskive.dk/p/Files/Boligdata/Dokumenter/Sel.%201%20Arbejdernes%20AndelsBoligforening/Referater%20generalforsamling/Referat-generalforsamling-2023-05-31-underskrevet.pdf)
                                            [Referat generalforsamling 2024 05 29 underskrevet.pdf](https://www.aabskive.dk/p/Files/Boligdata/Dokumenter/Sel.%201%20Arbejdernes%20AndelsBoligforening/Referater%20generalforsamling/Referat-generalforsamling-2024-05-29-underskrevet.pdf)
                                            [Referat generalforsamling 2025 05 26 underskrevet.pdf](https://www.aabskive.dk/p/Files/Boligdata/Dokumenter/Sel.%201%20Arbejdernes%20AndelsBoligforening/Referater%20generalforsamling/Referat-generalforsamling-2025-05-26-underskrevet.pdf)
