---
title: "Holstebrovej"
description: "1-4"
date: "2026-03-02"
created: "2025-07-07"
---

-
-
-
-

https://maps.google.dk/?q=56.56939,9.010218

# Holstebrovej

Afdeling 4

## Velkommen til afdeling 4 Holstebrovej

Holstebrovej er beliggende i den vestlige bymidte med gode forbindelser til byens ringveje, tæt på indkøb samt Skive centrum.

Bebyggelsen, der består af 2 boligblokke i 3 etager, er forbeholdt seniorer +50, der ikke har hjemmeboende børn; dette gælder dog ikke 3. sal. Bebyggelsen er opført i 1952 og er løbende blevet renoveret med nye badeværelser og nye køkkener i 1999. I 2015 har bebyggelsen fået nye vinduer, nyt murværk med isolering samt nye altaner, der både kan bruges som åben og lukket altan. En del af boligerne har ligeledes nye indvendige, hvide døre. Hvor dette endnu ikke er foretaget kan der mod en mindre huslejeforhøjelse monteres nye indvendige døre såfremt dette ønskes.

I kælderetagen findes foruden tørrerum og cykelrum eget pulterrum samt et moderne fællesvaskeri til brug for alle bebyggelsens beboere.
Der er desuden 24 garager, der udlejes efter særskilt venteliste.

Hver lejlighed er tilsluttet fiberbredbånd, hvorfor der kan indgås aftale om tv, internet m.v. direkte med forskellige udbydere.

6 gange årligt foretages udvendig vinduesvask af samtlige boliger, ligesom der løbende udføres trappevask.

Der er et fælleslokale til udlejning for afdelingens egne beboere samt gæsteværelse til overnattende gæster. Boligforeningen råder over yderligere 3 gæsteværelser andre steder i Skive by som alle kan lejes af alle beboere.

## Faciliteter

Husdyr

Nej

Det er ikke tilladt at holde husdyr i afdelingen.

Carport/garage

Ja

Der er 25 garager som kan lejes via venteliste.

TV

Ja

Er tilsluttet både YouSee samt fibernet

Vaskeri

Ja

Der er fællesvaskeri.

Fælleshus

Ja

Der er fælleshus og gæsteværelse

## Boliger i afdelingen

Familiebolig

1 værelses

Familiebolig

Seniorbolig 50+

3 værelses

Seniorbolig 50+

Seniorbolig 50+

4 værelses

Seniorbolig 50+

Boligtype

Værelser

Størrelse

Husleje

Indskud/dp

Plantegning

Familiebolig

1

33 m²

2910 kr.

8730 kr.

![](https://www.aabskive.dk/i/MOLIRIMEDIA/2645b171-50ca-4939-bb7e-08dd5bf69135?width=800)






![](https://www.aabskive.dk/i/MOLIRIMEDIA/2645b171-50ca-4939-bb7e-08dd5bf69135?width=800)

![](https://www.aabskive.dk/i/MOLIRIMEDIA/a806575c-cf59-465d-bcb2-08dd5bf69135?width=800)

![](https://www.aabskive.dk/i/MOLIRIMEDIA/2645b171-50ca-4939-bb7e-08dd5bf69135?width=800)

![](https://www.aabskive.dk/i/MOLIRIMEDIA/a806575c-cf59-465d-bcb2-08dd5bf69135?width=800)

Seniorbolig 50+

3

83 m²

5391 kr.

17823 kr.

![](https://www.aabskive.dk/i/MOLIRIMEDIA/b6780e85-a397-4f86-bb6e-08dd5bf69135?width=800)






![](https://www.aabskive.dk/i/MOLIRIMEDIA/b6780e85-a397-4f86-bb6e-08dd5bf69135?width=800)

![](https://www.aabskive.dk/i/MOLIRIMEDIA/6f96f0c2-78a7-4163-bca5-08dd5bf69135?width=800)

![](https://www.aabskive.dk/i/MOLIRIMEDIA/b6780e85-a397-4f86-bb6e-08dd5bf69135?width=800)

![](https://www.aabskive.dk/i/MOLIRIMEDIA/6f96f0c2-78a7-4163-bca5-08dd5bf69135?width=800)

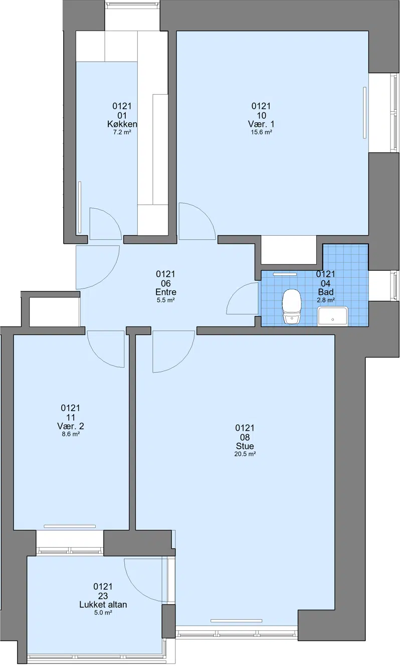
Seniorbolig 50+

3

78 m²

5692 kr.

17076 kr.

![](https://www.aabskive.dk/i/MOLIRIMEDIA/eed6d8f9-9b54-46a1-b628-08dd5bf69135?width=800)






![](https://www.aabskive.dk/i/MOLIRIMEDIA/eed6d8f9-9b54-46a1-b628-08dd5bf69135?width=800)

![](https://www.aabskive.dk/i/MOLIRIMEDIA/5f12c19b-8d13-4eb2-bd17-08dd5bf69135?width=800)

![](https://www.aabskive.dk/i/MOLIRIMEDIA/eed6d8f9-9b54-46a1-b628-08dd5bf69135?width=800)

![](https://www.aabskive.dk/i/MOLIRIMEDIA/5f12c19b-8d13-4eb2-bd17-08dd5bf69135?width=800)

Seniorbolig 50+

3

74 m²

5403 kr.

16305 kr.

![](https://www.aabskive.dk/i/MOLIRIMEDIA/cdde7f9f-176d-4737-bb4e-08dd5bf69135?width=800)






![](https://www.aabskive.dk/i/MOLIRIMEDIA/cdde7f9f-176d-4737-bb4e-08dd5bf69135?width=800)

![](https://www.aabskive.dk/i/MOLIRIMEDIA/3d568a04-76d4-4c2e-bd12-08dd5bf69135?width=800)

![](https://www.aabskive.dk/i/MOLIRIMEDIA/cdde7f9f-176d-4737-bb4e-08dd5bf69135?width=800)

![](https://www.aabskive.dk/i/MOLIRIMEDIA/3d568a04-76d4-4c2e-bd12-08dd5bf69135?width=800)

Seniorbolig 50+

3

81 m²

5037 kr.

15171 kr.

![](https://www.aabskive.dk/i/MOLIRIMEDIA/661bf001-131a-4c52-ba28-08dd5bf69135?width=800)






![](https://www.aabskive.dk/i/MOLIRIMEDIA/661bf001-131a-4c52-ba28-08dd5bf69135?width=800)

![](https://www.aabskive.dk/i/MOLIRIMEDIA/c455d22c-0563-4dcc-bcb3-08dd5bf69135?width=800)

![](https://www.aabskive.dk/i/MOLIRIMEDIA/661bf001-131a-4c52-ba28-08dd5bf69135?width=800)

![](https://www.aabskive.dk/i/MOLIRIMEDIA/c455d22c-0563-4dcc-bcb3-08dd5bf69135?width=800)

Seniorbolig 50+

4

99 m²

6565 kr.

19695 kr.

![](https://www.aabskive.dk/i/MOLIRIMEDIA/d3699603-3bc9-4a3e-ba88-08dd5bf69135?width=800)






![](https://www.aabskive.dk/i/MOLIRIMEDIA/d3699603-3bc9-4a3e-ba88-08dd5bf69135?width=800)

![](https://www.aabskive.dk/i/MOLIRIMEDIA/b97e67ab-0734-4caa-bd19-08dd5bf69135?width=800)

![](https://www.aabskive.dk/i/MOLIRIMEDIA/d3699603-3bc9-4a3e-ba88-08dd5bf69135?width=800)

![](https://www.aabskive.dk/i/MOLIRIMEDIA/b97e67ab-0734-4caa-bd19-08dd5bf69135?width=800)

## Afdelingsdokumenter

Her finder du nyttig information om din afdeling, såsom husorden, vedligeholdelse af dit lejemål, referater m.m.

###

                                                Regnskaber

[Regnskab 2024 og budget 2026 afdeling 04.pdf](https://www.aabskive.dk/p/Files/Boligdata/Dokumenter/Afdelingsregnskaber/Regnskab-2024-og-budget-2026-afdeling-04.pdf)

###

                                                Vedligeholdelse

[Vedligeholdelsesreglement afd 04.pdf](https://www.aabskive.dk/p/Files/Boligdata/Dokumenter/Vedligeholdelse/Vedligeholdelsesreglement-afd-04.pdf)

###

                                                Husorden

[Ordensreglement afdeling 4.pdf](https://www.aabskive.dk/p/Files/Boligdata/Dokumenter/Husordener/Ordensreglement-afdeling-04.pdf)

## Selskabsdokumenter

Her finder du nyttig information om din selskab.

###

                                                Referater hovedbestyrelsen

[Referat hovedbestyrelsesmøde 2024 04 03.pdf](https://www.aabskive.dk/p/Files/Boligdata/Dokumenter/Sel.%201%20Arbejdernes%20AndelsBoligforening/Referater%20hovedbestyrelsen/Referat-hovedbestyrelsesm&#xF8;de-2024-04-03.pdf)
                                            [Referat hovedbestyrelsesmøde 2024 05 13.pdf](https://www.aabskive.dk/p/Files/Boligdata/Dokumenter/Sel.%201%20Arbejdernes%20AndelsBoligforening/Referater%20hovedbestyrelsen/Referat-hovedbestyrelsesm&#xF8;de-2024-05-13.pdf)
                                            [Referat hovedbestyrelsesmøde 2024 06 03.pdf](https://www.aabskive.dk/p/Files/Boligdata/Dokumenter/Sel.%201%20Arbejdernes%20AndelsBoligforening/Referater%20hovedbestyrelsen/Referat-hovedbestyrelsesm&#xF8;de-2024-06-03.pdf)
                                            [Referat hovedbestyrelsesmøde 2024 09 02.pdf](https://www.aabskive.dk/p/Files/Boligdata/Dokumenter/Sel.%201%20Arbejdernes%20AndelsBoligforening/Referater%20hovedbestyrelsen/Referat-hovedbestyrelsesm&#xF8;de-2024-09-02.pdf)
                                            [Referat hovedbestyrelsesmøde 2024 10 07.pdf](https://www.aabskive.dk/p/Files/Boligdata/Dokumenter/Sel.%201%20Arbejdernes%20AndelsBoligforening/Referater%20hovedbestyrelsen/Referat-hovedbestyrelsesm&#xF8;de-2024-10-07.pdf)
                                            [Referat hovedbestyrelsesmøde 2024 11 04.pdf](https://www.aabskive.dk/p/Files/Boligdata/Dokumenter/Sel.%201%20Arbejdernes%20AndelsBoligforening/Referater%20hovedbestyrelsen/Referat-hovedbestyrelsesm&#xF8;de-2024-11-04.pdf)
                                            [Referat hovedbestyrelsesmøde 2024 12 02.pdf](https://www.aabskive.dk/p/Files/Boligdata/Dokumenter/Sel.%201%20Arbejdernes%20AndelsBoligforening/Referater%20hovedbestyrelsen/Referat-hovedbestyrelsesm&#xF8;de-2024-12-02.pdf)
                                            [Referat hovedbestyrelsesmøde 2025 02 03.pdf](https://www.aabskive.dk/p/Files/Boligdata/Dokumenter/Sel.%201%20Arbejdernes%20AndelsBoligforening/Referater%20hovedbestyrelsen/Referat-hovedbestyrelsesm&#xF8;de-2025-02-03.pdf)
                                            [Referat hovedbestyrelsesmøde 2025 03 03.pdf](https://www.aabskive.dk/p/Files/Boligdata/Dokumenter/Sel.%201%20Arbejdernes%20AndelsBoligforening/Referater%20hovedbestyrelsen/Referat-hovedbestyrelsesm&#xF8;de-2025-03-03.pdf)
                                            [Referat hovedbestyrelsesmøde 2025 04 07.pdf](https://www.aabskive.dk/p/Files/Boligdata/Dokumenter/Sel.%201%20Arbejdernes%20AndelsBoligforening/Referater%20hovedbestyrelsen/Referat-hovedbestyrelsesm&#xF8;de-2025-04-07.pdf)
                                            [Referat hovedbestyrelsesmøde 2025 05 15.pdf](https://www.aabskive.dk/p/Files/Boligdata/Dokumenter/Sel.%201%20Arbejdernes%20AndelsBoligforening/Referater%20hovedbestyrelsen/Referat-hovedbestyrelsesm&#xF8;de-2025-05-15.pdf)
                                            [Referat hovedbestyrelsesmøde 2025 06 04.pdf](https://www.aabskive.dk/p/Files/Boligdata/Dokumenter/Sel.%201%20Arbejdernes%20AndelsBoligforening/Referater%20hovedbestyrelsen/Referat-hovedbestyrelsesm&#xF8;de-2025-06-04.pdf)
                                            [Referat hovedbestyrelsesmøde 2025 09 01.pdf](https://www.aabskive.dk/p/Files/Boligdata/Dokumenter/Sel.%201%20Arbejdernes%20AndelsBoligforening/Referater%20hovedbestyrelsen/Referat-hovedbestyrelsesm&#xF8;de-2025-09-01.pdf)
                                            [Referat hovedbestyrelsesmøde 2025 10 06.pdf](https://www.aabskive.dk/p/Files/Boligdata/Dokumenter/Sel.%201%20Arbejdernes%20AndelsBoligforening/Referater%20hovedbestyrelsen/Referat-hovedbestyrelsesm&#xF8;de-2025-10-06.pdf)
                                            [Referat hovedbestyrelsesmøde 2025 11 03.pdf](https://www.aabskive.dk/p/Files/Boligdata/Dokumenter/Sel.%201%20Arbejdernes%20AndelsBoligforening/Referater%20hovedbestyrelsen/Referat-hovedbestyrelsesm&#xF8;de-2025-11-03.pdf)
                                            [Referat hovedbestyrelsesmøde 2025 12 01.pdf](https://www.aabskive.dk/p/Files/Boligdata/Dokumenter/Sel.%201%20Arbejdernes%20AndelsBoligforening/Referater%20hovedbestyrelsen/Referat-hovedbestyrelsesm&#xF8;de-2025-12-01.pdf)
                                            [Referat hovedbestyrelsesmøde 2026 02 02.pdf](https://www.aabskive.dk/p/Files/Boligdata/Dokumenter/Sel.%201%20Arbejdernes%20AndelsBoligforening/Referater%20hovedbestyrelsen/Referat-hovedbestyrelsesm&#xF8;de-2026-02-02.pdf)
                                            [Referat hovedbestyrelsesmøde 2026 03 02.pdf](https://www.aabskive.dk/p/Files/Boligdata/Dokumenter/Sel.%201%20Arbejdernes%20AndelsBoligforening/Referater%20hovedbestyrelsen/Referat-hovedbestyrelsesm&#xF8;de-2026-03-02.pdf)
                                            [Referat hovedbestyrelsesmøde 2026 04 13.pdf](https://www.aabskive.dk/p/Files/Boligdata/Dokumenter/Sel.%201%20Arbejdernes%20AndelsBoligforening/Referater%20hovedbestyrelsen/Referat-hovedbestyrelsesm&#xF8;de-2026-04-13.pdf)
                                            [Referat hovedbestyrelsesmøde 2026 05 11.pdf](https://www.aabskive.dk/p/Files/Boligdata/Dokumenter/Sel.%201%20Arbejdernes%20AndelsBoligforening/Referater%20hovedbestyrelsen/Referat-hovedbestyrelsesm&#xF8;de-2026-05-11.pdf)

###

                                                Vedtægter

[Vedtægter for Arbejdernes Andelsboligforening.pdf](https://www.aabskive.dk/p/Files/Boligdata/Dokumenter/Sel.%201%20Arbejdernes%20AndelsBoligforening/Vedt&#xE6;gter/Vedt&#xE6;gter-for-Arbejdernes-Andelsboligforening.pdf)

###

                                                Regnskaber

[Hovedforening 2023.pdf](https://www.aabskive.dk/p/Files/Boligdata/Dokumenter/Sel.%201%20Arbejdernes%20AndelsBoligforening/Regnskaber/Hovedforening-2023.pdf)
                                            [Hovedforeningen 2024.pdf](https://www.aabskive.dk/p/Files/Boligdata/Dokumenter/Sel.%201%20Arbejdernes%20AndelsBoligforening/Regnskaber/Hovedforeningen-2024.pdf)

###

                                                Beretninger generalforsamling

[Beretning 2023.pdf](https://www.aabskive.dk/p/Files/Boligdata/Dokumenter/Sel.%201%20Arbejdernes%20AndelsBoligforening/Beretninger%20generalforsamling/Beretning-2023.pdf)
                                            [Beretning 2024 05 29.pdf](https://www.aabskive.dk/p/Files/Boligdata/Dokumenter/Sel.%201%20Arbejdernes%20AndelsBoligforening/Beretninger%20generalforsamling/Beretning-2024-05-29.pdf)
                                            [Beretning 2024.pdf](https://www.aabskive.dk/p/Files/Boligdata/Dokumenter/Sel.%201%20Arbejdernes%20AndelsBoligforening/Beretninger%20generalforsamling/Beretning-2024.pdf)
                                            [Beretning 2025 05 26.pdf](https://www.aabskive.dk/p/Files/Boligdata/Dokumenter/Sel.%201%20Arbejdernes%20AndelsBoligforening/Beretninger%20generalforsamling/Beretning-2025-05-26.pdf)

###

                                                Referater generalforsamling

[Referat generalforsamling 2023 05 31 underskrevet.pdf](https://www.aabskive.dk/p/Files/Boligdata/Dokumenter/Sel.%201%20Arbejdernes%20AndelsBoligforening/Referater%20generalforsamling/Referat-generalforsamling-2023-05-31-underskrevet.pdf)
                                            [Referat generalforsamling 2024 05 29 underskrevet.pdf](https://www.aabskive.dk/p/Files/Boligdata/Dokumenter/Sel.%201%20Arbejdernes%20AndelsBoligforening/Referater%20generalforsamling/Referat-generalforsamling-2024-05-29-underskrevet.pdf)
                                            [Referat generalforsamling 2025 05 26 underskrevet.pdf](https://www.aabskive.dk/p/Files/Boligdata/Dokumenter/Sel.%201%20Arbejdernes%20AndelsBoligforening/Referater%20generalforsamling/Referat-generalforsamling-2025-05-26-underskrevet.pdf)
