---
title: "Kirke Allé og Egerisvej"
description: "1-7"
date: "2026-05-05"
created: "2025-07-07"
---

-
-
-
-

https://maps.google.dk/?q=56.5527183,9.0309572

# Kirke Allé og Egerisvej

Afdeling 7

## Velkommen til afdeling 7 Kirke Allé og Egerisvej

Bebyggelsen er beliggende i den sydvestlige bydel med gode forbindelser til byens ringveje, tæt på centrum og indkløb. Bebyggelsen, der består af 14 boligblokke i 3 eller 4 etager, er opført i 1960'erne og er løbende renoveret med ny stor åben altan, nyt tag, nye vinduer og døre, ligesom adskillige lejligheder har fået nye køkkener og/eller badeværelser, nye gulve, nye indvendige døre samt garderobeskabe.
Der er opført særskilte bygninger, hvori der er indrettet fællesvaskeri, fælleshus samt garageanlæg.

Der er fælles cykelrum, knallertrum og barnevognsrum. Til hver lejlighed hører eget pulterrum.
Til hovedparten af stuelejligheder er der have - ellers er der mulighed for anlæggelse af dette.

Hver bolig er tilsluttet fiberbredbånd, hvor der kan indgås aftale om tv, internet m.v. direkte med forskellige udbydere. Som en anden valgmulighed har boligerne eget antenneanlæg, hvor YouSee tilbyder deres tv-pakker og internet.
6 gange årligt foretages udvendig vinduesvask af samtlige boliger, ligesom der løbende udføres trappevask.

Alle boliger har dørtelefon.
Der er ladestander til elbiler på P-pladsen ved Kirke Allé 46-48.

Der er store grønne områder med borde og bænke samt gode legepladser og multibane.

Boligforeningen råder over 3 gæsteværelser andre steder i Skive by som kan lejes af alle beboere.

## Faciliteter

Husdyr

Ja

Det er tilladt at holde 1 hund eller 1 kat.

Opvaskemaskine

Ja

Installation af opvaskemaskine er muligt. Kontakt AAB for mere information.

Vaskemaskine

Ja

Installation af vaskemaskine og tørretumbler er muligt. Kontakt AAB for mere information.

Carport/garage

Ja

Der er 66 garager som kan lejes via venteliste.

TV

Ja

Er tilsluttet både YouSee samt fibernet

Vaskeri

Ja

Der er 2 fællesvaskerier

Fælleshus

Ja

Der er fælleshus

Dørtelefoni

Ja

Der er dørtelefoni i afdelingen - hoveddøren er låst i aften og nattetimerne.

Ladestander

Ja

Der er 2 ladestandere for enden af blokken på Gl. gårdsvej,

                        Se flere

## Boliger i afdelingen

Familiebolig

1 værelses

Familiebolig

Familiebolig

2 værelses

Familiebolig

Ældrebolig

2 værelses

Ældrebolig

Seniorbolig 50+

2 værelses

Seniorbolig 50+

Familiebolig

3 værelses

Familiebolig

Familiebolig

4 værelses

Familiebolig

Boligtype

Værelser

Størrelse

Husleje

Indskud/dp

Plantegning

Aldre/Plejebolig

2

61 m²

4383 kr.

15000 kr.

![](https://www.aabskive.dk/i/MOLIRIMEDIA/557d3aa5-046c-47af-b6ad-08dd5bf69135?width=800)






![](https://www.aabskive.dk/i/MOLIRIMEDIA/557d3aa5-046c-47af-b6ad-08dd5bf69135?width=800)

![](https://www.aabskive.dk/i/MOLIRIMEDIA/7482fddb-28ca-4bad-91cb-08ddb87da2d4?width=800)

![](https://www.aabskive.dk/i/MOLIRIMEDIA/557d3aa5-046c-47af-b6ad-08dd5bf69135?width=800)

![](https://www.aabskive.dk/i/MOLIRIMEDIA/7482fddb-28ca-4bad-91cb-08ddb87da2d4?width=800)

Familiebolig

1

42 m²

3530 kr.

10590 kr.

![](https://www.aabskive.dk/i/MOLIRIMEDIA/f59749ec-12ff-4c16-bbed-08dd5bf69135?width=800)

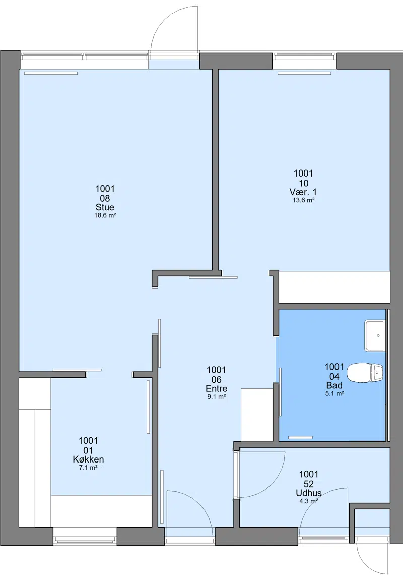
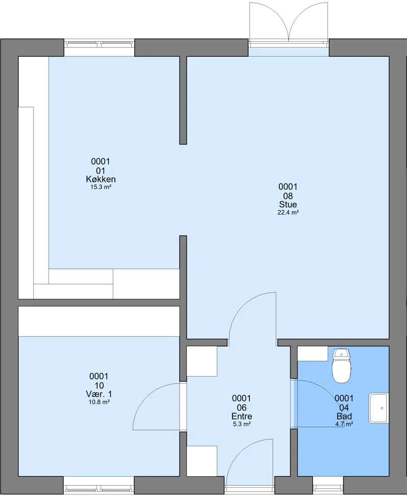
Familiebolig

2

68 m²

5213 kr.

15723 kr.

![](https://www.aabskive.dk/i/MOLIRIMEDIA/1e34dd27-28e1-4176-b9b4-08dd5bf69135?width=800)

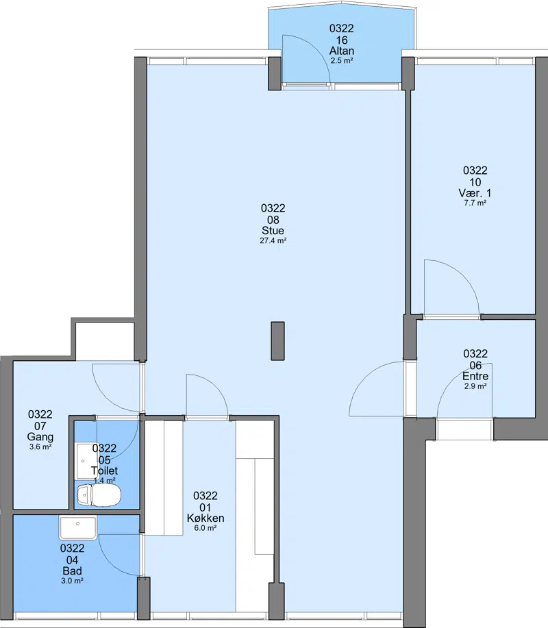
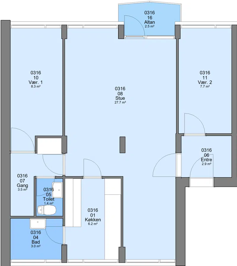
Familiebolig

3

105 m²

8234 kr.

43883 kr.

![](https://www.aabskive.dk/i/MOLIRIMEDIA/cbf71db9-f884-4cc2-b7ae-08dd5bf69135?width=800)






![](https://www.aabskive.dk/i/MOLIRIMEDIA/cbf71db9-f884-4cc2-b7ae-08dd5bf69135?width=800)

![](https://www.aabskive.dk/i/MOLIRIMEDIA/f386e726-4f9e-455f-bbe4-08dd5bf69135?width=800)

![](https://www.aabskive.dk/i/MOLIRIMEDIA/cbf71db9-f884-4cc2-b7ae-08dd5bf69135?width=800)

![](https://www.aabskive.dk/i/MOLIRIMEDIA/f386e726-4f9e-455f-bbe4-08dd5bf69135?width=800)

Familiebolig

3

87 m²

6157 kr.

18471 kr.

![](https://www.aabskive.dk/i/MOLIRIMEDIA/8d2fd469-7762-4d83-b9f3-08dd5bf69135?width=800)

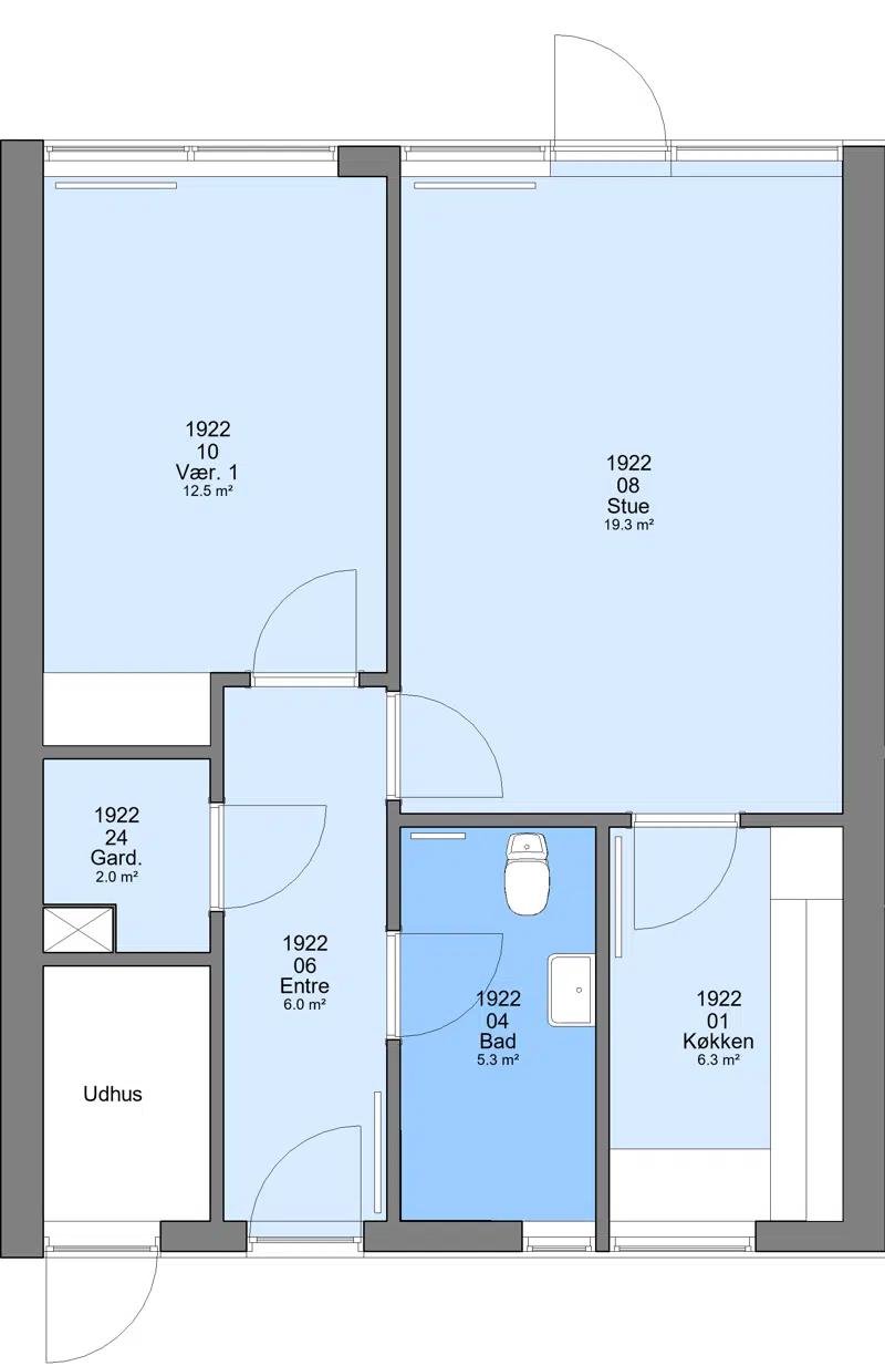
Familiebolig

3

77 m²

4237 kr.

17359 kr.

![](https://www.aabskive.dk/i/MOLIRIMEDIA/1e246a2a-ba03-4b5f-b688-08dd5bf69135?width=800)

Familiebolig

3

77 m²

5914 kr.

17676 kr.

![](https://www.aabskive.dk/i/MOLIRIMEDIA/dd1e8c44-2ece-4ac9-bb53-08dd5bf69135?width=800)

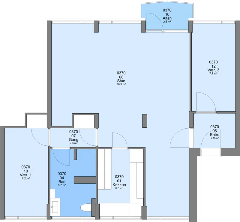
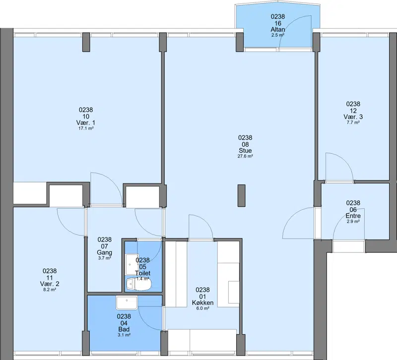
Familiebolig

3

86 m²

6664 kr.

19992 kr.

![](https://www.aabskive.dk/i/MOLIRIMEDIA/797c58d1-66de-4ec6-b800-08dd5bf69135?width=800)

Familiebolig

3

61 m²

4524 kr.

13572 kr.

![](https://www.aabskive.dk/i/MOLIRIMEDIA/64b690cc-bd46-4d6c-bb03-08dd5bf69135?width=800)

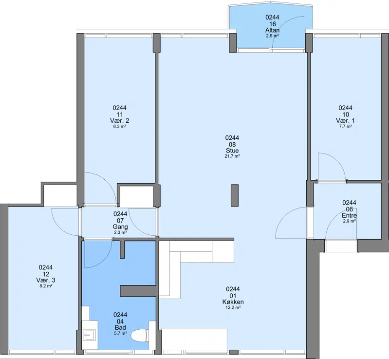
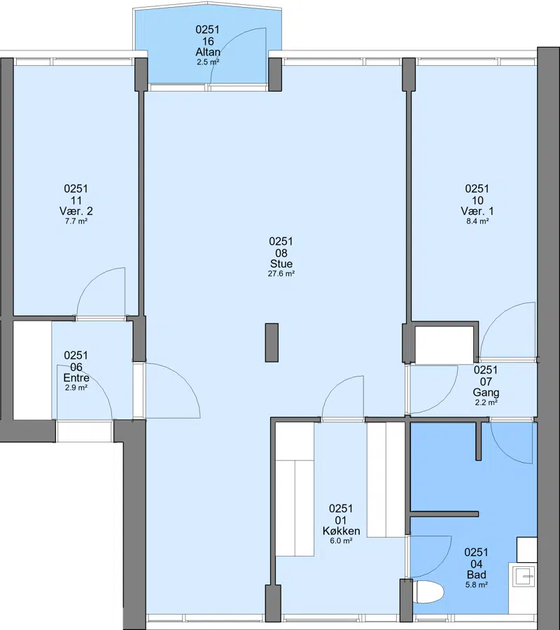
Familiebolig

4

87 m²

5657 kr.

17088 kr.

![](https://www.aabskive.dk/i/MOLIRIMEDIA/c068b7fb-8e4a-4f5e-b73e-08dd5bf69135?width=800)

Familiebolig

4

97 m²

6697 kr.

20091 kr.

![](https://www.aabskive.dk/i/MOLIRIMEDIA/eeda776a-60d4-43e8-b7b3-08dd5bf69135?width=800)

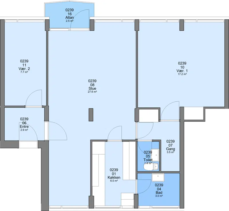
Familiebolig

4

86 m²

5897 kr.

17691 kr.

![](https://www.aabskive.dk/i/MOLIRIMEDIA/ffe853d6-beb4-455e-bb83-08dd5bf69135?width=800)

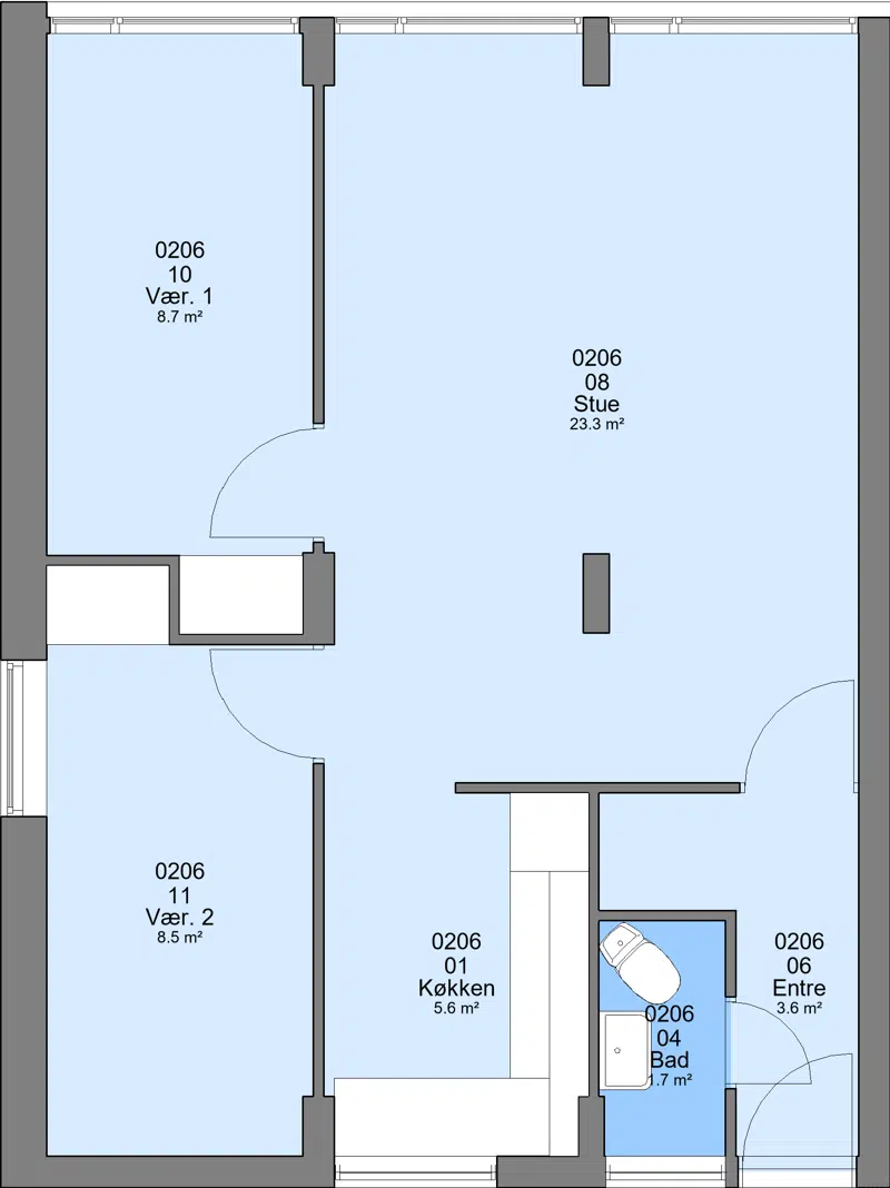
Familiebolig

4

96 m²

5571 kr.

16713 kr.

![](https://www.aabskive.dk/i/MOLIRIMEDIA/ade474ed-35a1-4082-bb26-08dd5bf69135?width=800)

Seniorbolig 50+

2

64 m²

4386 kr.

13269 kr.

![](https://www.aabskive.dk/i/MOLIRIMEDIA/467cac5a-6f50-4204-ba60-08dd5bf69135?width=800)






![](https://www.aabskive.dk/i/MOLIRIMEDIA/467cac5a-6f50-4204-ba60-08dd5bf69135?width=800)

![](https://www.aabskive.dk/i/MOLIRIMEDIA/65d96370-324c-4dc1-bc8e-08dd5bf69135?width=800)

![](https://www.aabskive.dk/i/MOLIRIMEDIA/467cac5a-6f50-4204-ba60-08dd5bf69135?width=800)

![](https://www.aabskive.dk/i/MOLIRIMEDIA/65d96370-324c-4dc1-bc8e-08dd5bf69135?width=800)

Seniorbolig 50+

2

70 m²

5503 kr.

16509 kr.

![](https://www.aabskive.dk/i/MOLIRIMEDIA/a8d59f8f-9fc9-4bf1-b933-08dd5bf69135?width=800)






![](https://www.aabskive.dk/i/MOLIRIMEDIA/a8d59f8f-9fc9-4bf1-b933-08dd5bf69135?width=800)

![](https://www.aabskive.dk/i/MOLIRIMEDIA/5b3fec10-81b4-490b-bd0d-08dd5bf69135?width=800)

![](https://www.aabskive.dk/i/MOLIRIMEDIA/a8d59f8f-9fc9-4bf1-b933-08dd5bf69135?width=800)

![](https://www.aabskive.dk/i/MOLIRIMEDIA/5b3fec10-81b4-490b-bd0d-08dd5bf69135?width=800)

## Afdelingsdokumenter

Her finder du nyttig information om din afdeling, såsom husorden, vedligeholdelse af dit lejemål, referater m.m.

###

                                                Regnskaber

[Regnskab 2024 og budget 2026 afdeling 07.pdf](https://www.aabskive.dk/p/Files/Boligdata/Dokumenter/Afdelingsregnskaber/Regnskab-2024-og-budget-2026-afdeling-07.pdf)

###

                                                Vedligeholdelse

[Vedligeholdelsesreglement afd 07.pdf](https://www.aabskive.dk/p/Files/Boligdata/Dokumenter/Vedligeholdelse/Vedligeholdelsesreglement-afd-07.pdf)

###

                                                Husorden

[Ordensreglement afdeling 07.pdf](https://www.aabskive.dk/p/Files/Boligdata/Dokumenter/Husordener/Ordensreglement-afdeling-07.pdf)

## Selskabsdokumenter

Her finder du nyttig information om din selskab.

###

                                                Referater hovedbestyrelsen

[Referat hovedbestyrelsesmøde 2024 04 03.pdf](https://www.aabskive.dk/p/Files/Boligdata/Dokumenter/Sel.%201%20Arbejdernes%20AndelsBoligforening/Referater%20hovedbestyrelsen/Referat-hovedbestyrelsesm&#xF8;de-2024-04-03.pdf)
                                            [Referat hovedbestyrelsesmøde 2024 05 13.pdf](https://www.aabskive.dk/p/Files/Boligdata/Dokumenter/Sel.%201%20Arbejdernes%20AndelsBoligforening/Referater%20hovedbestyrelsen/Referat-hovedbestyrelsesm&#xF8;de-2024-05-13.pdf)
                                            [Referat hovedbestyrelsesmøde 2024 06 03.pdf](https://www.aabskive.dk/p/Files/Boligdata/Dokumenter/Sel.%201%20Arbejdernes%20AndelsBoligforening/Referater%20hovedbestyrelsen/Referat-hovedbestyrelsesm&#xF8;de-2024-06-03.pdf)
                                            [Referat hovedbestyrelsesmøde 2024 09 02.pdf](https://www.aabskive.dk/p/Files/Boligdata/Dokumenter/Sel.%201%20Arbejdernes%20AndelsBoligforening/Referater%20hovedbestyrelsen/Referat-hovedbestyrelsesm&#xF8;de-2024-09-02.pdf)
                                            [Referat hovedbestyrelsesmøde 2024 10 07.pdf](https://www.aabskive.dk/p/Files/Boligdata/Dokumenter/Sel.%201%20Arbejdernes%20AndelsBoligforening/Referater%20hovedbestyrelsen/Referat-hovedbestyrelsesm&#xF8;de-2024-10-07.pdf)
                                            [Referat hovedbestyrelsesmøde 2024 11 04.pdf](https://www.aabskive.dk/p/Files/Boligdata/Dokumenter/Sel.%201%20Arbejdernes%20AndelsBoligforening/Referater%20hovedbestyrelsen/Referat-hovedbestyrelsesm&#xF8;de-2024-11-04.pdf)
                                            [Referat hovedbestyrelsesmøde 2024 12 02.pdf](https://www.aabskive.dk/p/Files/Boligdata/Dokumenter/Sel.%201%20Arbejdernes%20AndelsBoligforening/Referater%20hovedbestyrelsen/Referat-hovedbestyrelsesm&#xF8;de-2024-12-02.pdf)
                                            [Referat hovedbestyrelsesmøde 2025 02 03.pdf](https://www.aabskive.dk/p/Files/Boligdata/Dokumenter/Sel.%201%20Arbejdernes%20AndelsBoligforening/Referater%20hovedbestyrelsen/Referat-hovedbestyrelsesm&#xF8;de-2025-02-03.pdf)
                                            [Referat hovedbestyrelsesmøde 2025 03 03.pdf](https://www.aabskive.dk/p/Files/Boligdata/Dokumenter/Sel.%201%20Arbejdernes%20AndelsBoligforening/Referater%20hovedbestyrelsen/Referat-hovedbestyrelsesm&#xF8;de-2025-03-03.pdf)
                                            [Referat hovedbestyrelsesmøde 2025 04 07.pdf](https://www.aabskive.dk/p/Files/Boligdata/Dokumenter/Sel.%201%20Arbejdernes%20AndelsBoligforening/Referater%20hovedbestyrelsen/Referat-hovedbestyrelsesm&#xF8;de-2025-04-07.pdf)
                                            [Referat hovedbestyrelsesmøde 2025 05 15.pdf](https://www.aabskive.dk/p/Files/Boligdata/Dokumenter/Sel.%201%20Arbejdernes%20AndelsBoligforening/Referater%20hovedbestyrelsen/Referat-hovedbestyrelsesm&#xF8;de-2025-05-15.pdf)
                                            [Referat hovedbestyrelsesmøde 2025 06 04.pdf](https://www.aabskive.dk/p/Files/Boligdata/Dokumenter/Sel.%201%20Arbejdernes%20AndelsBoligforening/Referater%20hovedbestyrelsen/Referat-hovedbestyrelsesm&#xF8;de-2025-06-04.pdf)
                                            [Referat hovedbestyrelsesmøde 2025 09 01.pdf](https://www.aabskive.dk/p/Files/Boligdata/Dokumenter/Sel.%201%20Arbejdernes%20AndelsBoligforening/Referater%20hovedbestyrelsen/Referat-hovedbestyrelsesm&#xF8;de-2025-09-01.pdf)
                                            [Referat hovedbestyrelsesmøde 2025 10 06.pdf](https://www.aabskive.dk/p/Files/Boligdata/Dokumenter/Sel.%201%20Arbejdernes%20AndelsBoligforening/Referater%20hovedbestyrelsen/Referat-hovedbestyrelsesm&#xF8;de-2025-10-06.pdf)
                                            [Referat hovedbestyrelsesmøde 2025 11 03.pdf](https://www.aabskive.dk/p/Files/Boligdata/Dokumenter/Sel.%201%20Arbejdernes%20AndelsBoligforening/Referater%20hovedbestyrelsen/Referat-hovedbestyrelsesm&#xF8;de-2025-11-03.pdf)
                                            [Referat hovedbestyrelsesmøde 2025 12 01.pdf](https://www.aabskive.dk/p/Files/Boligdata/Dokumenter/Sel.%201%20Arbejdernes%20AndelsBoligforening/Referater%20hovedbestyrelsen/Referat-hovedbestyrelsesm&#xF8;de-2025-12-01.pdf)
                                            [Referat hovedbestyrelsesmøde 2026 02 02.pdf](https://www.aabskive.dk/p/Files/Boligdata/Dokumenter/Sel.%201%20Arbejdernes%20AndelsBoligforening/Referater%20hovedbestyrelsen/Referat-hovedbestyrelsesm&#xF8;de-2026-02-02.pdf)
                                            [Referat hovedbestyrelsesmøde 2026 03 02.pdf](https://www.aabskive.dk/p/Files/Boligdata/Dokumenter/Sel.%201%20Arbejdernes%20AndelsBoligforening/Referater%20hovedbestyrelsen/Referat-hovedbestyrelsesm&#xF8;de-2026-03-02.pdf)
                                            [Referat hovedbestyrelsesmøde 2026 04 13.pdf](https://www.aabskive.dk/p/Files/Boligdata/Dokumenter/Sel.%201%20Arbejdernes%20AndelsBoligforening/Referater%20hovedbestyrelsen/Referat-hovedbestyrelsesm&#xF8;de-2026-04-13.pdf)
                                            [Referat hovedbestyrelsesmøde 2026 05 11.pdf](https://www.aabskive.dk/p/Files/Boligdata/Dokumenter/Sel.%201%20Arbejdernes%20AndelsBoligforening/Referater%20hovedbestyrelsen/Referat-hovedbestyrelsesm&#xF8;de-2026-05-11.pdf)

###

                                                Vedtægter

[Vedtægter for Arbejdernes Andelsboligforening.pdf](https://www.aabskive.dk/p/Files/Boligdata/Dokumenter/Sel.%201%20Arbejdernes%20AndelsBoligforening/Vedt&#xE6;gter/Vedt&#xE6;gter-for-Arbejdernes-Andelsboligforening.pdf)

###

                                                Regnskaber

[Hovedforening 2023.pdf](https://www.aabskive.dk/p/Files/Boligdata/Dokumenter/Sel.%201%20Arbejdernes%20AndelsBoligforening/Regnskaber/Hovedforening-2023.pdf)
                                            [Hovedforeningen 2024.pdf](https://www.aabskive.dk/p/Files/Boligdata/Dokumenter/Sel.%201%20Arbejdernes%20AndelsBoligforening/Regnskaber/Hovedforeningen-2024.pdf)

###

                                                Beretninger generalforsamling

[Beretning 2023.pdf](https://www.aabskive.dk/p/Files/Boligdata/Dokumenter/Sel.%201%20Arbejdernes%20AndelsBoligforening/Beretninger%20generalforsamling/Beretning-2023.pdf)
                                            [Beretning 2024 05 29.pdf](https://www.aabskive.dk/p/Files/Boligdata/Dokumenter/Sel.%201%20Arbejdernes%20AndelsBoligforening/Beretninger%20generalforsamling/Beretning-2024-05-29.pdf)
                                            [Beretning 2024.pdf](https://www.aabskive.dk/p/Files/Boligdata/Dokumenter/Sel.%201%20Arbejdernes%20AndelsBoligforening/Beretninger%20generalforsamling/Beretning-2024.pdf)
                                            [Beretning 2025 05 26.pdf](https://www.aabskive.dk/p/Files/Boligdata/Dokumenter/Sel.%201%20Arbejdernes%20AndelsBoligforening/Beretninger%20generalforsamling/Beretning-2025-05-26.pdf)

###

                                                Referater generalforsamling

[Referat generalforsamling 2023 05 31 underskrevet.pdf](https://www.aabskive.dk/p/Files/Boligdata/Dokumenter/Sel.%201%20Arbejdernes%20AndelsBoligforening/Referater%20generalforsamling/Referat-generalforsamling-2023-05-31-underskrevet.pdf)
                                            [Referat generalforsamling 2024 05 29 underskrevet.pdf](https://www.aabskive.dk/p/Files/Boligdata/Dokumenter/Sel.%201%20Arbejdernes%20AndelsBoligforening/Referater%20generalforsamling/Referat-generalforsamling-2024-05-29-underskrevet.pdf)
                                            [Referat generalforsamling 2025 05 26 underskrevet.pdf](https://www.aabskive.dk/p/Files/Boligdata/Dokumenter/Sel.%201%20Arbejdernes%20AndelsBoligforening/Referater%20generalforsamling/Referat-generalforsamling-2025-05-26-underskrevet.pdf)
