---
title: "Mølletoften"
description: "1-23"
date: "2025-07-18"
created: "2025-07-07"
---

-
-
-

https://maps.google.dk/?q=56.5585037,9.0346853

# Mølletoften

Afdeling 23

## Velkommen til afdeling 23 Mølletoften

Centralt beliggende boligområde tæt på centrum og dagligvarebutikker, og med busforbindelse lige uden for døren.

Mølletoften har hyggelige udeområder med legeplads samt borde og bænke.

Boligområdet består af et etagebyggeri (gammelt kornmagasin) med 9 boliger samt rækkehuse med i alt 16 boliger. Der er gode parkeringsforhold, cykelskur samt kælderrum/skur til samtlige boliger.
Der er gildesal i kælderen i det gamle kornmagasin - med plads til max 40 personer.

Hver bolig er tilsluttet fiberbredbånd, hvor der kan indgås aftale om tv, internet m.v. direkte med forskellige udbydere. Som en anden valgmulighed har boligerne eget antenneanlæg, hvor YouSee tilbyder deres tv-pakker og internet.

I etagebebyggelsen udføres der løbende trappevask og vinduesvask i trappeopgangen.

Boligforeningen råder over 3 gæsteværelser andre steder i Skive by som kan lejes af alle beboere.

## Faciliteter

Husdyr

Ja

Det er tilladt at holde én hund eller én kat.

Vaskemaskine

Ja

Installation af vaskemaskine og tørretumbler er muligt i rækkehusene. Kontakt AAB for mere information.

Carport/garage

Ja

Til flere af boligerne hører carport.

TV

Ja

Er tilsluttet både YouSee samt fibernet

Vaskeri

Ja

Der er fællesvaskeri.

Fælleshus

Ja

Der er fælleshus

## Boliger i afdelingen

Ungdomsbolig

1 værelses

Ungdomsbolig

Familiebolig

2 værelses

Familiebolig

Familiebolig

3 værelses

Familiebolig

Familiebolig

4 værelses

Familiebolig

Boligtype

Værelser

Størrelse

Husleje

Indskud/dp

Plantegning

Familiebolig

2

78 m²

6000 kr.

18000 kr.

![](https://www.aabskive.dk/i/MOLIRIMEDIA/25106142-f5cc-489b-b81b-08dd5bf69135?width=800)






![](https://www.aabskive.dk/i/MOLIRIMEDIA/25106142-f5cc-489b-b81b-08dd5bf69135?width=800)

![](https://www.aabskive.dk/i/MOLIRIMEDIA/76991359-5dcb-4009-bd44-08dd5bf69135?width=800)

![](https://www.aabskive.dk/i/MOLIRIMEDIA/25106142-f5cc-489b-b81b-08dd5bf69135?width=800)

![](https://www.aabskive.dk/i/MOLIRIMEDIA/76991359-5dcb-4009-bd44-08dd5bf69135?width=800)

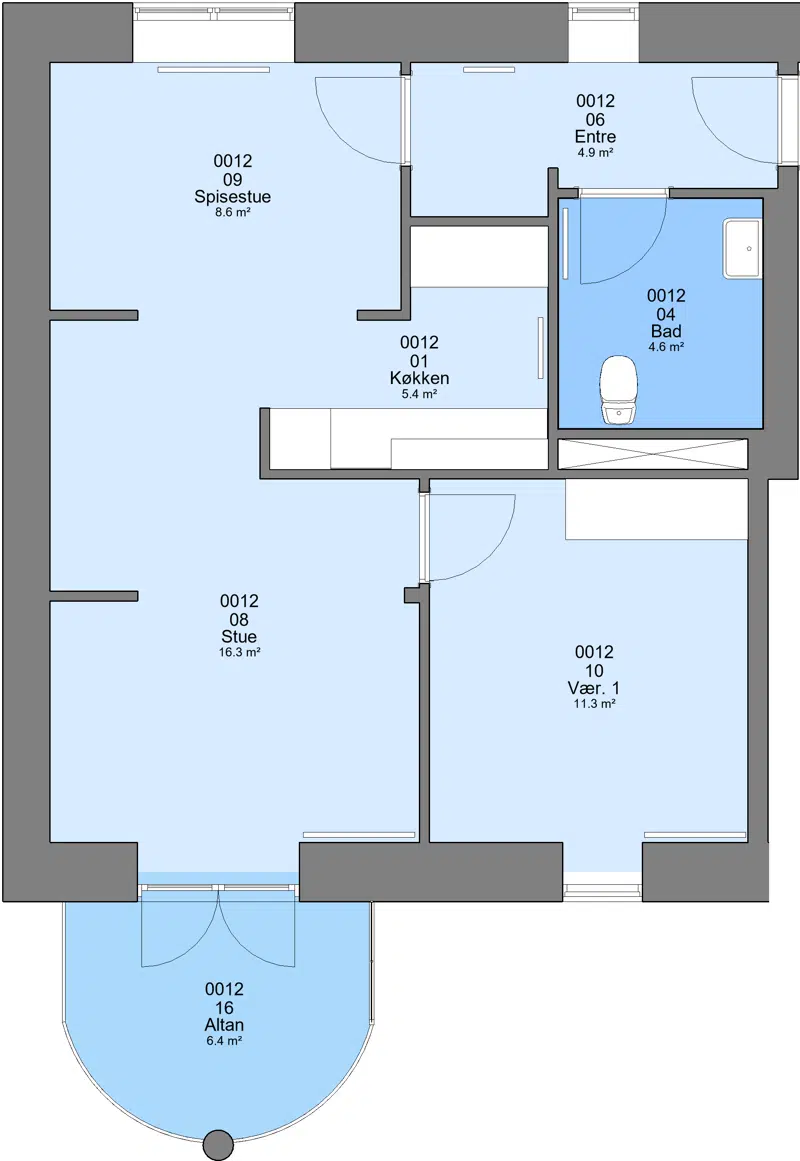
Familiebolig

2

66 m²

5127 kr.

15381 kr.

![](https://www.aabskive.dk/i/MOLIRIMEDIA/e0d5d398-5315-460f-bc06-08dd5bf69135?width=800)






![](https://www.aabskive.dk/i/MOLIRIMEDIA/e0d5d398-5315-460f-bc06-08dd5bf69135?width=800)

![](https://www.aabskive.dk/i/MOLIRIMEDIA/6dfb986e-cf41-4799-bccc-08dd5bf69135?width=800)

![](https://www.aabskive.dk/i/MOLIRIMEDIA/e0d5d398-5315-460f-bc06-08dd5bf69135?width=800)

![](https://www.aabskive.dk/i/MOLIRIMEDIA/6dfb986e-cf41-4799-bccc-08dd5bf69135?width=800)

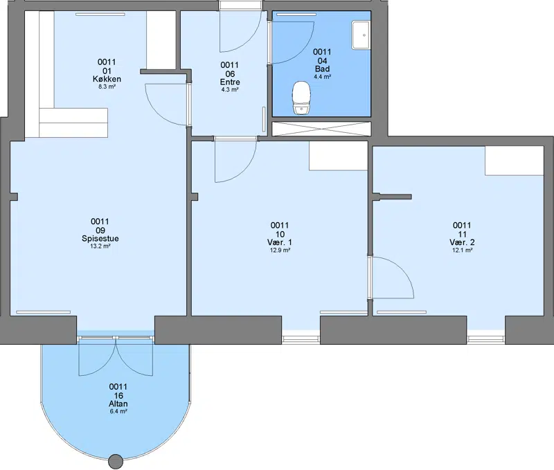
Familiebolig

3

81 m²

6291 kr.

18873 kr.

![](https://www.aabskive.dk/i/MOLIRIMEDIA/e02cbfaa-49ce-4cb7-b878-08dd5bf69135?width=800)






![](https://www.aabskive.dk/i/MOLIRIMEDIA/e02cbfaa-49ce-4cb7-b878-08dd5bf69135?width=800)

![](https://www.aabskive.dk/i/MOLIRIMEDIA/36c22031-62bf-4c24-bc6c-08dd5bf69135?width=800)

![](https://www.aabskive.dk/i/MOLIRIMEDIA/e02cbfaa-49ce-4cb7-b878-08dd5bf69135?width=800)

![](https://www.aabskive.dk/i/MOLIRIMEDIA/36c22031-62bf-4c24-bc6c-08dd5bf69135?width=800)

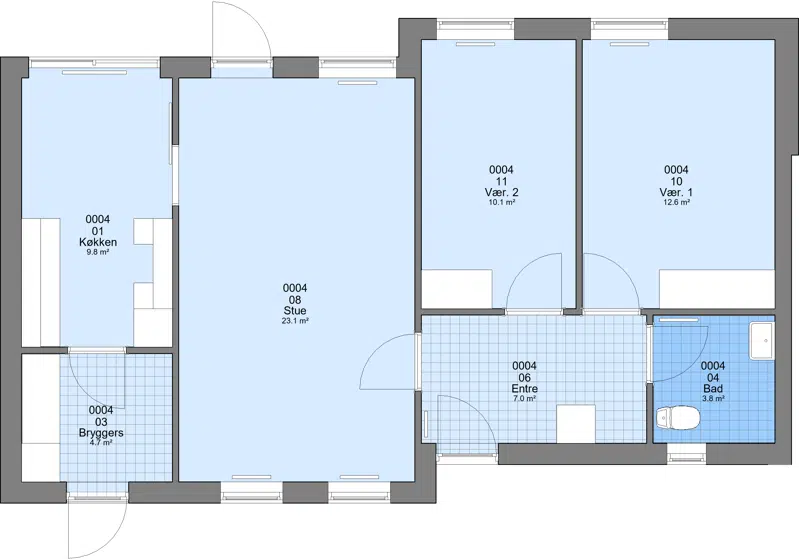
Familiebolig

3

85 m²

6135 kr.

18417 kr.

![](https://www.aabskive.dk/i/MOLIRIMEDIA/83a01d8b-6dd9-4c5d-bbf1-08dd5bf69135?width=800)






![](https://www.aabskive.dk/i/MOLIRIMEDIA/83a01d8b-6dd9-4c5d-bbf1-08dd5bf69135?width=800)

![](https://www.aabskive.dk/i/MOLIRIMEDIA/70407d02-7ca6-43fb-bd27-08dd5bf69135?width=800)

![](https://www.aabskive.dk/i/MOLIRIMEDIA/83a01d8b-6dd9-4c5d-bbf1-08dd5bf69135?width=800)

![](https://www.aabskive.dk/i/MOLIRIMEDIA/70407d02-7ca6-43fb-bd27-08dd5bf69135?width=800)

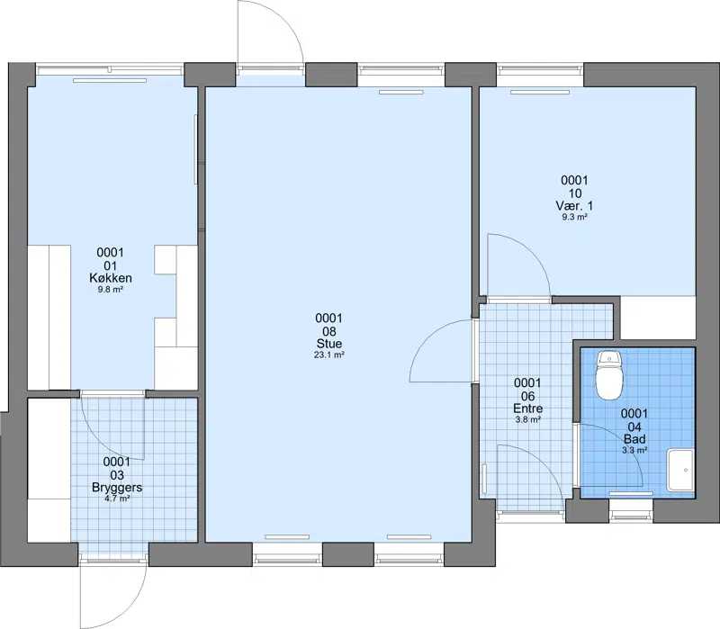
Familiebolig

4

100 m²

6992 kr.

22450 kr.

![](https://www.aabskive.dk/i/MOLIRIMEDIA/a1d6b185-cb46-4c58-b606-08dd5bf69135?width=800)






![](https://www.aabskive.dk/i/MOLIRIMEDIA/a1d6b185-cb46-4c58-b606-08dd5bf69135?width=800)

![](https://www.aabskive.dk/i/MOLIRIMEDIA/ed0e187a-72de-4ea4-bd47-08dd5bf69135?width=800)

![](https://www.aabskive.dk/i/MOLIRIMEDIA/a1d6b185-cb46-4c58-b606-08dd5bf69135?width=800)

![](https://www.aabskive.dk/i/MOLIRIMEDIA/ed0e187a-72de-4ea4-bd47-08dd5bf69135?width=800)

Ungdomsbolig

1

25 m²

2813 kr.

3804 kr.

![](https://www.aabskive.dk/i/MOLIRIMEDIA/d0ec2367-57de-4f07-ba5d-08dd5bf69135?width=800)






![](https://www.aabskive.dk/i/MOLIRIMEDIA/d0ec2367-57de-4f07-ba5d-08dd5bf69135?width=800)

![](https://www.aabskive.dk/i/MOLIRIMEDIA/7e64a6af-bdd5-4aee-bcaa-08dd5bf69135?width=800)

![](https://www.aabskive.dk/i/MOLIRIMEDIA/d0ec2367-57de-4f07-ba5d-08dd5bf69135?width=800)

![](https://www.aabskive.dk/i/MOLIRIMEDIA/7e64a6af-bdd5-4aee-bcaa-08dd5bf69135?width=800)

## Afdelingsdokumenter

Her finder du nyttig information om din afdeling, såsom husorden, vedligeholdelse af dit lejemål, referater m.m.

###

                                                Regnskaber

[Regnskab 2024 og budget 2026 afdeling 23.pdf](https://www.aabskive.dk/p/Files/Boligdata/Dokumenter/Afdelingsregnskaber/Regnskab-2024-og-budget-2026-afdeling-23.pdf)

###

                                                Vedligeholdelse

[Vedligeholdelsesreglement afd 23.pdf](https://www.aabskive.dk/p/Files/Boligdata/Dokumenter/Vedligeholdelse/Vedligeholdelsesreglement-afd-23.pdf)

###

                                                Husorden

[Ordensreglement afdeling 23.pdf](https://www.aabskive.dk/p/Files/Boligdata/Dokumenter/Husordener/Ordensreglement-afdeling-23.pdf)

## Selskabsdokumenter

Her finder du nyttig information om din selskab.

                                [Referat hovedbestyrelsesmøde 2024 04 03.pdf](https://www.aabskive.dk/p/Files/Boligdata/Dokumenter/Sel.%201%20Arbejdernes%20AndelsBoligforening/Referater%20hovedbestyrelsen/Referat-hovedbestyrelsesm&#xF8;de-2024-04-03.pdf)
                                [Referat hovedbestyrelsesmøde 2024 05 13.pdf](https://www.aabskive.dk/p/Files/Boligdata/Dokumenter/Sel.%201%20Arbejdernes%20AndelsBoligforening/Referater%20hovedbestyrelsen/Referat-hovedbestyrelsesm&#xF8;de-2024-05-13.pdf)
                                [Referat hovedbestyrelsesmøde 2024 06 03.pdf](https://www.aabskive.dk/p/Files/Boligdata/Dokumenter/Sel.%201%20Arbejdernes%20AndelsBoligforening/Referater%20hovedbestyrelsen/Referat-hovedbestyrelsesm&#xF8;de-2024-06-03.pdf)
                                [Referat hovedbestyrelsesmøde 2024 09 02.pdf](https://www.aabskive.dk/p/Files/Boligdata/Dokumenter/Sel.%201%20Arbejdernes%20AndelsBoligforening/Referater%20hovedbestyrelsen/Referat-hovedbestyrelsesm&#xF8;de-2024-09-02.pdf)
                                [Referat hovedbestyrelsesmøde 2024 10 07.pdf](https://www.aabskive.dk/p/Files/Boligdata/Dokumenter/Sel.%201%20Arbejdernes%20AndelsBoligforening/Referater%20hovedbestyrelsen/Referat-hovedbestyrelsesm&#xF8;de-2024-10-07.pdf)
                                [Referat hovedbestyrelsesmøde 2024 11 04.pdf](https://www.aabskive.dk/p/Files/Boligdata/Dokumenter/Sel.%201%20Arbejdernes%20AndelsBoligforening/Referater%20hovedbestyrelsen/Referat-hovedbestyrelsesm&#xF8;de-2024-11-04.pdf)
                                [Referat hovedbestyrelsesmøde 2024 12 02.pdf](https://www.aabskive.dk/p/Files/Boligdata/Dokumenter/Sel.%201%20Arbejdernes%20AndelsBoligforening/Referater%20hovedbestyrelsen/Referat-hovedbestyrelsesm&#xF8;de-2024-12-02.pdf)
                                [Referat hovedbestyrelsesmøde 2025 02 03.pdf](https://www.aabskive.dk/p/Files/Boligdata/Dokumenter/Sel.%201%20Arbejdernes%20AndelsBoligforening/Referater%20hovedbestyrelsen/Referat-hovedbestyrelsesm&#xF8;de-2025-02-03.pdf)
                                [Referat hovedbestyrelsesmøde 2025 03 03.pdf](https://www.aabskive.dk/p/Files/Boligdata/Dokumenter/Sel.%201%20Arbejdernes%20AndelsBoligforening/Referater%20hovedbestyrelsen/Referat-hovedbestyrelsesm&#xF8;de-2025-03-03.pdf)
                                [Referat hovedbestyrelsesmøde 2025 04 07.pdf](https://www.aabskive.dk/p/Files/Boligdata/Dokumenter/Sel.%201%20Arbejdernes%20AndelsBoligforening/Referater%20hovedbestyrelsen/Referat-hovedbestyrelsesm&#xF8;de-2025-04-07.pdf)
                                [Referat hovedbestyrelsesmøde 2025 05 15.pdf](https://www.aabskive.dk/p/Files/Boligdata/Dokumenter/Sel.%201%20Arbejdernes%20AndelsBoligforening/Referater%20hovedbestyrelsen/Referat-hovedbestyrelsesm&#xF8;de-2025-05-15.pdf)
                                [Referat hovedbestyrelsesmøde 2025 06 04.pdf](https://www.aabskive.dk/p/Files/Boligdata/Dokumenter/Sel.%201%20Arbejdernes%20AndelsBoligforening/Referater%20hovedbestyrelsen/Referat-hovedbestyrelsesm&#xF8;de-2025-06-04.pdf)
                                [Referat hovedbestyrelsesmøde 2025 09 01.pdf](https://www.aabskive.dk/p/Files/Boligdata/Dokumenter/Sel.%201%20Arbejdernes%20AndelsBoligforening/Referater%20hovedbestyrelsen/Referat-hovedbestyrelsesm&#xF8;de-2025-09-01.pdf)
                                [Referat hovedbestyrelsesmøde 2025 10 06.pdf](https://www.aabskive.dk/p/Files/Boligdata/Dokumenter/Sel.%201%20Arbejdernes%20AndelsBoligforening/Referater%20hovedbestyrelsen/Referat-hovedbestyrelsesm&#xF8;de-2025-10-06.pdf)
                                [Referat hovedbestyrelsesmøde 2025 11 03.pdf](https://www.aabskive.dk/p/Files/Boligdata/Dokumenter/Sel.%201%20Arbejdernes%20AndelsBoligforening/Referater%20hovedbestyrelsen/Referat-hovedbestyrelsesm&#xF8;de-2025-11-03.pdf)
                                [Referat hovedbestyrelsesmøde 2025 12 01.pdf](https://www.aabskive.dk/p/Files/Boligdata/Dokumenter/Sel.%201%20Arbejdernes%20AndelsBoligforening/Referater%20hovedbestyrelsen/Referat-hovedbestyrelsesm&#xF8;de-2025-12-01.pdf)
                                [Referat hovedbestyrelsesmøde 2026 02 02.pdf](https://www.aabskive.dk/p/Files/Boligdata/Dokumenter/Sel.%201%20Arbejdernes%20AndelsBoligforening/Referater%20hovedbestyrelsen/Referat-hovedbestyrelsesm&#xF8;de-2026-02-02.pdf)
                                [Referat hovedbestyrelsesmøde 2026 03 02.pdf](https://www.aabskive.dk/p/Files/Boligdata/Dokumenter/Sel.%201%20Arbejdernes%20AndelsBoligforening/Referater%20hovedbestyrelsen/Referat-hovedbestyrelsesm&#xF8;de-2026-03-02.pdf)
                                [Referat hovedbestyrelsesmøde 2026 04 13.pdf](https://www.aabskive.dk/p/Files/Boligdata/Dokumenter/Sel.%201%20Arbejdernes%20AndelsBoligforening/Referater%20hovedbestyrelsen/Referat-hovedbestyrelsesm&#xF8;de-2026-04-13.pdf)
                                [Referat hovedbestyrelsesmøde 2026 05 11.pdf](https://www.aabskive.dk/p/Files/Boligdata/Dokumenter/Sel.%201%20Arbejdernes%20AndelsBoligforening/Referater%20hovedbestyrelsen/Referat-hovedbestyrelsesm&#xF8;de-2026-05-11.pdf)
                                [Vedtægter for Arbejdernes Andelsboligforening.pdf](https://www.aabskive.dk/p/Files/Boligdata/Dokumenter/Sel.%201%20Arbejdernes%20AndelsBoligforening/Vedt&#xE6;gter/Vedt&#xE6;gter-for-Arbejdernes-Andelsboligforening.pdf)
                                [Hovedforening 2023.pdf](https://www.aabskive.dk/p/Files/Boligdata/Dokumenter/Sel.%201%20Arbejdernes%20AndelsBoligforening/Regnskaber/Hovedforening-2023.pdf)
                                [Hovedforeningen 2024.pdf](https://www.aabskive.dk/p/Files/Boligdata/Dokumenter/Sel.%201%20Arbejdernes%20AndelsBoligforening/Regnskaber/Hovedforeningen-2024.pdf)
                                [Beretning 2023.pdf](https://www.aabskive.dk/p/Files/Boligdata/Dokumenter/Sel.%201%20Arbejdernes%20AndelsBoligforening/Beretninger%20generalforsamling/Beretning-2023.pdf)
                                [Beretning 2024 05 29.pdf](https://www.aabskive.dk/p/Files/Boligdata/Dokumenter/Sel.%201%20Arbejdernes%20AndelsBoligforening/Beretninger%20generalforsamling/Beretning-2024-05-29.pdf)
                                [Beretning 2024.pdf](https://www.aabskive.dk/p/Files/Boligdata/Dokumenter/Sel.%201%20Arbejdernes%20AndelsBoligforening/Beretninger%20generalforsamling/Beretning-2024.pdf)
                                [Beretning 2025 05 26.pdf](https://www.aabskive.dk/p/Files/Boligdata/Dokumenter/Sel.%201%20Arbejdernes%20AndelsBoligforening/Beretninger%20generalforsamling/Beretning-2025-05-26.pdf)
                                [Referat generalforsamling 2023 05 31 underskrevet.pdf](https://www.aabskive.dk/p/Files/Boligdata/Dokumenter/Sel.%201%20Arbejdernes%20AndelsBoligforening/Referater%20generalforsamling/Referat-generalforsamling-2023-05-31-underskrevet.pdf)
                                [Referat generalforsamling 2024 05 29 underskrevet.pdf](https://www.aabskive.dk/p/Files/Boligdata/Dokumenter/Sel.%201%20Arbejdernes%20AndelsBoligforening/Referater%20generalforsamling/Referat-generalforsamling-2024-05-29-underskrevet.pdf)
                                [Referat generalforsamling 2025 05 26 underskrevet.pdf](https://www.aabskive.dk/p/Files/Boligdata/Dokumenter/Sel.%201%20Arbejdernes%20AndelsBoligforening/Referater%20generalforsamling/Referat-generalforsamling-2025-05-26-underskrevet.pdf)

                    Vis alle
