---
title: "Ringparken 1 - 10"
description: "1-1"
date: "2026-02-18"
created: "2025-07-07"
---

-
-
-
-
-
-
-
-
-
-
-

https://maps.google.dk/?q=56.5730387,9.0214297

# Ringparken 1 - 10

Afdeling 1

## Velkommen til afdeling 1 Ringparken 1 - 10

Ringparken er beliggende i den vestlige bydel med gode forbindelser til byens ringveje, tæt på indkøb samt Skive centrum.

Bebyggelsen, der består af 10 boligblokke i 3 etager, er opført i 1940'erne og er løbende renoveret, senest i 2006/2007 med nye køkkener og badeværelser. Alle boliger har stor åben altan, og boligerne i Ringparken 5-10 har desuden en lukket altan. I kælderetagen findes tørrerum og cykelrum samt eget pulterrum til hver bolig.
Der er opholdsarealer og legeplads i de grønne områder.

Alle boliger har dørtelefon samt installationer for tilslutning af vaskemaskine og tørretumbler, og der er ligeledes fællesvaskeri.
Hver bolig er tilsluttet fiberbredbånd, hvor der kan indgås aftale om tv, internet m.v. direkte med forskellige udbydere. Som en anden valgmulighed har boligerne eget antenneanlæg, hvor YouSee tilbyder deres tv-pakker og internet.

6 gange årligt foretages udvendig vinduesvask af samtlige boliger, ligesom der løbende udføres trappevask.

Der er et fælleslokale til udlejning for afdelingens egne beboere samt gæsteværelse til overnattende gæster. Boligforeningen råder over yderligere 2 gæsteværelser i Skive by som kan lejes af alle beboere.

## Faciliteter

Husdyr

Nej

Det er ikke tilladt at holde husdyr i afdelingen.

Altan

Ja

Der er åben altan til alle boliger samt også lukket altan til boligerne i nr. 5 til 10.

Vaskemaskine

Ja

Installation af vaskemaskine og tørretumbler er muligt. Kontakt AAB for mere information.

Carport/garage

Ja

Der er 10 garager som kan lejes via venteliste

TV

Ja

Er tilsluttet fibernet samt eget antenneanlæg, der er tilsluttet YouSee

Vaskeri

Ja

Der er fællesvaskeri

Fælleshus

Ja

Der er fælleshus samt et gæsteværelse

## Boliger i afdelingen

Familiebolig

2 værelses

Familiebolig

Familiebolig

3 værelses

Familiebolig

Familiebolig

4 værelses

Familiebolig

Boligtype

Værelser

Størrelse

Husleje

Indskud/dp

Plantegning

Familiebolig

2

75 m²

4740 kr.

14220 kr.

![](https://www.aabskive.dk/i/MOLIRIMEDIA/b2f529a6-abb9-437b-b7f7-08dd5bf69135?width=800)






![](https://www.aabskive.dk/i/MOLIRIMEDIA/b2f529a6-abb9-437b-b7f7-08dd5bf69135?width=800)

![](https://www.aabskive.dk/i/MOLIRIMEDIA/90319c56-092c-4fc0-bcf4-08dd5bf69135?width=800)

![](https://www.aabskive.dk/i/MOLIRIMEDIA/b2f529a6-abb9-437b-b7f7-08dd5bf69135?width=800)

![](https://www.aabskive.dk/i/MOLIRIMEDIA/90319c56-092c-4fc0-bcf4-08dd5bf69135?width=800)

Familiebolig

2

71 m²

4820 kr.

14460 kr.

![](https://www.aabskive.dk/i/MOLIRIMEDIA/b95aa237-b10e-44ed-b866-08dd5bf69135?width=800)






![](https://www.aabskive.dk/i/MOLIRIMEDIA/b95aa237-b10e-44ed-b866-08dd5bf69135?width=800)

![](https://www.aabskive.dk/i/MOLIRIMEDIA/d73deded-bdff-43c8-bd36-08dd5bf69135?width=800)

![](https://www.aabskive.dk/i/MOLIRIMEDIA/b95aa237-b10e-44ed-b866-08dd5bf69135?width=800)

![](https://www.aabskive.dk/i/MOLIRIMEDIA/d73deded-bdff-43c8-bd36-08dd5bf69135?width=800)

Familiebolig

2

68 m²

4479 kr.

13437 kr.

![](https://www.aabskive.dk/i/MOLIRIMEDIA/c1f00840-2003-4631-bb5b-08dd5bf69135?width=800)






![](https://www.aabskive.dk/i/MOLIRIMEDIA/c1f00840-2003-4631-bb5b-08dd5bf69135?width=800)

![](https://www.aabskive.dk/i/MOLIRIMEDIA/6da0e878-3073-4ee2-bd01-08dd5bf69135?width=800)

![](https://www.aabskive.dk/i/MOLIRIMEDIA/c1f00840-2003-4631-bb5b-08dd5bf69135?width=800)

![](https://www.aabskive.dk/i/MOLIRIMEDIA/6da0e878-3073-4ee2-bd01-08dd5bf69135?width=800)

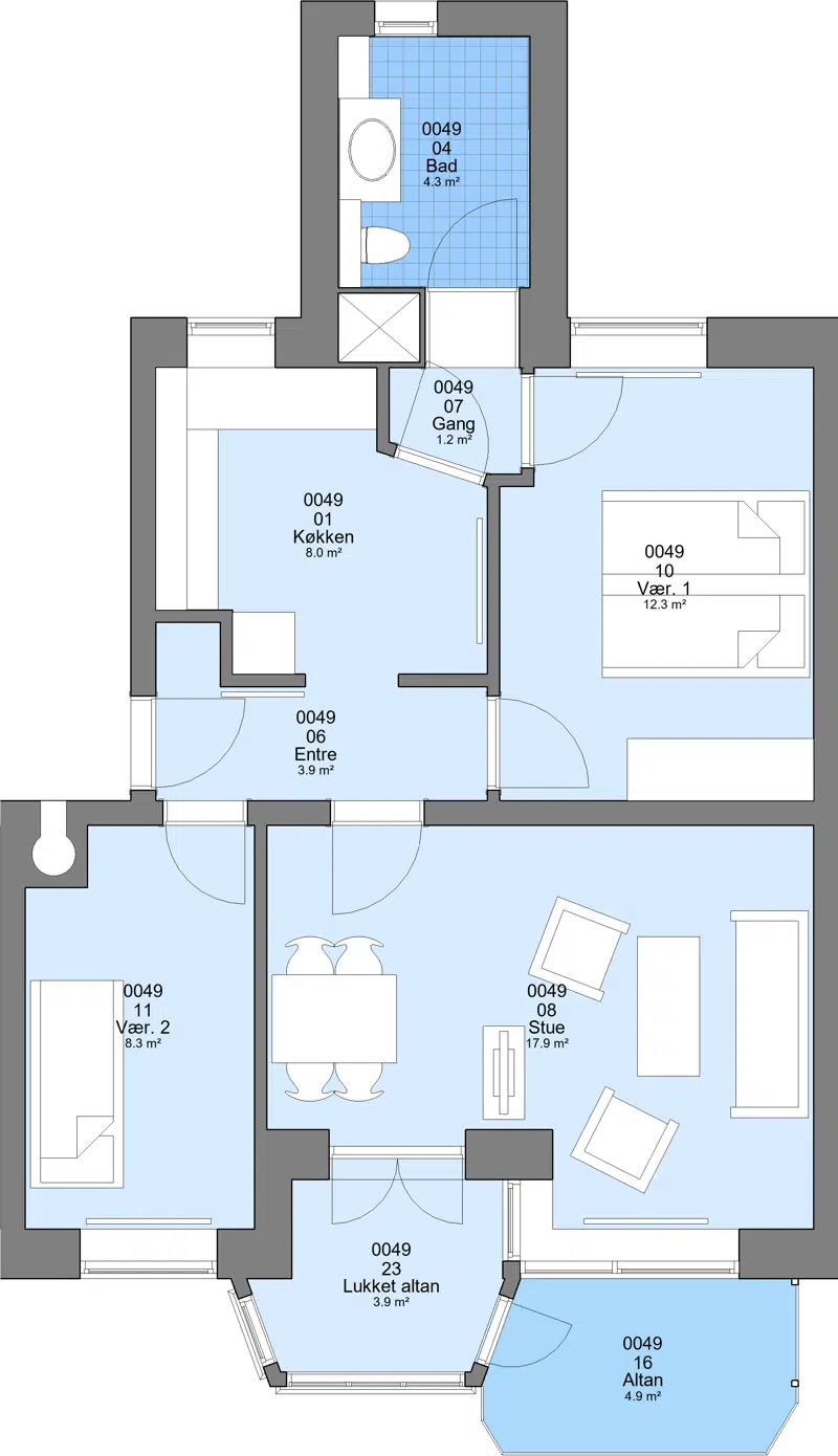
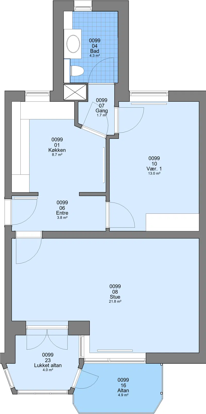
Familiebolig

3

105 m²

6014 kr.

18042 kr.

![](https://www.aabskive.dk/i/MOLIRIMEDIA/2b5d12b2-5a74-4b5e-ba05-08dd5bf69135?width=800)






![](https://www.aabskive.dk/i/MOLIRIMEDIA/2b5d12b2-5a74-4b5e-ba05-08dd5bf69135?width=800)

![](https://www.aabskive.dk/i/MOLIRIMEDIA/3b55fadc-3e30-40fb-bc9f-08dd5bf69135?width=800)

![](https://www.aabskive.dk/i/MOLIRIMEDIA/2b5d12b2-5a74-4b5e-ba05-08dd5bf69135?width=800)

![](https://www.aabskive.dk/i/MOLIRIMEDIA/3b55fadc-3e30-40fb-bc9f-08dd5bf69135?width=800)

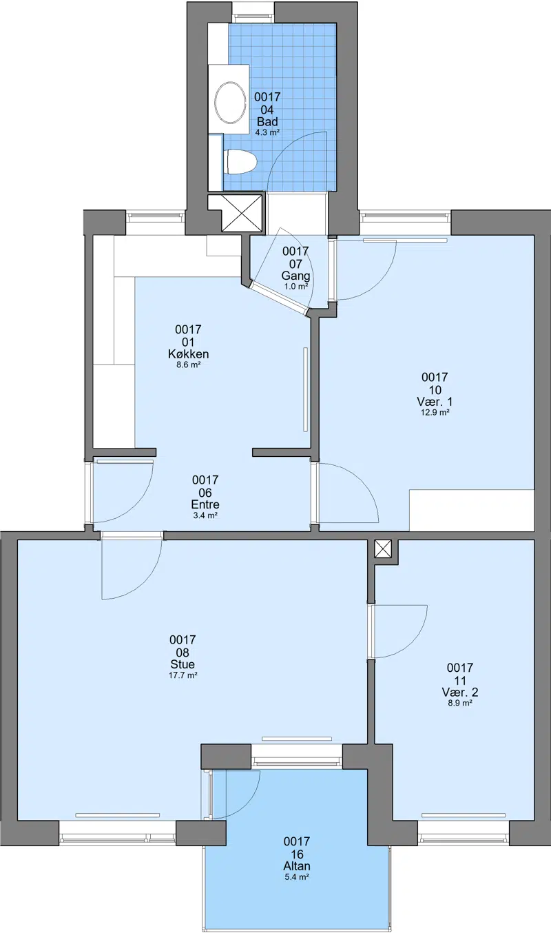
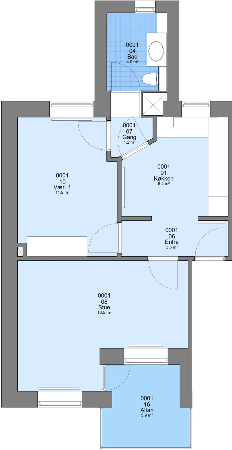
Familiebolig

3

91 m²

5442 kr.

16326 kr.

![](https://www.aabskive.dk/i/MOLIRIMEDIA/319b8553-3bc4-44c9-bb23-08dd5bf69135?width=800)






![](https://www.aabskive.dk/i/MOLIRIMEDIA/319b8553-3bc4-44c9-bb23-08dd5bf69135?width=800)

![](https://www.aabskive.dk/i/MOLIRIMEDIA/da0f4dde-dc5a-43a4-bc88-08dd5bf69135?width=800)

![](https://www.aabskive.dk/i/MOLIRIMEDIA/319b8553-3bc4-44c9-bb23-08dd5bf69135?width=800)

![](https://www.aabskive.dk/i/MOLIRIMEDIA/da0f4dde-dc5a-43a4-bc88-08dd5bf69135?width=800)

Familiebolig

3

88 m²

5260 kr.

15780 kr.

![](https://www.aabskive.dk/i/MOLIRIMEDIA/e7bde254-55e0-420e-bb84-08dd5bf69135?width=800)






![](https://www.aabskive.dk/i/MOLIRIMEDIA/e7bde254-55e0-420e-bb84-08dd5bf69135?width=800)

![](https://www.aabskive.dk/i/MOLIRIMEDIA/f5240f61-7363-4ebe-bd03-08dd5bf69135?width=800)

![](https://www.aabskive.dk/i/MOLIRIMEDIA/e7bde254-55e0-420e-bb84-08dd5bf69135?width=800)

![](https://www.aabskive.dk/i/MOLIRIMEDIA/f5240f61-7363-4ebe-bd03-08dd5bf69135?width=800)

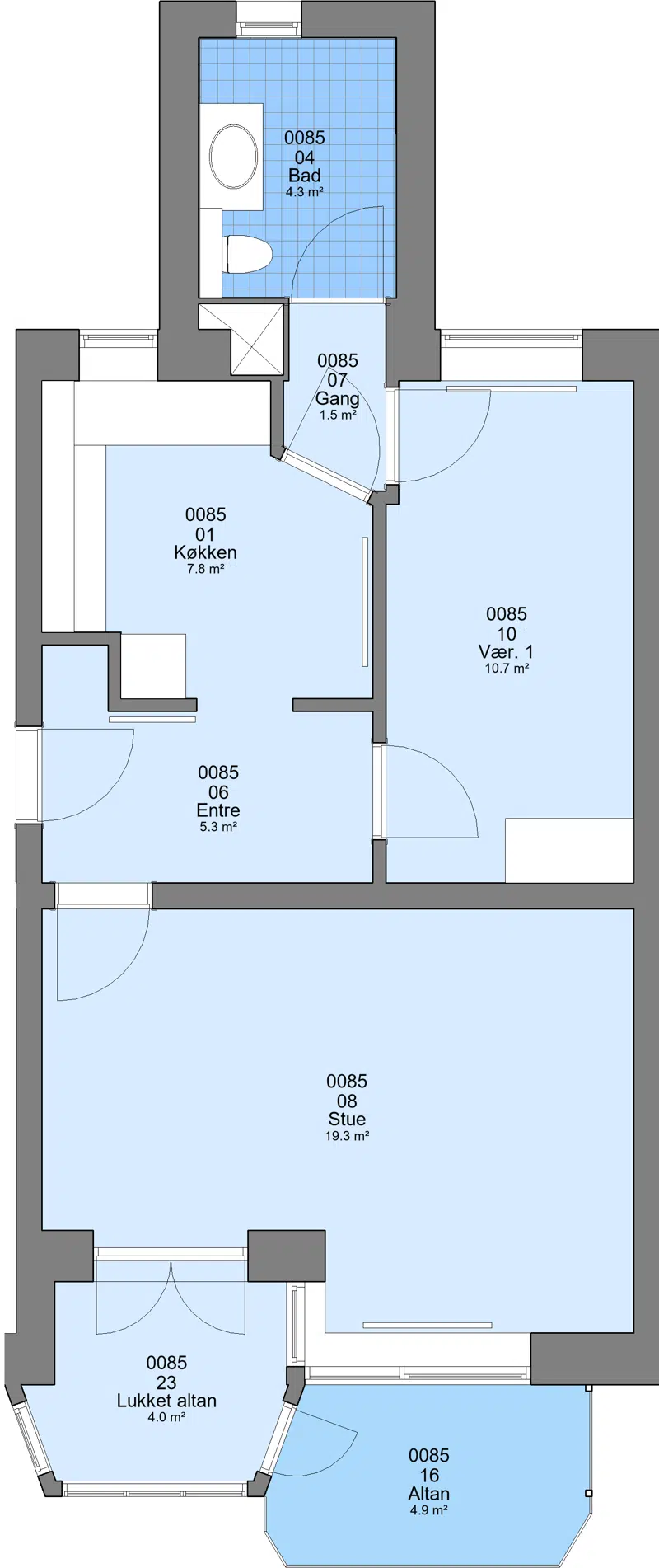
Familiebolig

3

83 m²

5308 kr.

15924 kr.

![](https://www.aabskive.dk/i/MOLIRIMEDIA/af81e5cb-4149-4c7b-ba59-08dd5bf69135?width=800)






![](https://www.aabskive.dk/i/MOLIRIMEDIA/af81e5cb-4149-4c7b-ba59-08dd5bf69135?width=800)

![](https://www.aabskive.dk/i/MOLIRIMEDIA/1d9f769a-9d41-4374-bcad-08dd5bf69135?width=800)

![](https://www.aabskive.dk/i/MOLIRIMEDIA/af81e5cb-4149-4c7b-ba59-08dd5bf69135?width=800)

![](https://www.aabskive.dk/i/MOLIRIMEDIA/1d9f769a-9d41-4374-bcad-08dd5bf69135?width=800)

Familiebolig

3

78 m²

5062 kr.

15186 kr.

![](https://www.aabskive.dk/i/MOLIRIMEDIA/19bae5cd-c1d9-4ce3-b69c-08dd5bf69135?width=800)






![](https://www.aabskive.dk/i/MOLIRIMEDIA/19bae5cd-c1d9-4ce3-b69c-08dd5bf69135?width=800)

![](https://www.aabskive.dk/i/MOLIRIMEDIA/75116477-1fbd-4f72-bc9d-08dd5bf69135?width=800)

![](https://www.aabskive.dk/i/MOLIRIMEDIA/19bae5cd-c1d9-4ce3-b69c-08dd5bf69135?width=800)

![](https://www.aabskive.dk/i/MOLIRIMEDIA/75116477-1fbd-4f72-bc9d-08dd5bf69135?width=800)

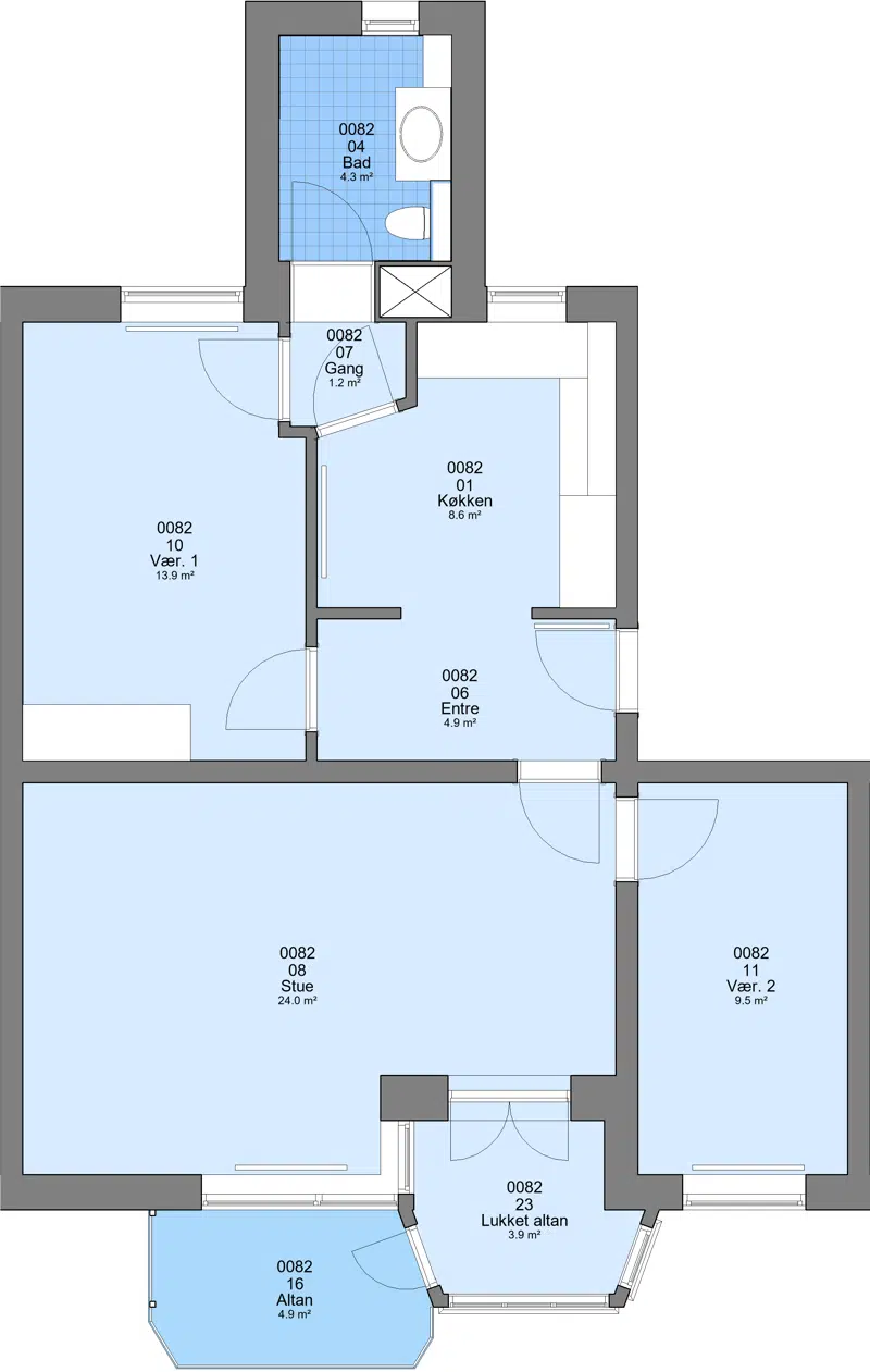
Familiebolig

4

105 m²

6189 kr.

18567 kr.

![](https://www.aabskive.dk/i/MOLIRIMEDIA/db215063-72fd-495e-b740-08dd5bf69135?width=800)






![](https://www.aabskive.dk/i/MOLIRIMEDIA/db215063-72fd-495e-b740-08dd5bf69135?width=800)

![](https://www.aabskive.dk/i/MOLIRIMEDIA/297724ab-1b56-495e-bd02-08dd5bf69135?width=800)

![](https://www.aabskive.dk/i/MOLIRIMEDIA/db215063-72fd-495e-b740-08dd5bf69135?width=800)

![](https://www.aabskive.dk/i/MOLIRIMEDIA/297724ab-1b56-495e-bd02-08dd5bf69135?width=800)

## Afdelingsdokumenter

Her finder du nyttig information om din afdeling, såsom husorden, vedligeholdelse af dit lejemål, referater m.m.

###

                                                Regnskaber

[Regnskab 2024 og budget 2026 afdeling 01.pdf](https://www.aabskive.dk/p/Files/Boligdata/Dokumenter/Afdelingsregnskaber/Regnskab-2024-og-budget-2026-afdeling-01.pdf)

###

                                                Vedligeholdelse

[Vedligeholdelsesreglement afd 01.pdf](https://www.aabskive.dk/p/Files/Boligdata/Dokumenter/Vedligeholdelse/Vedligeholdelsesreglement-afd-01.pdf)

###

                                                Husorden

[Ordensreglement afdeling 1.pdf](https://www.aabskive.dk/p/Files/Boligdata/Dokumenter/Husordener/Ordensreglement-afdeling-01.pdf)

## Selskabsdokumenter

Her finder du nyttig information om din selskab.

###

                                                Referater hovedbestyrelsen

[Referat hovedbestyrelsesmøde 2024 04 03.pdf](https://www.aabskive.dk/p/Files/Boligdata/Dokumenter/Sel.%201%20Arbejdernes%20AndelsBoligforening/Referater%20hovedbestyrelsen/Referat-hovedbestyrelsesm&#xF8;de-2024-04-03.pdf)
                                            [Referat hovedbestyrelsesmøde 2024 05 13.pdf](https://www.aabskive.dk/p/Files/Boligdata/Dokumenter/Sel.%201%20Arbejdernes%20AndelsBoligforening/Referater%20hovedbestyrelsen/Referat-hovedbestyrelsesm&#xF8;de-2024-05-13.pdf)
                                            [Referat hovedbestyrelsesmøde 2024 06 03.pdf](https://www.aabskive.dk/p/Files/Boligdata/Dokumenter/Sel.%201%20Arbejdernes%20AndelsBoligforening/Referater%20hovedbestyrelsen/Referat-hovedbestyrelsesm&#xF8;de-2024-06-03.pdf)
                                            [Referat hovedbestyrelsesmøde 2024 09 02.pdf](https://www.aabskive.dk/p/Files/Boligdata/Dokumenter/Sel.%201%20Arbejdernes%20AndelsBoligforening/Referater%20hovedbestyrelsen/Referat-hovedbestyrelsesm&#xF8;de-2024-09-02.pdf)
                                            [Referat hovedbestyrelsesmøde 2024 10 07.pdf](https://www.aabskive.dk/p/Files/Boligdata/Dokumenter/Sel.%201%20Arbejdernes%20AndelsBoligforening/Referater%20hovedbestyrelsen/Referat-hovedbestyrelsesm&#xF8;de-2024-10-07.pdf)
                                            [Referat hovedbestyrelsesmøde 2024 11 04.pdf](https://www.aabskive.dk/p/Files/Boligdata/Dokumenter/Sel.%201%20Arbejdernes%20AndelsBoligforening/Referater%20hovedbestyrelsen/Referat-hovedbestyrelsesm&#xF8;de-2024-11-04.pdf)
                                            [Referat hovedbestyrelsesmøde 2024 12 02.pdf](https://www.aabskive.dk/p/Files/Boligdata/Dokumenter/Sel.%201%20Arbejdernes%20AndelsBoligforening/Referater%20hovedbestyrelsen/Referat-hovedbestyrelsesm&#xF8;de-2024-12-02.pdf)
                                            [Referat hovedbestyrelsesmøde 2025 02 03.pdf](https://www.aabskive.dk/p/Files/Boligdata/Dokumenter/Sel.%201%20Arbejdernes%20AndelsBoligforening/Referater%20hovedbestyrelsen/Referat-hovedbestyrelsesm&#xF8;de-2025-02-03.pdf)
                                            [Referat hovedbestyrelsesmøde 2025 03 03.pdf](https://www.aabskive.dk/p/Files/Boligdata/Dokumenter/Sel.%201%20Arbejdernes%20AndelsBoligforening/Referater%20hovedbestyrelsen/Referat-hovedbestyrelsesm&#xF8;de-2025-03-03.pdf)
                                            [Referat hovedbestyrelsesmøde 2025 04 07.pdf](https://www.aabskive.dk/p/Files/Boligdata/Dokumenter/Sel.%201%20Arbejdernes%20AndelsBoligforening/Referater%20hovedbestyrelsen/Referat-hovedbestyrelsesm&#xF8;de-2025-04-07.pdf)
                                            [Referat hovedbestyrelsesmøde 2025 05 15.pdf](https://www.aabskive.dk/p/Files/Boligdata/Dokumenter/Sel.%201%20Arbejdernes%20AndelsBoligforening/Referater%20hovedbestyrelsen/Referat-hovedbestyrelsesm&#xF8;de-2025-05-15.pdf)
                                            [Referat hovedbestyrelsesmøde 2025 06 04.pdf](https://www.aabskive.dk/p/Files/Boligdata/Dokumenter/Sel.%201%20Arbejdernes%20AndelsBoligforening/Referater%20hovedbestyrelsen/Referat-hovedbestyrelsesm&#xF8;de-2025-06-04.pdf)
                                            [Referat hovedbestyrelsesmøde 2025 09 01.pdf](https://www.aabskive.dk/p/Files/Boligdata/Dokumenter/Sel.%201%20Arbejdernes%20AndelsBoligforening/Referater%20hovedbestyrelsen/Referat-hovedbestyrelsesm&#xF8;de-2025-09-01.pdf)
                                            [Referat hovedbestyrelsesmøde 2025 10 06.pdf](https://www.aabskive.dk/p/Files/Boligdata/Dokumenter/Sel.%201%20Arbejdernes%20AndelsBoligforening/Referater%20hovedbestyrelsen/Referat-hovedbestyrelsesm&#xF8;de-2025-10-06.pdf)
                                            [Referat hovedbestyrelsesmøde 2025 11 03.pdf](https://www.aabskive.dk/p/Files/Boligdata/Dokumenter/Sel.%201%20Arbejdernes%20AndelsBoligforening/Referater%20hovedbestyrelsen/Referat-hovedbestyrelsesm&#xF8;de-2025-11-03.pdf)
                                            [Referat hovedbestyrelsesmøde 2025 12 01.pdf](https://www.aabskive.dk/p/Files/Boligdata/Dokumenter/Sel.%201%20Arbejdernes%20AndelsBoligforening/Referater%20hovedbestyrelsen/Referat-hovedbestyrelsesm&#xF8;de-2025-12-01.pdf)
                                            [Referat hovedbestyrelsesmøde 2026 02 02.pdf](https://www.aabskive.dk/p/Files/Boligdata/Dokumenter/Sel.%201%20Arbejdernes%20AndelsBoligforening/Referater%20hovedbestyrelsen/Referat-hovedbestyrelsesm&#xF8;de-2026-02-02.pdf)
                                            [Referat hovedbestyrelsesmøde 2026 03 02.pdf](https://www.aabskive.dk/p/Files/Boligdata/Dokumenter/Sel.%201%20Arbejdernes%20AndelsBoligforening/Referater%20hovedbestyrelsen/Referat-hovedbestyrelsesm&#xF8;de-2026-03-02.pdf)
                                            [Referat hovedbestyrelsesmøde 2026 04 13.pdf](https://www.aabskive.dk/p/Files/Boligdata/Dokumenter/Sel.%201%20Arbejdernes%20AndelsBoligforening/Referater%20hovedbestyrelsen/Referat-hovedbestyrelsesm&#xF8;de-2026-04-13.pdf)
                                            [Referat hovedbestyrelsesmøde 2026 05 11.pdf](https://www.aabskive.dk/p/Files/Boligdata/Dokumenter/Sel.%201%20Arbejdernes%20AndelsBoligforening/Referater%20hovedbestyrelsen/Referat-hovedbestyrelsesm&#xF8;de-2026-05-11.pdf)

###

                                                Vedtægter

[Vedtægter for Arbejdernes Andelsboligforening.pdf](https://www.aabskive.dk/p/Files/Boligdata/Dokumenter/Sel.%201%20Arbejdernes%20AndelsBoligforening/Vedt&#xE6;gter/Vedt&#xE6;gter-for-Arbejdernes-Andelsboligforening.pdf)

###

                                                Regnskaber

[Hovedforening 2023.pdf](https://www.aabskive.dk/p/Files/Boligdata/Dokumenter/Sel.%201%20Arbejdernes%20AndelsBoligforening/Regnskaber/Hovedforening-2023.pdf)
                                            [Hovedforeningen 2024.pdf](https://www.aabskive.dk/p/Files/Boligdata/Dokumenter/Sel.%201%20Arbejdernes%20AndelsBoligforening/Regnskaber/Hovedforeningen-2024.pdf)

###

                                                Beretninger generalforsamling

[Beretning 2023.pdf](https://www.aabskive.dk/p/Files/Boligdata/Dokumenter/Sel.%201%20Arbejdernes%20AndelsBoligforening/Beretninger%20generalforsamling/Beretning-2023.pdf)
                                            [Beretning 2024 05 29.pdf](https://www.aabskive.dk/p/Files/Boligdata/Dokumenter/Sel.%201%20Arbejdernes%20AndelsBoligforening/Beretninger%20generalforsamling/Beretning-2024-05-29.pdf)
                                            [Beretning 2024.pdf](https://www.aabskive.dk/p/Files/Boligdata/Dokumenter/Sel.%201%20Arbejdernes%20AndelsBoligforening/Beretninger%20generalforsamling/Beretning-2024.pdf)
                                            [Beretning 2025 05 26.pdf](https://www.aabskive.dk/p/Files/Boligdata/Dokumenter/Sel.%201%20Arbejdernes%20AndelsBoligforening/Beretninger%20generalforsamling/Beretning-2025-05-26.pdf)

###

                                                Referater generalforsamling

[Referat generalforsamling 2023 05 31 underskrevet.pdf](https://www.aabskive.dk/p/Files/Boligdata/Dokumenter/Sel.%201%20Arbejdernes%20AndelsBoligforening/Referater%20generalforsamling/Referat-generalforsamling-2023-05-31-underskrevet.pdf)
                                            [Referat generalforsamling 2024 05 29 underskrevet.pdf](https://www.aabskive.dk/p/Files/Boligdata/Dokumenter/Sel.%201%20Arbejdernes%20AndelsBoligforening/Referater%20generalforsamling/Referat-generalforsamling-2024-05-29-underskrevet.pdf)
                                            [Referat generalforsamling 2025 05 26 underskrevet.pdf](https://www.aabskive.dk/p/Files/Boligdata/Dokumenter/Sel.%201%20Arbejdernes%20AndelsBoligforening/Referater%20generalforsamling/Referat-generalforsamling-2025-05-26-underskrevet.pdf)
