---
title: "Salling og Fur"
description: "1-16"
date: "2025-07-18"
created: "2025-07-07"
---

-
-
-
-
-
-
-
-
-
-
-
-
-
-

https://maps.google.dk/?q=56.6859439,9.0693657

# Salling og Fur

Afdeling 16

## Velkommen til afdeling 16 Salling og Fur

Afdelingen består af 124 rækkehuse fordelt i byerne Jebjerg, Breum, Selde, Durup, Glyngøre samt på Fur.
Boligerne er hovedsageligt opført i 1980'erne og har alle terrasse/have.
I 2024 er boligerne på Præstemarken og Sdr. Allé i Breum, på Nr. Allé i Jebjerg samt Tingagervej 1-7 og 34-40 på Fur alle blevet gennemrenoveret indvendig.

Hver lejlighed er tilsluttet fiberbredbånd, hvorfor der kan indgås aftale om tv, internet m.v. direkte med forskellige udbydere.

Boligforeningen råder over 3 gæsteværelser samt en gildesal i Skive by, som kan lejes af alle beboere.

## Faciliteter

Husdyr

Ja

Det er tilladt at holde 1 hund eller 1 kat - se mere for den enkelte bebyggelse i ordensreglementet.

Vaskemaskine

Ja

Installation af vaskemaskine og tørretumbler er muligt. Kontakt AAB for mere information.

Carport/garage

Ja

Der er 2 carporte som kan lejes via venteliste.

TV

Ja

Er tilsluttet fibernet

Vaskeri

Ja

Der er fællesvaskeri.

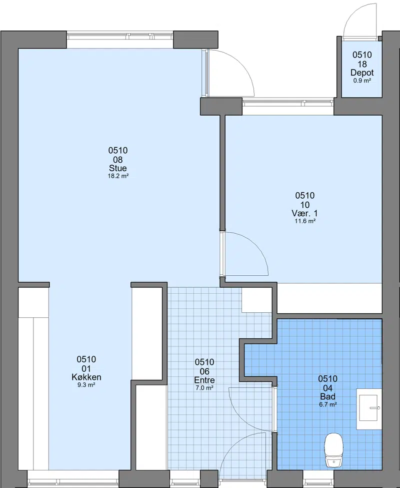
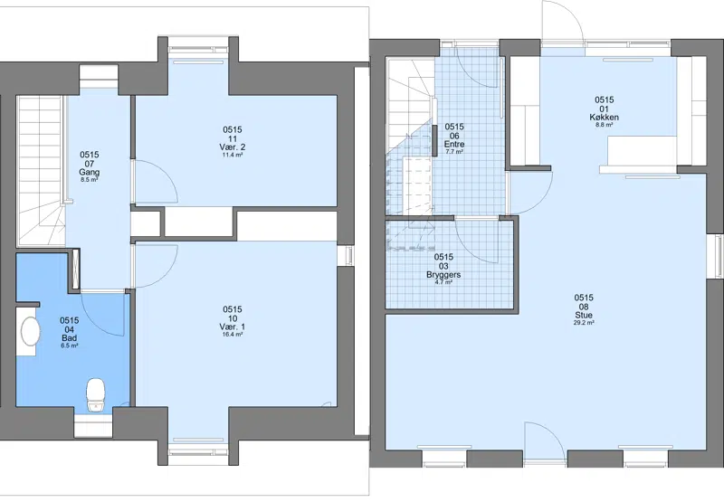
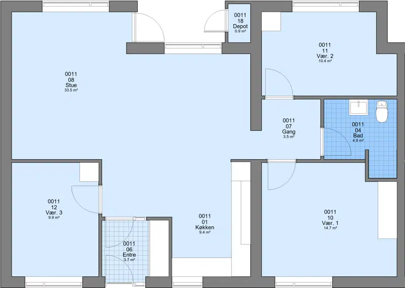
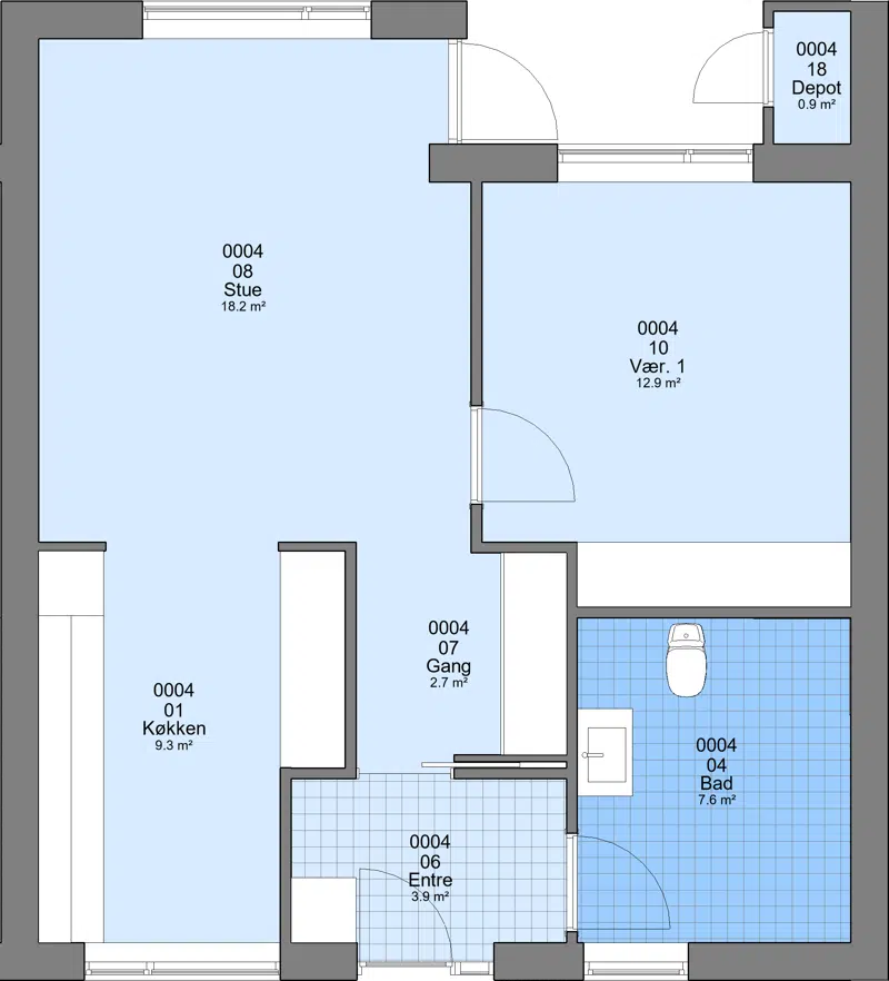
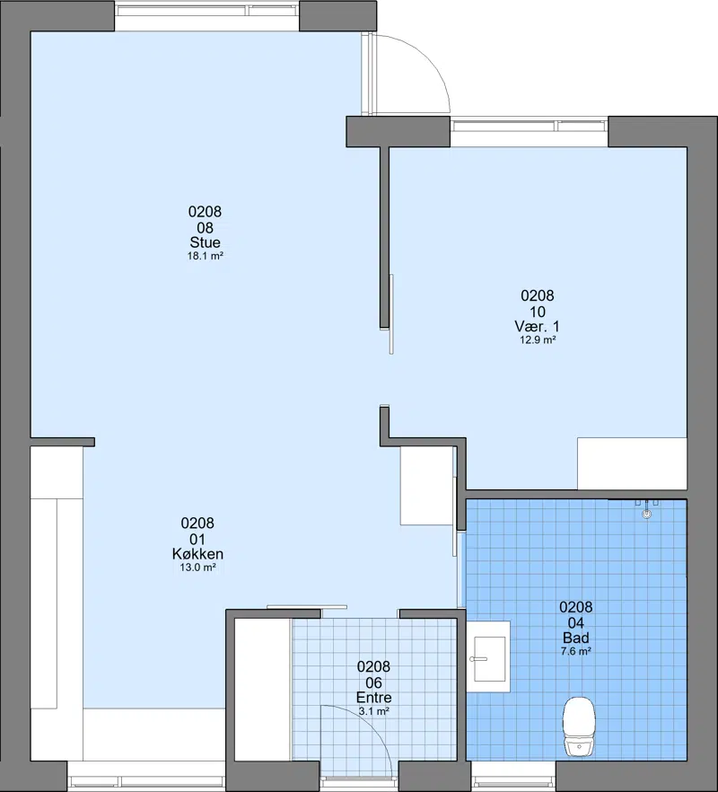
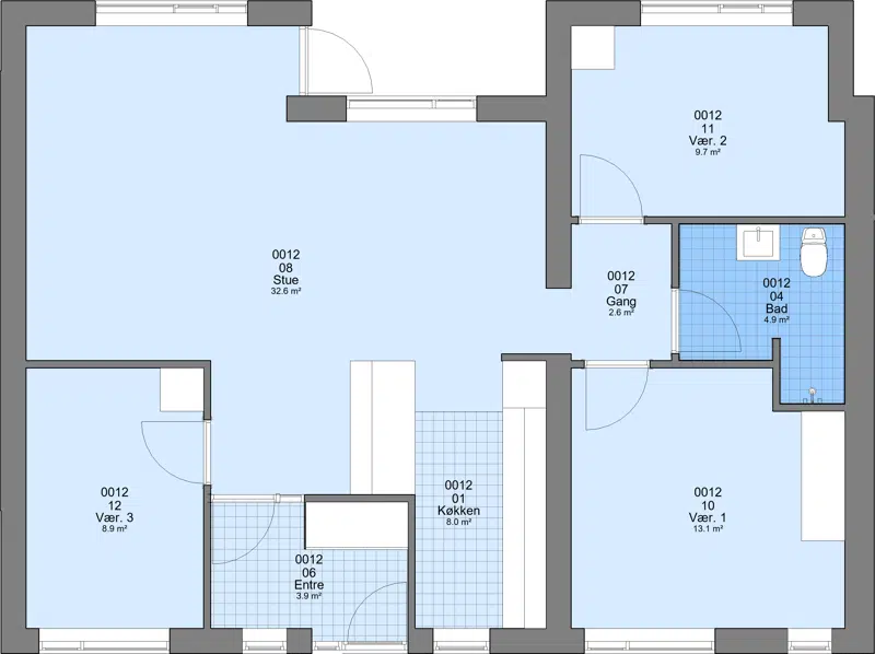
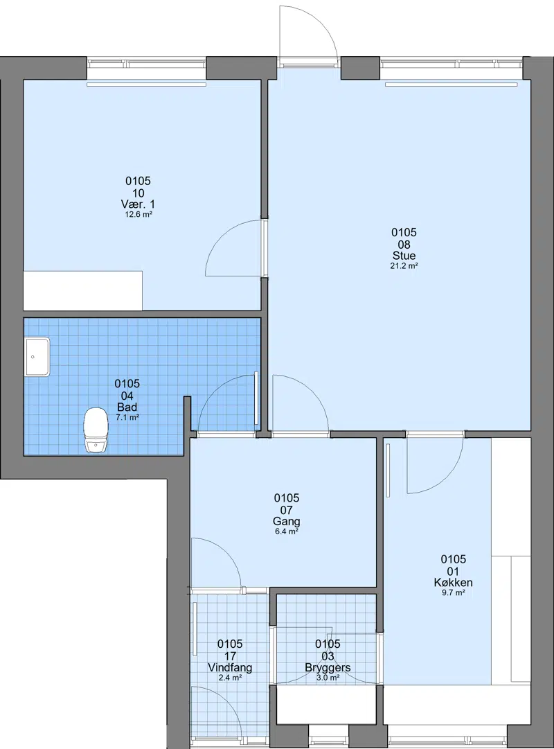
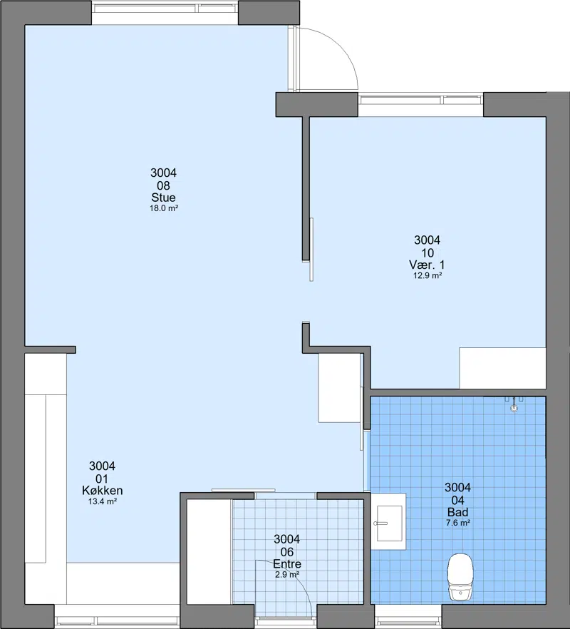
## Boliger i afdelingen

Ungdomsbolig

1 værelses

Ungdomsbolig

Familiebolig

2 værelses

Familiebolig

Ældrebolig

2 værelses

Ældrebolig

Familiebolig

3 værelses

Familiebolig

Ældrebolig

3 værelses

Ældrebolig

Familiebolig

4 værelses

Familiebolig

Boligtype

Værelser

Størrelse

Husleje

Indskud/dp

Plantegning

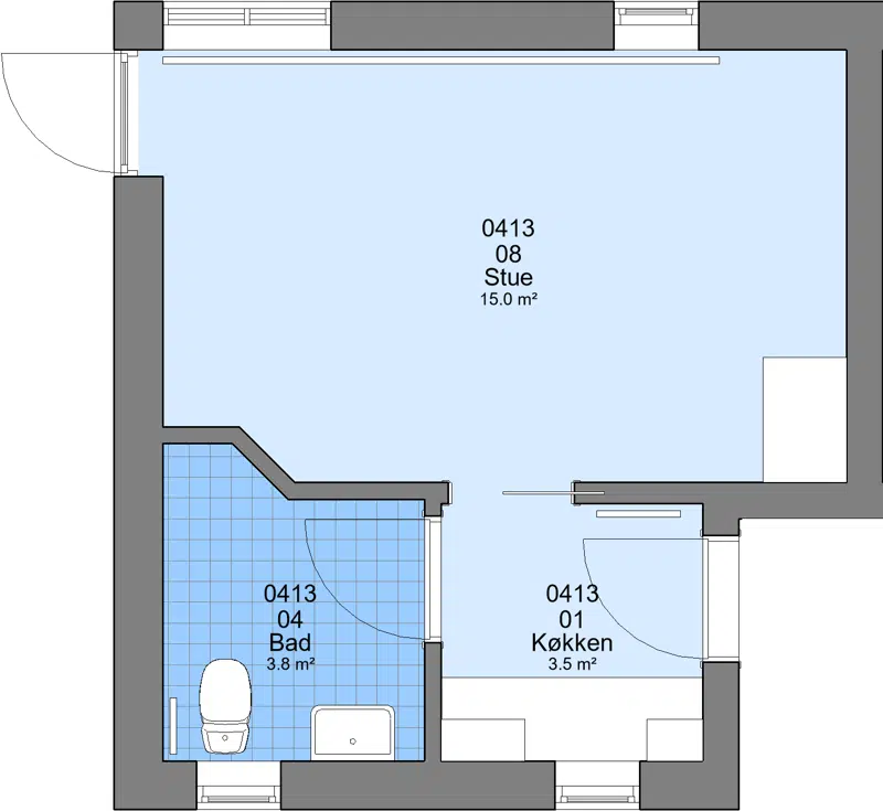
Aldre/Plejebolig

2

65 m²

5727 kr.

17181 kr.

![](https://www.aabskive.dk/i/MOLIRIMEDIA/aa9bf4e4-8c6c-4217-b6e6-08dd5bf69135?width=800)






![](https://www.aabskive.dk/i/MOLIRIMEDIA/aa9bf4e4-8c6c-4217-b6e6-08dd5bf69135?width=800)

![](https://www.aabskive.dk/i/MOLIRIMEDIA/a3db8a29-0670-4e35-bd13-08dd5bf69135?width=800)

![](https://www.aabskive.dk/i/MOLIRIMEDIA/f4e66cf8-7907-44ae-bd3a-08dd5bf69135?width=800)

![](https://www.aabskive.dk/i/MOLIRIMEDIA/aa9bf4e4-8c6c-4217-b6e6-08dd5bf69135?width=800)

![](https://www.aabskive.dk/i/MOLIRIMEDIA/a3db8a29-0670-4e35-bd13-08dd5bf69135?width=800)

![](https://www.aabskive.dk/i/MOLIRIMEDIA/f4e66cf8-7907-44ae-bd3a-08dd5bf69135?width=800)

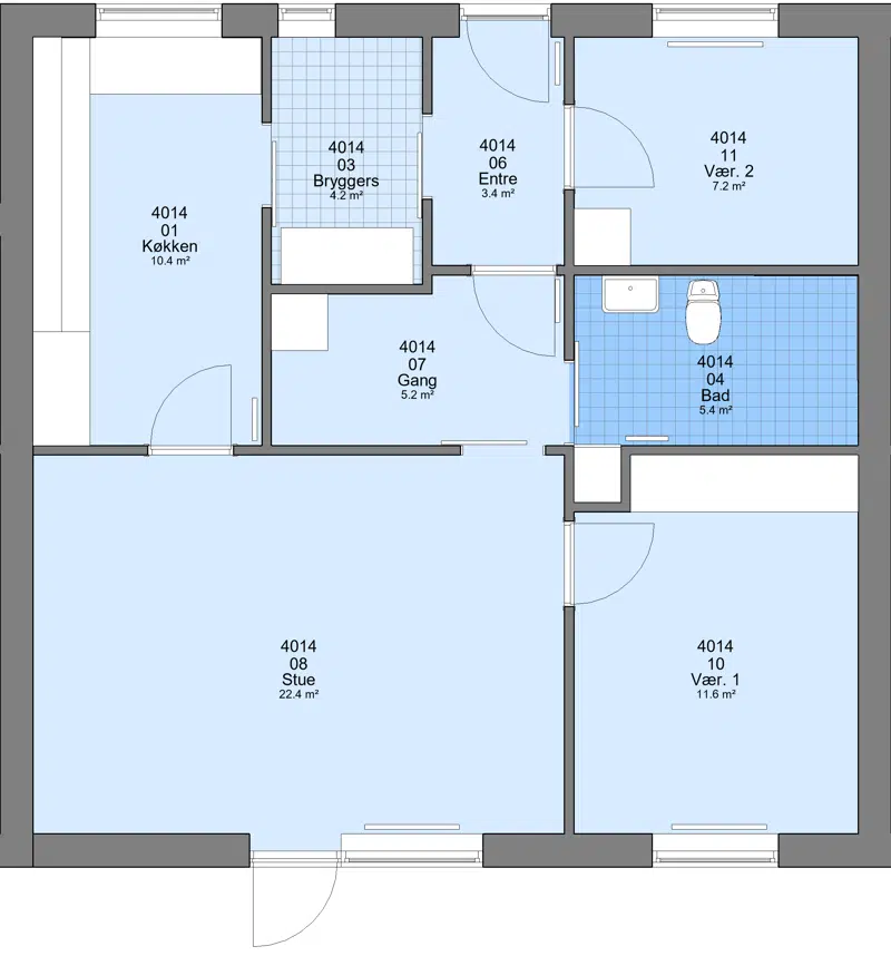
Aldre/Plejebolig

3

87.5 m²

7342 kr.

22026 kr.

![](https://www.aabskive.dk/i/MOLIRIMEDIA/23005635-4c32-4b65-b7ca-08dd5bf69135?width=800)






![](https://www.aabskive.dk/i/MOLIRIMEDIA/23005635-4c32-4b65-b7ca-08dd5bf69135?width=800)

![](https://www.aabskive.dk/i/MOLIRIMEDIA/eaf2a0a5-b98e-451c-bcaf-08dd5bf69135?width=800)

![](https://www.aabskive.dk/i/MOLIRIMEDIA/23005635-4c32-4b65-b7ca-08dd5bf69135?width=800)

![](https://www.aabskive.dk/i/MOLIRIMEDIA/eaf2a0a5-b98e-451c-bcaf-08dd5bf69135?width=800)

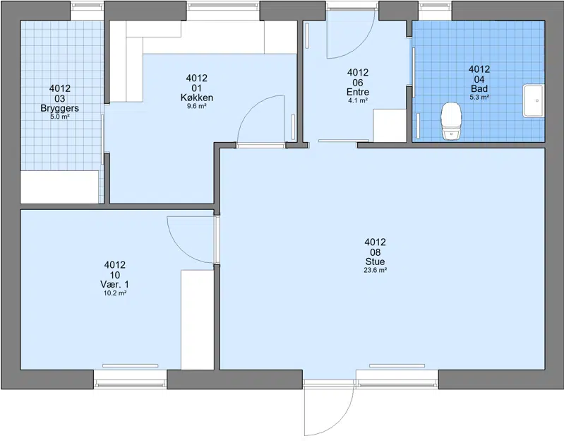
Aldre/Plejebolig

3

77 m²

6497 kr.

19491 kr.

![](https://www.aabskive.dk/i/MOLIRIMEDIA/d28e26eb-c45f-474e-b8a0-08dd5bf69135?width=800)






![](https://www.aabskive.dk/i/MOLIRIMEDIA/d28e26eb-c45f-474e-b8a0-08dd5bf69135?width=800)

![](https://www.aabskive.dk/i/MOLIRIMEDIA/5cec480b-0ec7-459c-bc61-08dd5bf69135?width=800)

![](https://www.aabskive.dk/i/MOLIRIMEDIA/d28e26eb-c45f-474e-b8a0-08dd5bf69135?width=800)

![](https://www.aabskive.dk/i/MOLIRIMEDIA/5cec480b-0ec7-459c-bc61-08dd5bf69135?width=800)

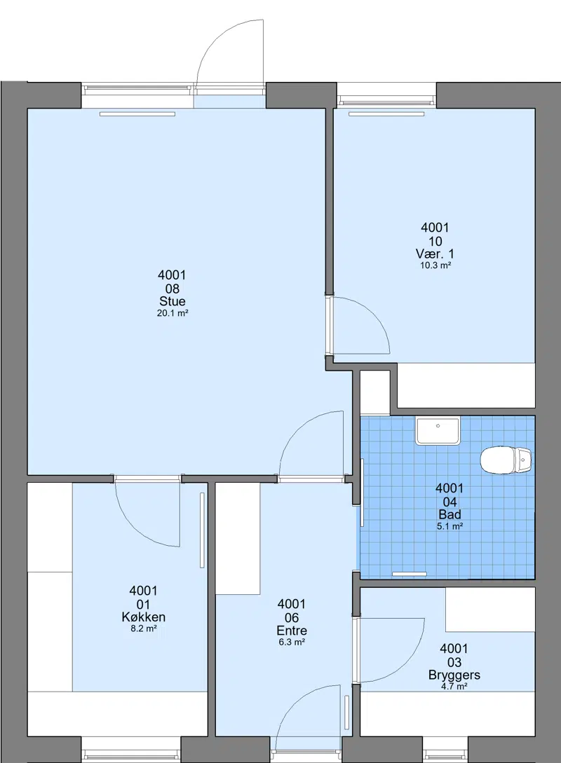
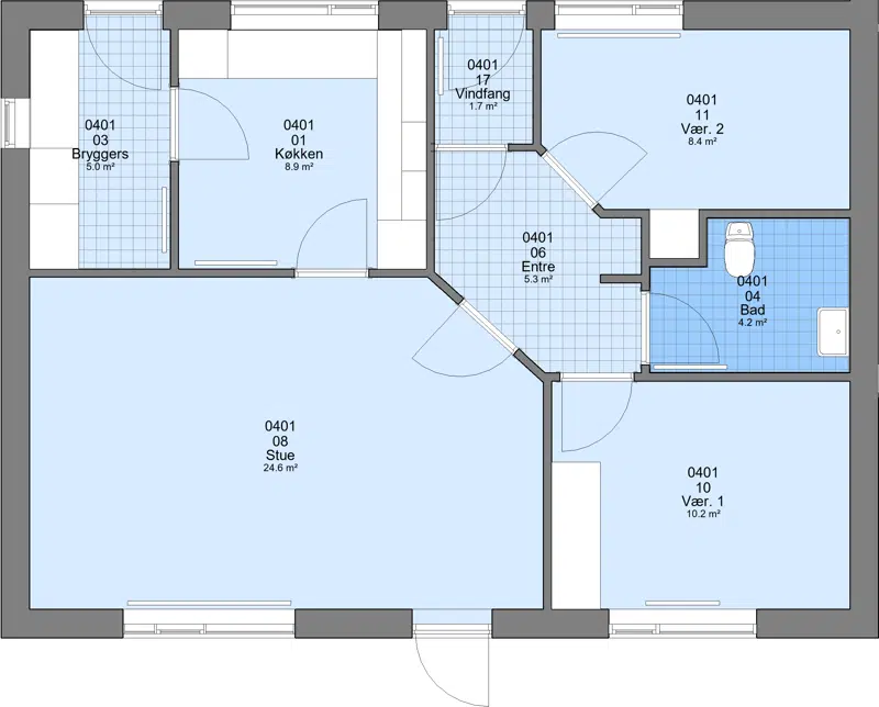
Familiebolig

2

66 m²

4401 kr.

13203 kr.

![](https://www.aabskive.dk/i/MOLIRIMEDIA/1d3b5ef9-71c6-41ed-b7d4-08dd5bf69135?width=800)






![](https://www.aabskive.dk/i/MOLIRIMEDIA/1d3b5ef9-71c6-41ed-b7d4-08dd5bf69135?width=800)

![](https://www.aabskive.dk/i/MOLIRIMEDIA/88600591-1292-4d52-bc4c-08dd5bf69135?width=800)

![](https://www.aabskive.dk/i/MOLIRIMEDIA/1d3b5ef9-71c6-41ed-b7d4-08dd5bf69135?width=800)

![](https://www.aabskive.dk/i/MOLIRIMEDIA/88600591-1292-4d52-bc4c-08dd5bf69135?width=800)

Familiebolig

2

70 m²

4628 kr.

13884 kr.

![](https://www.aabskive.dk/i/MOLIRIMEDIA/50045f2f-1b34-4c05-bba1-08dd5bf69135?width=800)






![](https://www.aabskive.dk/i/MOLIRIMEDIA/50045f2f-1b34-4c05-bba1-08dd5bf69135?width=800)

![](https://www.aabskive.dk/i/MOLIRIMEDIA/d7cad042-c73d-4bf9-9007-08ddb87da2d4?width=800)

![](https://www.aabskive.dk/i/MOLIRIMEDIA/50045f2f-1b34-4c05-bba1-08dd5bf69135?width=800)

![](https://www.aabskive.dk/i/MOLIRIMEDIA/d7cad042-c73d-4bf9-9007-08ddb87da2d4?width=800)

Familiebolig

2

66 m²

4476 kr.

13428 kr.

![](https://www.aabskive.dk/i/MOLIRIMEDIA/8ea9fa41-9553-44f6-b90e-08dd5bf69135?width=800)






![](https://www.aabskive.dk/i/MOLIRIMEDIA/8ea9fa41-9553-44f6-b90e-08dd5bf69135?width=800)

![](https://www.aabskive.dk/i/MOLIRIMEDIA/3b8093c3-d1c5-4efb-bd46-08dd5bf69135?width=800)

![](https://www.aabskive.dk/i/MOLIRIMEDIA/8ea9fa41-9553-44f6-b90e-08dd5bf69135?width=800)

![](https://www.aabskive.dk/i/MOLIRIMEDIA/3b8093c3-d1c5-4efb-bd46-08dd5bf69135?width=800)

Familiebolig

2

67 m²

5733 kr.

17199 kr.

![](https://www.aabskive.dk/i/MOLIRIMEDIA/aa125934-eb75-4263-b727-08dd5bf69135?width=800)

Familiebolig

2

70 m²

5977 kr.

17931 kr.

![](https://www.aabskive.dk/i/MOLIRIMEDIA/e5ce88a9-8f51-481a-b6a3-08dd5bf69135?width=800)






![](https://www.aabskive.dk/i/MOLIRIMEDIA/e5ce88a9-8f51-481a-b6a3-08dd5bf69135?width=800)

![](https://www.aabskive.dk/i/MOLIRIMEDIA/649df160-abf4-45e1-bd05-08dd5bf69135?width=800)

![](https://www.aabskive.dk/i/MOLIRIMEDIA/e5ce88a9-8f51-481a-b6a3-08dd5bf69135?width=800)

![](https://www.aabskive.dk/i/MOLIRIMEDIA/649df160-abf4-45e1-bd05-08dd5bf69135?width=800)

Familiebolig

2

60 m²

4977 kr.

14931 kr.

![](https://www.aabskive.dk/i/MOLIRIMEDIA/d03f4fd3-7043-4cd3-b70d-08dd5bf69135?width=800)

Familiebolig

2

66 m²

5781 kr.

17343 kr.

![](https://www.aabskive.dk/i/MOLIRIMEDIA/f05ad220-ca36-49d0-b774-08dd5bf69135?width=800)

Familiebolig

2

70 m²

5605 kr.

16815 kr.

![](https://www.aabskive.dk/i/MOLIRIMEDIA/3b33a731-6bc0-4428-b840-08dd5bf69135?width=800)

Familiebolig

2

60 m²

4417 kr.

13251 kr.

![](https://www.aabskive.dk/i/MOLIRIMEDIA/49e5c0f5-9736-497b-b79d-08dd5bf69135?width=800)

Familiebolig

2

70 m²

4945 kr.

14835 kr.

![](https://www.aabskive.dk/i/MOLIRIMEDIA/6a58c002-5f4b-444d-b69d-08dd5bf69135?width=800)






![](https://www.aabskive.dk/i/MOLIRIMEDIA/6a58c002-5f4b-444d-b69d-08dd5bf69135?width=800)

![](https://www.aabskive.dk/i/MOLIRIMEDIA/8e27ffeb-727a-4b66-bca9-08dd5bf69135?width=800)

![](https://www.aabskive.dk/i/MOLIRIMEDIA/6a58c002-5f4b-444d-b69d-08dd5bf69135?width=800)

![](https://www.aabskive.dk/i/MOLIRIMEDIA/8e27ffeb-727a-4b66-bca9-08dd5bf69135?width=800)

Familiebolig

2

60 m²

5856 kr.

17568 kr.

![](https://www.aabskive.dk/i/MOLIRIMEDIA/fbb9d485-db0d-49d6-b86b-08dd5bf69135?width=800)

Familiebolig

3

81.5 m²

6697 kr.

20091 kr.

![](https://www.aabskive.dk/i/MOLIRIMEDIA/e4d946fd-5d68-44d2-bb0f-08dd5bf69135?width=800)






![](https://www.aabskive.dk/i/MOLIRIMEDIA/e4d946fd-5d68-44d2-bb0f-08dd5bf69135?width=800)

![](https://www.aabskive.dk/i/MOLIRIMEDIA/ffc60305-4ca2-4ccf-bc85-08dd5bf69135?width=800)

![](https://www.aabskive.dk/i/MOLIRIMEDIA/06e9c8ca-6155-47e7-bcda-08dd5bf69135?width=800)

![](https://www.aabskive.dk/i/MOLIRIMEDIA/e4d946fd-5d68-44d2-bb0f-08dd5bf69135?width=800)

![](https://www.aabskive.dk/i/MOLIRIMEDIA/ffc60305-4ca2-4ccf-bc85-08dd5bf69135?width=800)

![](https://www.aabskive.dk/i/MOLIRIMEDIA/06e9c8ca-6155-47e7-bcda-08dd5bf69135?width=800)

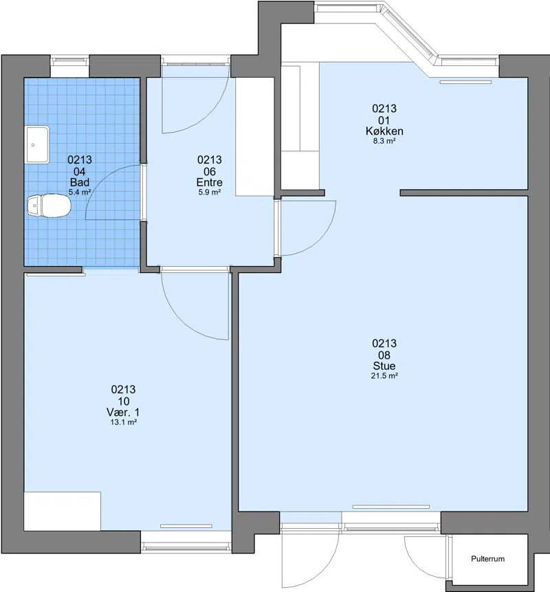
Familiebolig

3

83 m²

5214 kr.

15642 kr.

![](https://www.aabskive.dk/i/MOLIRIMEDIA/16970915-557b-4975-bbfb-08dd5bf69135?width=800)






![](https://www.aabskive.dk/i/MOLIRIMEDIA/16970915-557b-4975-bbfb-08dd5bf69135?width=800)

![](https://www.aabskive.dk/i/MOLIRIMEDIA/42afebca-afd4-4ff5-bc38-08dd5bf69135?width=800)

![](https://www.aabskive.dk/i/MOLIRIMEDIA/16970915-557b-4975-bbfb-08dd5bf69135?width=800)

![](https://www.aabskive.dk/i/MOLIRIMEDIA/42afebca-afd4-4ff5-bc38-08dd5bf69135?width=800)

Familiebolig

3

83 m²

5214 kr.

15642 kr.

![](https://www.aabskive.dk/i/MOLIRIMEDIA/603c489b-023a-4ebe-b68e-08dd5bf69135?width=800)






![](https://www.aabskive.dk/i/MOLIRIMEDIA/603c489b-023a-4ebe-b68e-08dd5bf69135?width=800)

![](https://www.aabskive.dk/i/MOLIRIMEDIA/d9c24e16-5ad0-421e-bcef-08dd5bf69135?width=800)

![](https://www.aabskive.dk/i/MOLIRIMEDIA/603c489b-023a-4ebe-b68e-08dd5bf69135?width=800)

![](https://www.aabskive.dk/i/MOLIRIMEDIA/d9c24e16-5ad0-421e-bcef-08dd5bf69135?width=800)

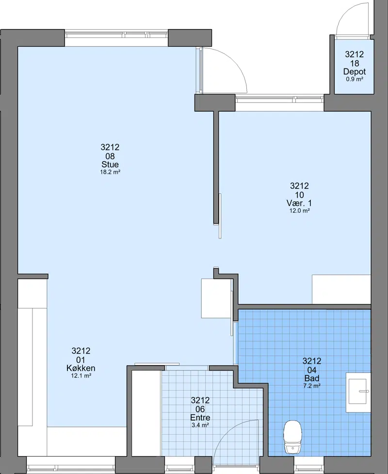
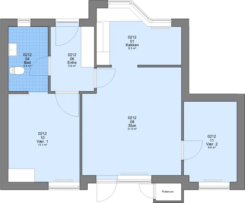
Familiebolig

3

84 m²

7150 kr.

21450 kr.

![](https://www.aabskive.dk/i/MOLIRIMEDIA/1355ccdb-bf1b-4f82-bb36-08dd5bf69135?width=800)






![](https://www.aabskive.dk/i/MOLIRIMEDIA/1355ccdb-bf1b-4f82-bb36-08dd5bf69135?width=800)

![](https://www.aabskive.dk/i/MOLIRIMEDIA/ac449be9-14b8-4034-bd5b-08dd5bf69135?width=800)

![](https://www.aabskive.dk/i/MOLIRIMEDIA/ab9e42e3-475a-4ca8-bd4e-08dd5bf69135?width=800)

![](https://www.aabskive.dk/i/MOLIRIMEDIA/1355ccdb-bf1b-4f82-bb36-08dd5bf69135?width=800)

![](https://www.aabskive.dk/i/MOLIRIMEDIA/ac449be9-14b8-4034-bd5b-08dd5bf69135?width=800)

![](https://www.aabskive.dk/i/MOLIRIMEDIA/ab9e42e3-475a-4ca8-bd4e-08dd5bf69135?width=800)

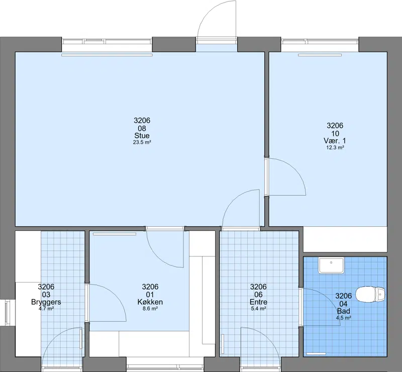
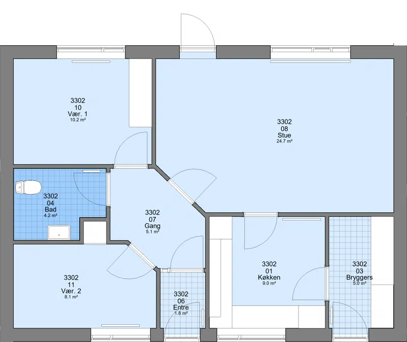
Familiebolig

3

77 m²

6458 kr.

19374 kr.

![](https://www.aabskive.dk/i/MOLIRIMEDIA/ce5ce971-27a8-4159-bb27-08dd5bf69135?width=800)






![](https://www.aabskive.dk/i/MOLIRIMEDIA/ce5ce971-27a8-4159-bb27-08dd5bf69135?width=800)

![](https://www.aabskive.dk/i/MOLIRIMEDIA/5fec95c9-7413-4f4f-bccd-08dd5bf69135?width=800)

![](https://www.aabskive.dk/i/MOLIRIMEDIA/ce5ce971-27a8-4159-bb27-08dd5bf69135?width=800)

![](https://www.aabskive.dk/i/MOLIRIMEDIA/5fec95c9-7413-4f4f-bccd-08dd5bf69135?width=800)

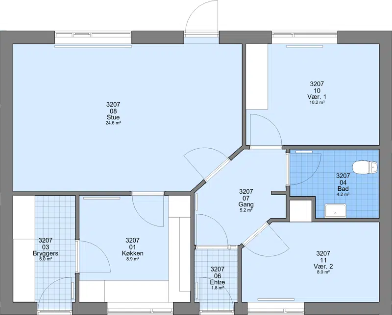
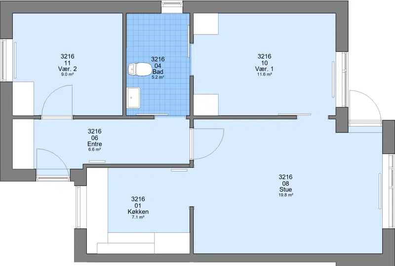
Familiebolig

3

82 m²

6803 kr.

20409 kr.

![](https://www.aabskive.dk/i/MOLIRIMEDIA/95eadc10-e12e-442b-bb58-08dd5bf69135?width=800)






![](https://www.aabskive.dk/i/MOLIRIMEDIA/95eadc10-e12e-442b-bb58-08dd5bf69135?width=800)

![](https://www.aabskive.dk/i/MOLIRIMEDIA/3beac686-8446-4657-bd2b-08dd5bf69135?width=800)

![](https://www.aabskive.dk/i/MOLIRIMEDIA/95eadc10-e12e-442b-bb58-08dd5bf69135?width=800)

![](https://www.aabskive.dk/i/MOLIRIMEDIA/3beac686-8446-4657-bd2b-08dd5bf69135?width=800)

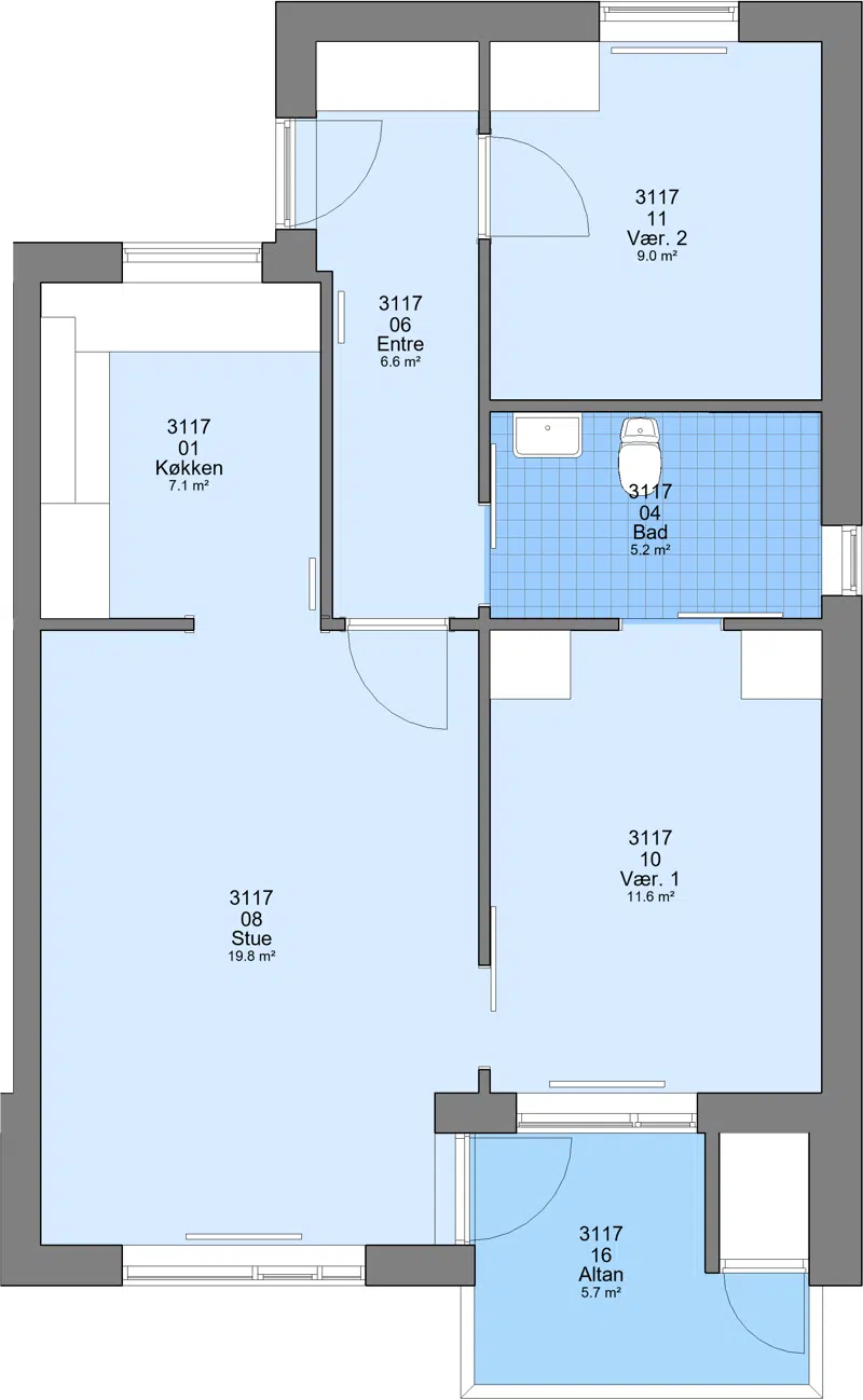
Familiebolig

3

73 m²

6276 kr.

18828 kr.

![](https://www.aabskive.dk/i/MOLIRIMEDIA/fd813bbd-d69b-4b26-b5f9-08dd5bf69135?width=800)






![](https://www.aabskive.dk/i/MOLIRIMEDIA/fd813bbd-d69b-4b26-b5f9-08dd5bf69135?width=800)

![](https://www.aabskive.dk/i/MOLIRIMEDIA/15347415-71c0-4e09-bcc6-08dd5bf69135?width=800)

![](https://www.aabskive.dk/i/MOLIRIMEDIA/fd813bbd-d69b-4b26-b5f9-08dd5bf69135?width=800)

![](https://www.aabskive.dk/i/MOLIRIMEDIA/15347415-71c0-4e09-bcc6-08dd5bf69135?width=800)

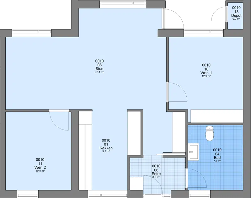
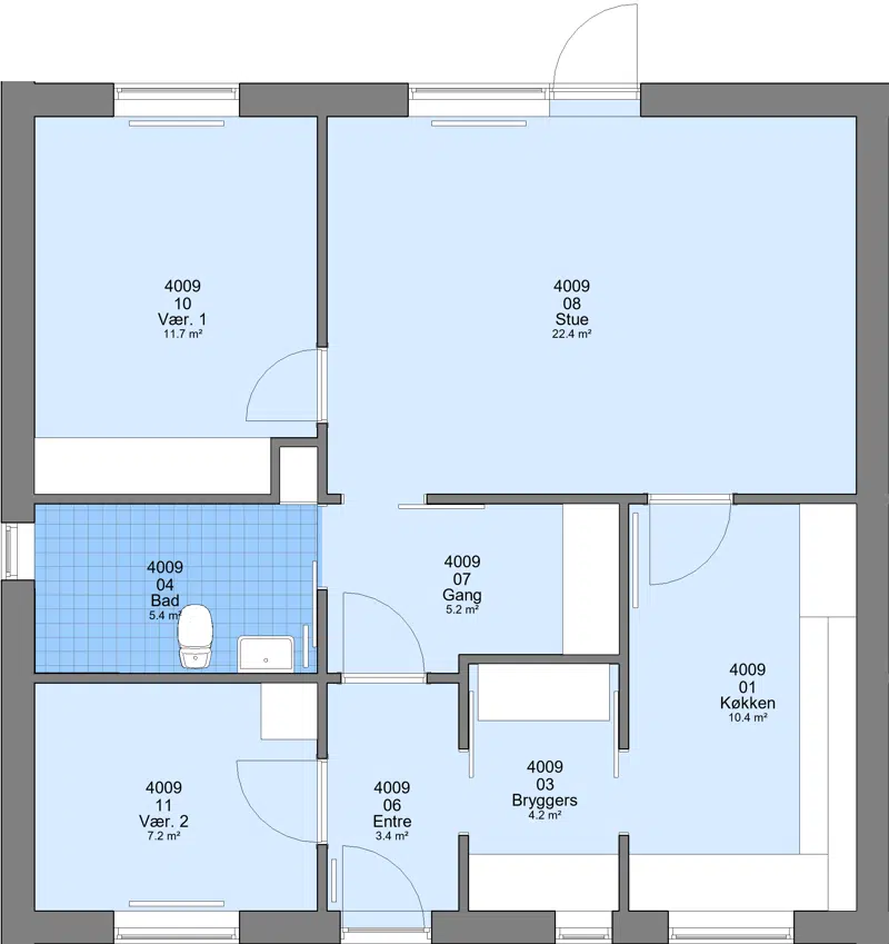
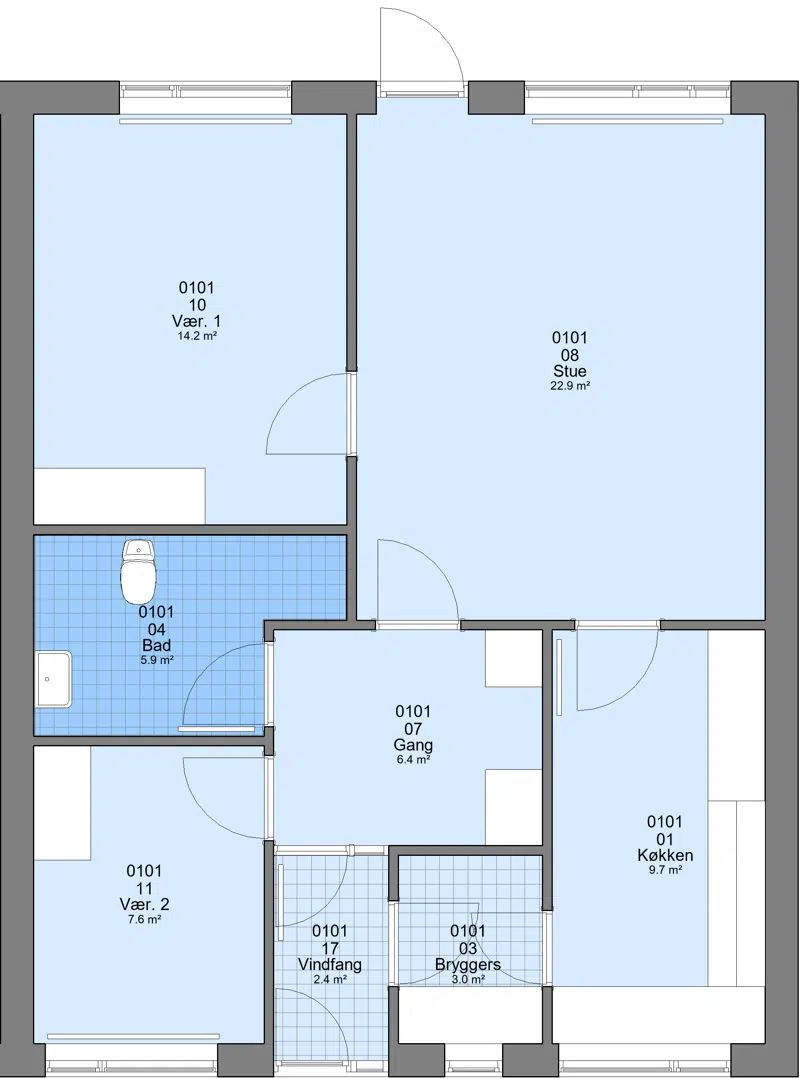
Familiebolig

3

102.5 m²

5162 kr.

15486 kr.

![](https://www.aabskive.dk/i/MOLIRIMEDIA/036b7ceb-4688-4993-b669-08dd5bf69135?width=800)






![](https://www.aabskive.dk/i/MOLIRIMEDIA/036b7ceb-4688-4993-b669-08dd5bf69135?width=800)

![](https://www.aabskive.dk/i/MOLIRIMEDIA/5fc0827a-020a-4cb4-bd09-08dd5bf69135?width=800)

![](https://www.aabskive.dk/i/MOLIRIMEDIA/0df62e0f-887c-4bc6-bcd3-08dd5bf69135?width=800)

![](https://www.aabskive.dk/i/MOLIRIMEDIA/e54595f4-8f5b-4993-bcbf-08dd5bf69135?width=800)

![](https://www.aabskive.dk/i/MOLIRIMEDIA/e8118f7f-6161-4a03-bcf0-08dd5bf69135?width=800)

![](https://www.aabskive.dk/i/MOLIRIMEDIA/036b7ceb-4688-4993-b669-08dd5bf69135?width=800)

![](https://www.aabskive.dk/i/MOLIRIMEDIA/5fc0827a-020a-4cb4-bd09-08dd5bf69135?width=800)

![](https://www.aabskive.dk/i/MOLIRIMEDIA/0df62e0f-887c-4bc6-bcd3-08dd5bf69135?width=800)

![](https://www.aabskive.dk/i/MOLIRIMEDIA/e54595f4-8f5b-4993-bcbf-08dd5bf69135?width=800)

![](https://www.aabskive.dk/i/MOLIRIMEDIA/e8118f7f-6161-4a03-bcf0-08dd5bf69135?width=800)

Familiebolig

3

82 m²

6364 kr.

19092 kr.

![](https://www.aabskive.dk/i/MOLIRIMEDIA/bcb7ad14-186a-4c7b-b689-08dd5bf69135?width=800)

Familiebolig

3

84 m²

5570 kr.

16710 kr.

![](https://www.aabskive.dk/i/MOLIRIMEDIA/dea2708a-dcbf-4fda-b96c-08dd5bf69135?width=800)






![](https://www.aabskive.dk/i/MOLIRIMEDIA/dea2708a-dcbf-4fda-b96c-08dd5bf69135?width=800)

![](https://www.aabskive.dk/i/MOLIRIMEDIA/8310dd51-3800-4059-bc6a-08dd5bf69135?width=800)

![](https://www.aabskive.dk/i/MOLIRIMEDIA/dea2708a-dcbf-4fda-b96c-08dd5bf69135?width=800)

![](https://www.aabskive.dk/i/MOLIRIMEDIA/8310dd51-3800-4059-bc6a-08dd5bf69135?width=800)

Familiebolig

3

97 m²

6412 kr.

19236 kr.

![](https://www.aabskive.dk/i/MOLIRIMEDIA/b286214c-06d3-4a7e-b9f2-08dd5bf69135?width=800)

Familiebolig

4

95 m²

6379 kr.

19137 kr.

![](https://www.aabskive.dk/i/MOLIRIMEDIA/5056ef13-a127-4ccd-b702-08dd5bf69135?width=800)






![](https://www.aabskive.dk/i/MOLIRIMEDIA/5056ef13-a127-4ccd-b702-08dd5bf69135?width=800)

![](https://www.aabskive.dk/i/MOLIRIMEDIA/d508e4e3-6dfe-42c9-bd58-08dd5bf69135?width=800)

![](https://www.aabskive.dk/i/MOLIRIMEDIA/5056ef13-a127-4ccd-b702-08dd5bf69135?width=800)

![](https://www.aabskive.dk/i/MOLIRIMEDIA/d508e4e3-6dfe-42c9-bd58-08dd5bf69135?width=800)

Familiebolig

4

105.1 m²

6801 kr.

28538 kr.

![](https://www.aabskive.dk/i/MOLIRIMEDIA/246abf50-8fcd-474e-bb0d-08dd5bf69135?width=800)

Familiebolig

4

110.8 m²

6811 kr.

20433 kr.

![](https://www.aabskive.dk/i/MOLIRIMEDIA/8319bd57-0eb5-46a3-b81d-08dd5bf69135?width=800)

Ungdomsbolig

1

30 m²

1982 kr.

4929 kr.

![](https://www.aabskive.dk/i/MOLIRIMEDIA/90cd6cf0-9c3b-47a6-bb00-08dd5bf69135?width=800)






![](https://www.aabskive.dk/i/MOLIRIMEDIA/90cd6cf0-9c3b-47a6-bb00-08dd5bf69135?width=800)

![](https://www.aabskive.dk/i/MOLIRIMEDIA/5f82a814-0504-4b3d-bd38-08dd5bf69135?width=800)

![](https://www.aabskive.dk/i/MOLIRIMEDIA/0febd02a-c88c-4abf-bca2-08dd5bf69135?width=800)

![](https://www.aabskive.dk/i/MOLIRIMEDIA/90cd6cf0-9c3b-47a6-bb00-08dd5bf69135?width=800)

![](https://www.aabskive.dk/i/MOLIRIMEDIA/5f82a814-0504-4b3d-bd38-08dd5bf69135?width=800)

![](https://www.aabskive.dk/i/MOLIRIMEDIA/0febd02a-c88c-4abf-bca2-08dd5bf69135?width=800)

Ungdomsbolig

1

30 m²

1592 kr.

3561 kr.

![](https://www.aabskive.dk/i/MOLIRIMEDIA/18d63502-7cec-4311-b84b-08dd5bf69135?width=800)






![](https://www.aabskive.dk/i/MOLIRIMEDIA/18d63502-7cec-4311-b84b-08dd5bf69135?width=800)

![](https://www.aabskive.dk/i/MOLIRIMEDIA/933ea43f-d70f-4b98-bd26-08dd5bf69135?width=800)

![](https://www.aabskive.dk/i/MOLIRIMEDIA/18d63502-7cec-4311-b84b-08dd5bf69135?width=800)

![](https://www.aabskive.dk/i/MOLIRIMEDIA/933ea43f-d70f-4b98-bd26-08dd5bf69135?width=800)

Ungdomsbolig

1

28 m²

1592 kr.

3561 kr.

![](https://www.aabskive.dk/i/MOLIRIMEDIA/7afc3375-0533-458c-b8db-08dd5bf69135?width=800)






![](https://www.aabskive.dk/i/MOLIRIMEDIA/7afc3375-0533-458c-b8db-08dd5bf69135?width=800)

![](https://www.aabskive.dk/i/MOLIRIMEDIA/51ed0913-bbcf-41b2-8f16-08ddb87da2d4?width=800)

![](https://www.aabskive.dk/i/MOLIRIMEDIA/7afc3375-0533-458c-b8db-08dd5bf69135?width=800)

![](https://www.aabskive.dk/i/MOLIRIMEDIA/51ed0913-bbcf-41b2-8f16-08ddb87da2d4?width=800)

## Afdelingsdokumenter

Her finder du nyttig information om din afdeling, såsom husorden, vedligeholdelse af dit lejemål, referater m.m.

###

                                                Regnskaber

[Regnskab 2024 og budget 2026 afdeling 16.pdf](https://www.aabskive.dk/p/Files/Boligdata/Dokumenter/Afdelingsregnskaber/Regnskab-2024-og-budget-2026-afdeling-16.pdf)

###

                                                Vedligeholdelse

[Vedligeholdelsesreglement afd 16.pdf](https://www.aabskive.dk/p/Files/Boligdata/Dokumenter/Vedligeholdelse/Vedligeholdelsesreglement-afd-16.pdf)

###

                                                Husorden

[Ordensreglement afdeling 16.pdf](https://www.aabskive.dk/p/Files/Boligdata/Dokumenter/Husordener/Ordensreglement-afdeling-16.pdf)

## Selskabsdokumenter

Her finder du nyttig information om din selskab.

###

                                                Referater hovedbestyrelsen

[Referat hovedbestyrelsesmøde 2024 04 03.pdf](https://www.aabskive.dk/p/Files/Boligdata/Dokumenter/Sel.%201%20Arbejdernes%20AndelsBoligforening/Referater%20hovedbestyrelsen/Referat-hovedbestyrelsesm&#xF8;de-2024-04-03.pdf)
                                            [Referat hovedbestyrelsesmøde 2024 05 13.pdf](https://www.aabskive.dk/p/Files/Boligdata/Dokumenter/Sel.%201%20Arbejdernes%20AndelsBoligforening/Referater%20hovedbestyrelsen/Referat-hovedbestyrelsesm&#xF8;de-2024-05-13.pdf)
                                            [Referat hovedbestyrelsesmøde 2024 06 03.pdf](https://www.aabskive.dk/p/Files/Boligdata/Dokumenter/Sel.%201%20Arbejdernes%20AndelsBoligforening/Referater%20hovedbestyrelsen/Referat-hovedbestyrelsesm&#xF8;de-2024-06-03.pdf)
                                            [Referat hovedbestyrelsesmøde 2024 09 02.pdf](https://www.aabskive.dk/p/Files/Boligdata/Dokumenter/Sel.%201%20Arbejdernes%20AndelsBoligforening/Referater%20hovedbestyrelsen/Referat-hovedbestyrelsesm&#xF8;de-2024-09-02.pdf)
                                            [Referat hovedbestyrelsesmøde 2024 10 07.pdf](https://www.aabskive.dk/p/Files/Boligdata/Dokumenter/Sel.%201%20Arbejdernes%20AndelsBoligforening/Referater%20hovedbestyrelsen/Referat-hovedbestyrelsesm&#xF8;de-2024-10-07.pdf)
                                            [Referat hovedbestyrelsesmøde 2024 11 04.pdf](https://www.aabskive.dk/p/Files/Boligdata/Dokumenter/Sel.%201%20Arbejdernes%20AndelsBoligforening/Referater%20hovedbestyrelsen/Referat-hovedbestyrelsesm&#xF8;de-2024-11-04.pdf)
                                            [Referat hovedbestyrelsesmøde 2024 12 02.pdf](https://www.aabskive.dk/p/Files/Boligdata/Dokumenter/Sel.%201%20Arbejdernes%20AndelsBoligforening/Referater%20hovedbestyrelsen/Referat-hovedbestyrelsesm&#xF8;de-2024-12-02.pdf)
                                            [Referat hovedbestyrelsesmøde 2025 02 03.pdf](https://www.aabskive.dk/p/Files/Boligdata/Dokumenter/Sel.%201%20Arbejdernes%20AndelsBoligforening/Referater%20hovedbestyrelsen/Referat-hovedbestyrelsesm&#xF8;de-2025-02-03.pdf)
                                            [Referat hovedbestyrelsesmøde 2025 03 03.pdf](https://www.aabskive.dk/p/Files/Boligdata/Dokumenter/Sel.%201%20Arbejdernes%20AndelsBoligforening/Referater%20hovedbestyrelsen/Referat-hovedbestyrelsesm&#xF8;de-2025-03-03.pdf)
                                            [Referat hovedbestyrelsesmøde 2025 04 07.pdf](https://www.aabskive.dk/p/Files/Boligdata/Dokumenter/Sel.%201%20Arbejdernes%20AndelsBoligforening/Referater%20hovedbestyrelsen/Referat-hovedbestyrelsesm&#xF8;de-2025-04-07.pdf)
                                            [Referat hovedbestyrelsesmøde 2025 05 15.pdf](https://www.aabskive.dk/p/Files/Boligdata/Dokumenter/Sel.%201%20Arbejdernes%20AndelsBoligforening/Referater%20hovedbestyrelsen/Referat-hovedbestyrelsesm&#xF8;de-2025-05-15.pdf)
                                            [Referat hovedbestyrelsesmøde 2025 06 04.pdf](https://www.aabskive.dk/p/Files/Boligdata/Dokumenter/Sel.%201%20Arbejdernes%20AndelsBoligforening/Referater%20hovedbestyrelsen/Referat-hovedbestyrelsesm&#xF8;de-2025-06-04.pdf)
                                            [Referat hovedbestyrelsesmøde 2025 09 01.pdf](https://www.aabskive.dk/p/Files/Boligdata/Dokumenter/Sel.%201%20Arbejdernes%20AndelsBoligforening/Referater%20hovedbestyrelsen/Referat-hovedbestyrelsesm&#xF8;de-2025-09-01.pdf)
                                            [Referat hovedbestyrelsesmøde 2025 10 06.pdf](https://www.aabskive.dk/p/Files/Boligdata/Dokumenter/Sel.%201%20Arbejdernes%20AndelsBoligforening/Referater%20hovedbestyrelsen/Referat-hovedbestyrelsesm&#xF8;de-2025-10-06.pdf)
                                            [Referat hovedbestyrelsesmøde 2025 11 03.pdf](https://www.aabskive.dk/p/Files/Boligdata/Dokumenter/Sel.%201%20Arbejdernes%20AndelsBoligforening/Referater%20hovedbestyrelsen/Referat-hovedbestyrelsesm&#xF8;de-2025-11-03.pdf)
                                            [Referat hovedbestyrelsesmøde 2025 12 01.pdf](https://www.aabskive.dk/p/Files/Boligdata/Dokumenter/Sel.%201%20Arbejdernes%20AndelsBoligforening/Referater%20hovedbestyrelsen/Referat-hovedbestyrelsesm&#xF8;de-2025-12-01.pdf)
                                            [Referat hovedbestyrelsesmøde 2026 02 02.pdf](https://www.aabskive.dk/p/Files/Boligdata/Dokumenter/Sel.%201%20Arbejdernes%20AndelsBoligforening/Referater%20hovedbestyrelsen/Referat-hovedbestyrelsesm&#xF8;de-2026-02-02.pdf)
                                            [Referat hovedbestyrelsesmøde 2026 03 02.pdf](https://www.aabskive.dk/p/Files/Boligdata/Dokumenter/Sel.%201%20Arbejdernes%20AndelsBoligforening/Referater%20hovedbestyrelsen/Referat-hovedbestyrelsesm&#xF8;de-2026-03-02.pdf)
                                            [Referat hovedbestyrelsesmøde 2026 04 13.pdf](https://www.aabskive.dk/p/Files/Boligdata/Dokumenter/Sel.%201%20Arbejdernes%20AndelsBoligforening/Referater%20hovedbestyrelsen/Referat-hovedbestyrelsesm&#xF8;de-2026-04-13.pdf)
                                            [Referat hovedbestyrelsesmøde 2026 05 11.pdf](https://www.aabskive.dk/p/Files/Boligdata/Dokumenter/Sel.%201%20Arbejdernes%20AndelsBoligforening/Referater%20hovedbestyrelsen/Referat-hovedbestyrelsesm&#xF8;de-2026-05-11.pdf)

###

                                                Vedtægter

[Vedtægter for Arbejdernes Andelsboligforening.pdf](https://www.aabskive.dk/p/Files/Boligdata/Dokumenter/Sel.%201%20Arbejdernes%20AndelsBoligforening/Vedt&#xE6;gter/Vedt&#xE6;gter-for-Arbejdernes-Andelsboligforening.pdf)

###

                                                Regnskaber

[Hovedforening 2023.pdf](https://www.aabskive.dk/p/Files/Boligdata/Dokumenter/Sel.%201%20Arbejdernes%20AndelsBoligforening/Regnskaber/Hovedforening-2023.pdf)
                                            [Hovedforeningen 2024.pdf](https://www.aabskive.dk/p/Files/Boligdata/Dokumenter/Sel.%201%20Arbejdernes%20AndelsBoligforening/Regnskaber/Hovedforeningen-2024.pdf)

###

                                                Beretninger generalforsamling

[Beretning 2023.pdf](https://www.aabskive.dk/p/Files/Boligdata/Dokumenter/Sel.%201%20Arbejdernes%20AndelsBoligforening/Beretninger%20generalforsamling/Beretning-2023.pdf)
                                            [Beretning 2024 05 29.pdf](https://www.aabskive.dk/p/Files/Boligdata/Dokumenter/Sel.%201%20Arbejdernes%20AndelsBoligforening/Beretninger%20generalforsamling/Beretning-2024-05-29.pdf)
                                            [Beretning 2024.pdf](https://www.aabskive.dk/p/Files/Boligdata/Dokumenter/Sel.%201%20Arbejdernes%20AndelsBoligforening/Beretninger%20generalforsamling/Beretning-2024.pdf)
                                            [Beretning 2025 05 26.pdf](https://www.aabskive.dk/p/Files/Boligdata/Dokumenter/Sel.%201%20Arbejdernes%20AndelsBoligforening/Beretninger%20generalforsamling/Beretning-2025-05-26.pdf)

###

                                                Referater generalforsamling

[Referat generalforsamling 2023 05 31 underskrevet.pdf](https://www.aabskive.dk/p/Files/Boligdata/Dokumenter/Sel.%201%20Arbejdernes%20AndelsBoligforening/Referater%20generalforsamling/Referat-generalforsamling-2023-05-31-underskrevet.pdf)
                                            [Referat generalforsamling 2024 05 29 underskrevet.pdf](https://www.aabskive.dk/p/Files/Boligdata/Dokumenter/Sel.%201%20Arbejdernes%20AndelsBoligforening/Referater%20generalforsamling/Referat-generalforsamling-2024-05-29-underskrevet.pdf)
                                            [Referat generalforsamling 2025 05 26 underskrevet.pdf](https://www.aabskive.dk/p/Files/Boligdata/Dokumenter/Sel.%201%20Arbejdernes%20AndelsBoligforening/Referater%20generalforsamling/Referat-generalforsamling-2025-05-26-underskrevet.pdf)
